一位来自东京的时尚评论家搬到了邻近县的乡下,从事一份管理方面的工作。她没有建造新的房子,而是选择翻新现有的房子,因为它离她新公司的大楼很近。她的家必须是宽敞的,充满自然光的,同时也是她可以举行家庭和朋友聚会的地方。Jorge Almazán建筑师事务所对一楼进行了翻新,以创造一个开放的区域,而其余部分则未作改动。
A fashion critic from Tokyo moved to the countryside of a neighboring prefecture to take a managerial job. Instead of building a new house, she preferred to renovate an existing one conveniently close to her new company’s buildings. Her home had to be spacious and filled with natural light as well as a place where she could hold family and friends gatherings. Jorge Almazán Architects renovated the first floor to create an open area while leaving the rest untouched.



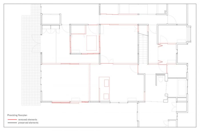
这座房子最初被分割成许多小的、相当黑暗的房间。该提案清除了大部分墙壁,创造了一个开放的空间,并拆除了现有的天花板以增加其高度,部分地暴露了钢梁。这个连续的空间被柔和地衔接起来,形成入口、厨房、餐厅和生活区。薄薄的挂架将入口与其他区域分开。来自入口处的视线可以通过架子上物体的数量、类型和位置来方便地过滤和调整。
The house was initially subdivided into numerous small, rather dark rooms. The proposal clears away most of the walls to create an open space and removes the existing ceiling to increase its height, partially exposing the steel beams. This continuous space is softly articulated to create the entrance, kitchen, dining, and living zones. Thin hanging shelves separate the entrance from the other zones. Views from the entrance can be conveniently filtered and adjusted by the number, type, and position of the objects standing on the shelves.



穿过入口区后,人们遇到了一个宽敞的厨房。厨房并没有把它放在后面,而是站在中间,做饭的人面对着餐厅和生活区。大的厨房台面--一块1.4 x 2.9米的不锈钢板--成为中心舞台,一个大的公共餐桌,可以一起享受烹饪和饮食。必要的存储和电器都内置在柜台下和周围的墙壁中。餐区和起居区可以容纳多种用途。餐桌--一个3米长的白色大理石表面--允许家庭聚餐,也可以作为一个会议桌。
After crossing the entrance zone, one encounters a generous kitchen. Instead of relegating it to a backspace, the kitchen stands in the middle, and the person cooking faces the dining and living zones. The large kitchen counter—a single 1.4 x 2.9 m sheet of stainless steel—becomes the center stage, a large communal table to enjoy cooking and eating together. The necessary storage and appliances are built-in under the counter and into the surrounding walls. The dining and living zones accommodate multiple uses. The dining table—a 3 m long white marble surface—allows family dinners and also serves as a conference table.



客厅是一个充足的空间,有轻型沙发和咖啡桌。这些家具可以快速移动,以便为室内运动或儿童游戏腾出空间。该方案通过增加一个新的带有深窗台的窗户来增加这个区域的亮度。业主在这个窗台上种植草药植物,为客厅增加了一个小小的内部花园。业主对服装的兴趣激发了建筑师增加一系列感性的触觉体验:不锈钢厨房和白色大理石餐桌的冷硬;皮革沙发的柔软;墙壁和架子的胶合板的温暖粗糙,白桦木地板的光滑,以及墙壁和天花板上的石膏。每一个元素都被 "打扮 "成一种独特的触觉和视觉体验。
The living room is an ample space with lightweight sofas and coffee tables. This furniture can be quickly moved to make room for in-door exercise or children’s play. The proposal increases the luminosity of this area by adding a new window with a deep sill. The owner cultivates herb plants on this windowsill, adding a tiny inner garden into the living room. The owner’s interest in clothing inspired the architects to add a sensual range of tactile experiences: the cold hardness of both the stainless steel kitchen and the white marble dining table; the softness of the leather sofas; the warm roughness of the plywood of the walls and shelves, the smoothness of the birch wood flooring, and the plaster on walls and ceilings. Each element is “dressed” with a distinctive tactile and visual experience.

该方案特别关注热舒适性。这个地区因其令人窒息的夏季和寒冷的冬季而在日本闻名。该项目包括地板采暖,允许在冬季有一个统一的温暖空间,并避免了空调造成的干燥。在夏天,空间的开放性促进了自然交叉通风,最大限度地减少了空调。事实证明,这所房子特别适合于大流行病带来的新的家庭条件。自然光和通风的舒适性,其表面的丰富触感,以及空间的开放性和多功能性,使这个翻新的房子成为一个令人愉快的室内绿洲。
The proposal takes particular care of thermal comfort. This area is famous in Japan for its suffocating summers and chilly winters. The project includes floor heating, allowing a uniform warm space in winter, and avoiding the dryness created by air-conditioning. In summer, the spatial openness promotes natural cross-ventilation, minimizing air conditioning. The house has proved to be especially suited for the new domestic conditions imposed by the pandemic. The comfort of natural light and ventilation, the rich tactility of its surfaces, and the spatial openness and versatility have allowed this renovated house to become an enjoyable interior oasis.







Architects : Jorge Almazán Architects
Year : 97
Electricity : Uchimura Denki
Kitchen Manufacturer : Kitazawa Kitchen
City : Honjō
Country : Japan