这是一个将大阪市北区本庄的两栋排屋改造成办公和活动空间的项目。
This is a project to renovate two row houses in Honjo, Kita-ku, Osaka City, into an office and event space.





这些排屋原本是独立的住宅,它们之间有一条道路通向后面。在某些时候,房子,包括街道,成为一个单一的住宅。家具散落一地,地板和墙壁剥落,一些柱子也腐烂了。
The row houses were originally separate dwellings with a road leading to the back between them. At some point, the house, including the street, became a single residence. Furniture was scattered about, floors and walls were peeling, and some of the pillars were rotting.

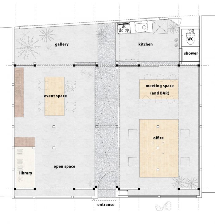
我们重新规划了两座排屋之间的原路,并在每座排屋之间插入了结构加固物。此外,我们铺设了平坦的土质地板,使整个空间是连续的,并在原来是门廊的部分盖上屋顶,创造了一个大的空白空间。
We re-routed the original path between the two row houses and inserted structural reinforcement across each. In addition, we laid a flat earthen floor so that the whole space is continuous, and roofed the part that used to be the porch to create a large blank space.


或大的空白空间,我们通过创造一张大桌子、可以完全打开的木制配件、与外面一样明亮的顶灯、吸引外面的砾石和可以让风通过的窗户来定义空间。
or the large blank space, we defined the space by creating a large table, wooden fittings that can be fully opened, a top light that is as bright as outside, gravel that draws the outside in, and windows that allow the wind to pass through.

为了继承现有的建筑,我们不仅重用了构图,而且重用了废弃的家具、灯具和配件,并保留了柱子、横梁、屋顶背面和泥墙的原始表现。柱子和横梁、屋顶背面和泥墙都保持了它们的原始状态。为了在保留旧的同时给人以新的感觉,工程一直没有完工。
In order to inherit the existing architecture, we reused not only the composition but also abandoned furniture, lighting, and fittings, and left the pillars, beams, back of the roof, and mud walls with their original expressions. The pillars and beams, the back of the roof, and the mud walls have been left in their original state. In order to preserve the old while at the same time giving a sense of the new, the work has been left unfinished.

在建筑工地上,设计师和建筑商通过试验和错误逐步建立起项目,但在这个地方,我们敢于让基础工作保持原样,让大家一起思考,建立起这个空间。
On the construction site, the designers and builders gradually build things up through trial and error toward the completion of the project, but in this place, we dared to leave the groundwork as it is and let everyone think together to build up the space.

我们决定把这个没有预定用途的 "空白空间 "的项目称为 "现场",这是一种 "继续走向完成 "的状态。
We have decided to call this project, which has a "blank space" with no predetermined use, "the site", a state of "continuing to move toward completion".



















Architects: OSTR
Area: 90 m²
Year: 2019
Photographs: Yosuke Ohtake
Contractor: komt
Architects:OSTR, Sho Ohta, Ryosuke Takei
City:Osaka
Country:Japan