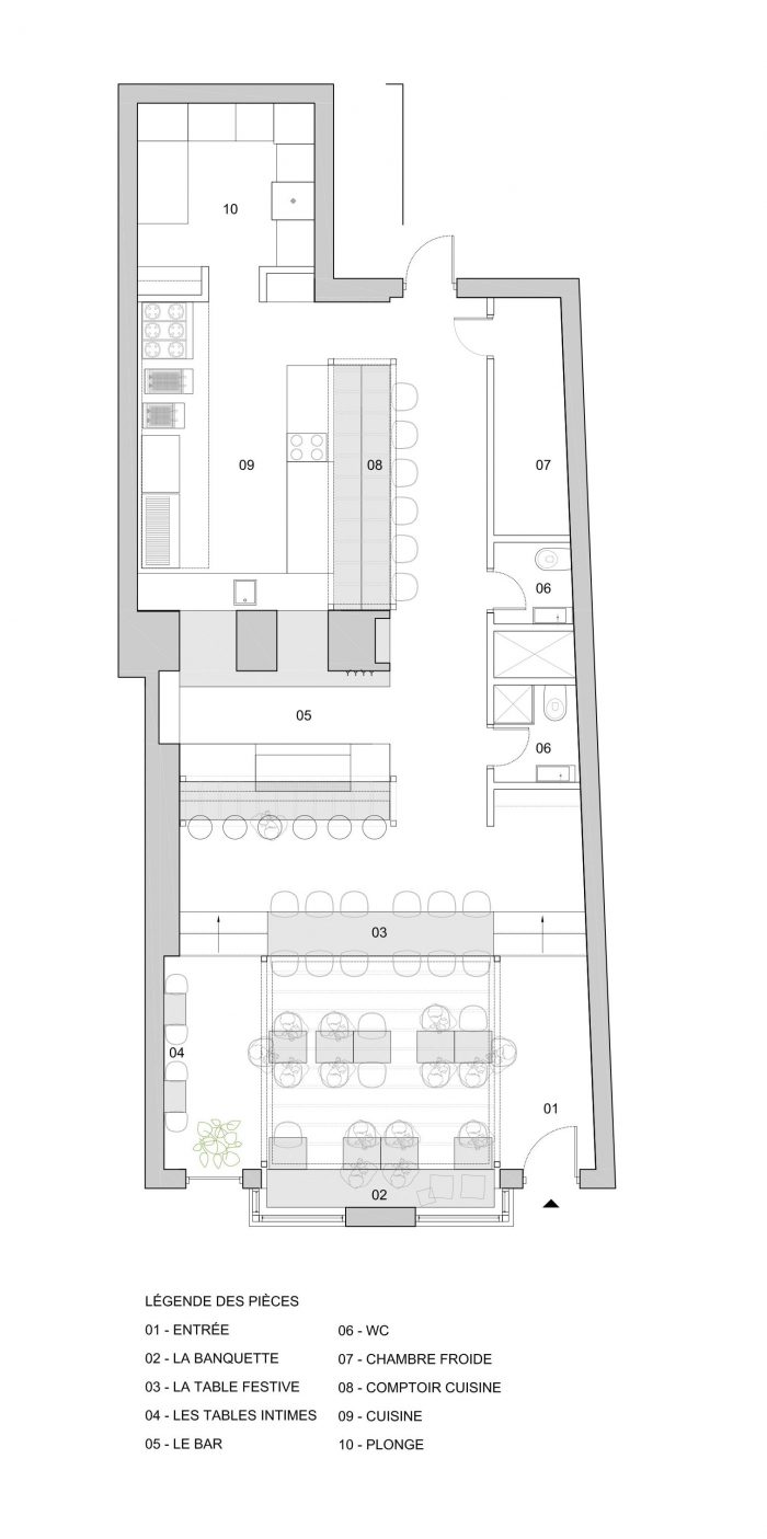
位于魁北克市圣约瑟夫街的Honō居酒屋延续了日本酒馆的传统,在这里,食物和酒精饮料是与家人和朋友共度美好时光的借口。虽然这个地方经历了重大的翻新,但改造后的建筑整合并突出了原有历史建筑的几个元素。由于餐厅占地两层,顾客一进门就会被高高的天花板所震撼。在里面走几步就能看到酒吧和厨房,形成一个通往更亲密空间的门槛。吧台后面有两个凹槽,可以看到厨房,有利于与厨房工作人员交流,使这个地方更有深度。
Located on St. Joseph Street in Quebec City, Honō Izakaya continues the tradition of Japanese taverns, a place where food and alcoholic beverages are a pretext for having a good time with family and friends. Although the locale underwent major renovations, the transformation integrates and highlights several elements of the original historic building. Since the restaurant occupies two levels, customers are struck, on entering, by the high ceilings. A few steps inside guide you towards the bar and kitchen, creating a threshold to a more intimate space. Giving depth to the locale are the two alcoves arranged behind the bar, permitting a view into the kitchen and favoring exchanges with the kitchen staff.




以前用装饰砖覆盖的石墙,让人了解到建筑的历史。面向街道的大窗户使餐厅沐浴在自然光中。木质结构的存在使餐厅有可能被划分为不同的区域,为与朋友和家人分享美食提供不同的体验。靠近石墙的地方有小型的亲密餐桌,凉棚下有一张大桌子,可供12人的团体用餐。
The stone wall, formerly covered with decorative bricks, offers insight into the history of the building. The large windows facing the street bathe the restaurant with natural light. The existence of the wooden structures makes it possible to divide the restaurant into sub-areas, offering different experiences for sharing a meal with friends and family. Small intimate tables are found near the stone walls and under the pergola is a large table for groups of up to 12 people.

此外,酒吧和厨房区域的两个柜台提供了与厨师的近距离接触,顾客可以欣赏和享受日本美食。木质结构、定制设计的家具的高贵材料、石墙的纹理、灯笼的柔和照明和绿叶的明亮色彩,共同为餐厅提供了一个轻松和受欢迎的环境,并营造出节日和友好的氛围。
Additionally, the two counters in the bar & kitchen area, offer proximity with the cooks where customers can admire and enjoy Japanese cuisine. Together, the wooden structures, the noble materials of the custom-designed furniture, the textures of the stone wall, the soft lighting of the lanterns and the bright colors of the green foliage give the restaurant a relaxed and sought-after environment with a festive and friendly atmosphere.










Architects: Charlene Bourgeois
Area : 1100 ft²
Year : 2018
Photographs :Maxime Brouillet
Manufacturers : Centura
Lead Architects : Charlene Bourgeois
City:QUÉBEC
Country:Canada