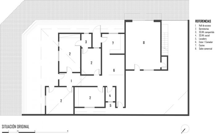
昔日Asinción的街区,传统的和几乎永恒的,正在被房地产开发的冲动所触及,日复一日地寻求为日益增长的城市人口提供选择。很多时候,匆忙的冒险将建筑降到了第二或第三层次的重要性,优先考虑 "实用性 "和不安全的偏见,这在国内非常普遍,这对当今社会的想象力没有好处。我们希望情况不是这样的。现在的情况是,有一栋大约40年房龄的房子,条件相当恶劣,将被重新纳入房地产供应范围内。它已经在拆除的过程中,没有建筑项目可以跟进。时间的紧迫性导致我们对情况进行快速诊断,并以同样的惯性采取行动,同时发展一个平行的想法,这可能意味着--至少是一些东西--对这个城市。
The neighbourhoods of the Asinción of yesteryear, traditional and almost timeless, are being reached by the impulse of real estate development that day after day seeks to provide options to the growing urban population. Many times it happens that the hurried venture condemns architecture to a second -or third-level of importance, giving priority to "practicality" and prejudices of insecurity that are very common in the country, which does not serve the imaginary of today's society well. We wanted this not to be the case. The situation presented a house of approximately 40 years of age and in quite deteriorated conditions that was to be reincorporated to the supply of real estate. It was already in the process of demolition, with no architectural project to follow. The urgency of time led us to make a quick diagnosis of the situation and to act with the same inertia, while developing a parallel idea that could mean - at least something - for the city.





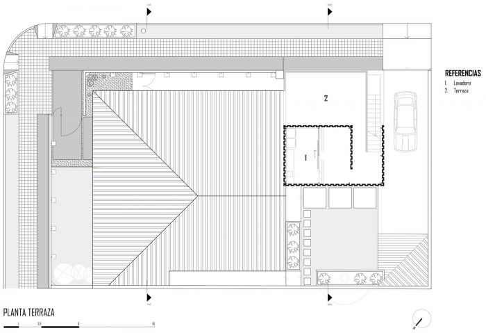
除了根据客户和公众的新要求(一个客厅,一个餐厅,三个卧室,服务区,等等等等,没有这些条件,建筑师就不会有这种类型的工作)来修改空间,该项目提供了改善周边环境的潜力,为一个被时间遗忘的街区注入了一些新的空气,但却有着美好的未来。在两条街的交叉口的一个角落,一个拥有多个外墙的优越位置,是这个项目实施的背景,它试图为一个新的家提供庇护、保护和温暖,一个新的巢穴,将回到亚松森住房的有用循环中。为了从建设性的角度在零散和混乱的城市环境中找到统一,该提案包括通过薄的穿孔信封产生一个陶瓷连续体,加上红色的屋顶,可以激起那些在这里旅行的人的感觉,寓意配置一个hornero的巢,一种南美地区的典型鸟。
In addition to modifying the spatiality according to the new requirements of the client and the general public (a living room, a dining room, three bedrooms, service areas, etc. etc. conditions without which architects would not have this type of work), the project offered the potential to improve the immediate environment, injecting some new air into a neighbourhood forgotten in time, but with a great future ahead. A corner made up of the intersection of two streets, a privileged location for having more than one facade, was the setting for the implementation of this project that seeks to provide shelter, protection and warmth for a new home, a new nest that would return to the useful cycle of housing in Asunción. In an effort to find unity in the fragmented and chaotic urban environment from a constructive point of view, the proposal consisted of generating a ceramic continuum through thin perforated envelopes, which, added to the reddish roof, could provoke the senses of those who travel through the place, allegorically configuring a hornero nest, a typical bird of the region of South America.



在巴拉圭因其经济性而被广泛使用的陶瓷砖,再次被召唤为干预的主角,泥瓦匠、铁匠和木匠,耐心而熟练的好工匠,聚集在一起,能够将物质转化为空间,并为当代巴拉圭建筑特点的集体剧目的建设提供不寻常和有趣的品质,在那里,干预通过测试、验证和调整成为真正的实验过程,直到达到预期结果。一旦工作完成,就只剩下让太阳这个建筑的特殊客人穿透空间,渲染一年中的四季,为家庭提供一个光影的节日,陪伴他们度过他们的生活。
The ceramic brick, widely used in Paraguay for its economy, was summoned once again as the protagonist of the intervention, where masons, blacksmiths and carpenters, good craftsmen of patient and skilled workforce, gathered in solidarity and were capable of transforming matter into space and providing it with unusual and interesting qualities for the construction of the collective repertoire that characterizes contemporary Paraguayan architecture, where interventions become true experimentation processes through tests, verifications and adjustments until the expected results are achieved. Once the work was finished, there was nothing left but to let the sun, a special guest of architecture, to penetrate the spaces and to render the seasons of the year, offering the family a festival of lights and shadows that accompany them through their daily experience.















Architects: OMCM arquitectos
Area: 200 m²
Year: 2019
Photographs: Alejandro Patiño, Leonardo Méndez
Manufacturers: Lumion, Sika, SketchUp, Argo, AutoCAD, Blindex, Cambre, Deca, Eliane, FV, Impaco, Klaukol, Papaiz y Kallay, Suvinil, Vallemi, Vray
Lead Architect: Matías Ortiz, Ma. Paz Chamorro
Equipo De Diseño:Sofía Rojas, Marcelo Ramírez
City:Asunción
Country:Paraguay