Bohinj酒店,前身是Kompas酒店,是在过去三十年中自发建造的,没有考虑到它的最终外观。它建在一个高原上,这使它有一种特殊的亲密感,可以看到博希尼湖、山脉和Janez Krstnik教堂的景色。酒店的新主人决定进行彻底的大修,包括结构加固、内部整修和可持续改造。
Hotel Bohinj, the former Hotel Kompas was built spontaneously over the last three decades, without thinking about its final appearance. It is raised on a plateau, which gives it a special intimacy, with views of Lake Bohinj, the mountains and the church of Janez Krstnik. The new owners of the hotel decided for radical overhaul including structural reinforcement, interior refurbishment and sustainable renovation.





基本的体量被保留下来,并采用了新的木质框架结构外壳。除了创建新的阳台和改变整体结构外,这些框架还为该地区频繁发生的地震提供了结构保护,并纳入了排水沟、电线、避雷针和休养成果。落叶松木覆面覆盖了其他新的外部元素,使酒店具有自然的外观。 入口立面由一个扩展部分补充,该扩展部分有一个新的、更大的双高大堂、一个入口天棚和餐厅。老建筑的三角形坡屋顶在入口立面上已经有了可识别的元素,这启发了新的三角形元素组成,与背景中的山顶形成对话。外立面和新的建筑元素的灵感来自于当地的乡土建筑细节和工艺。
The basic volume was preserved with a new structure envelope of wooden framework. As well as creating new balconies and changing the overall massing, the frames are providing structural protection against the region’s frequent earthquakes as well as incorporating gutters, wires, lightning rods and recuperation outcomes. Larch wood cladding covers other new exterior elements, giving the hotel a natural appearance. The entrance façade is complemented by an extension with a new, larger double-height lobby, an entrance canopy and restaurant. The triangular gabled roofs of old building already had recognizable elements on the entrance façade the inspired the new composition of triangulated elements that create dialogue with the mountain tops in the background. The façade and new architectural elements are inspired from local vernacular architecture details and crafts.

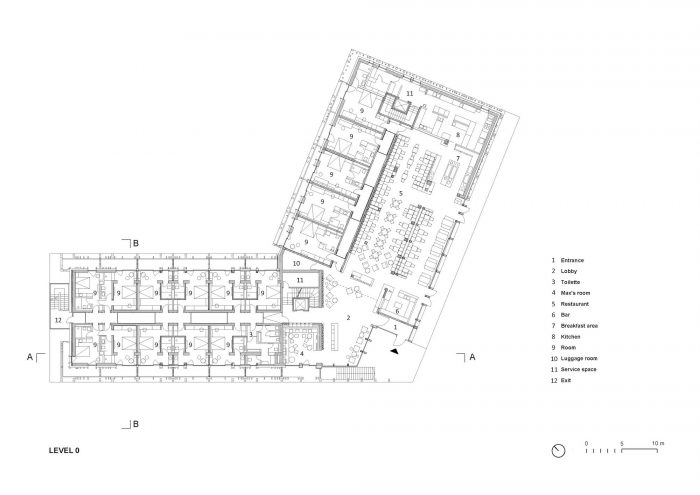
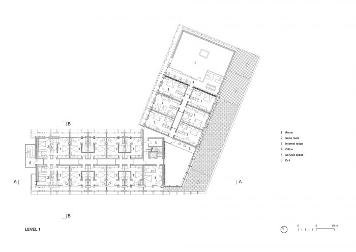
内部由69个房间组成。这些房间的图案、纹理和家具细节都具有适度的当地灵感。它们有不同的尺寸,从双人间、三人间到带全景窗和阳台的家庭房。长长的公共走廊代表着走过Bohinj干草架 "toplar "的建设。这些斯洛文尼亚工艺的传统纪念碑沿着酒店周围的村庄矗立。走向房间的过程为客人提供了独特的体验,走过这些独特的乡土结构--只存在于斯洛文尼亚的建筑。这种在地毯地面和天花板及墙面上重现的几何图形,不仅是一种设计参考,也是一种警示。无论是外国人对斯洛文尼亚独特的专业,还是当地人对文化遗产的保护。每年都有一些这种传统建筑的例子消失,往往是自行倒塌。
The interior consists of 69 rooms. The rooms have a modest local inspiration with patterns, textures and furniture details. They are of different sizes, from double, triple to family rooms with panoramic windows and balcony. Long common corridors represent a walk through the construction of the Bohinj hayrack “toplar”. These traditional monuments of Slovenian craftsmanship stand along the villages around the hotel. The walk to the room offers guests unique experience of walking through these unique vernacular structures - buildings that are present only in Slovenia. This geometry, recreated on the carpet floor and on the ceiling and wall coverings is not only a design reference, but also a warning. Both foreigners to Slovenian unique specialty as well as locals to protect cultural heritage. Every year, a few examples of this traditional architecture disappear, often collapsing on its own.


公共区域包括一个两层的入口大厅,一个餐厅和早餐室,一个带有传统赤土炉的复古小酒馆,一个小型会议厅和带有葡萄酒商店的俱乐部。椅子、长凳、窗帘、室内装饰品,甚至灯光都是特别为这家酒店设计和演绎的。灯光类似于树枝,给人一种非常亲切的感觉,椅子是由回收的塑料瓶制成的毛毡。落叶松木是墙壁、家具和天花板的主要材料,所有的细节都受到当地和乡土传统的启发。公共区域的地板是由周围岩石的浅灰色的露台制成的。通往入口和酒店大堂的大型黑色石头痕迹,是为了纪念著名的酒店猫咪麦克斯先生,他在以前的酒店关闭装修后,消失在一个未知的地方。
The common areas include a two-level entrance lobby, a restaurant and breakfast room, a retro-bistro with traditional terracotta stove, a small congress hall and club with wine shop. Chairs, benches, curtains, upholstery, even lights are unique designed and interpreted especially for this hotel. The lights, resemble branches and give a very intimate light, chairs are from felt produced of recycled plastic bottles. Larch wood is main material of walls, furniture and ceiling, all details inspired by local and vernacular tradition. Floors in common areas are made of terrace that has light grey color of surrounding rocks. Large black stone traces leading to the entrance and the hotel lobby remain in the memory of the famous Mr. Max, the legendary hotel cat, who after previous hotel closed down for renovation disappeared into an unknown place.


酒店沿途的织物、玻璃和墙壁上的图形代表了四个勇敢的人的剪影,他们是1778年8月26日第一个征服斯洛文尼亚最高山峰特里格拉夫的人。他们的故事是贯穿酒店的一条红线,象征着勇气和勇敢。与特里格拉夫一起,它代表了一个强大的象征和Bohinj的身份。通过他们的故事的第一次接触,客人将回到过去,回到当地的根源和身份,并在复兴历史和带来当地精神之间建立一个连接圈。
The graphic represented on fabrics, glass and walls along the hotel represent the silhouette of four brave men who were the first that conquered Triglav, Slovenian highest mountain on August 26, 1778. Their story is a red thread throughout the hotel, symbolizing courage and bravery. Alongside Triglav, it represents a strong symbol and the identity of Bohinj. With their story of the first approach, guests will return to the past, to local roots and identity, and create a connecting circle between reviving history and bringing the local spirit.




酒店还拥有一个小型的健康中心,有一个带温水的室外游泳池,并在草坪上;旧的游泳池被大型壁炉和社会活动空间所取代。这鼓励客人在湖里游泳,由于湖水与河流的流动性,每年至少换三次水,被认为是最干净的水域之一。为了再次感受丘陵地带的夜色和星空的美丽,酒店的照明是克制的。外部的安排考虑到了特里格拉夫国家公园的指导方针,它决定了本土的生长。
The hotel also boasts a small wellness center with an outdoor pool with heated water and on the lawn; the old pool was replaced by large fireplace and space for social events. This encourages guests to swim in the lake, which due to its fluidity with river changes the water at least three times a year and is considered one of the cleanest waters. In order to once again feel the beauty of the night in the hilly places and the starry sky, the lighting of the hotel is restrained. The external arrangements took into account the guidelines of the Triglav National Park which dictated the indigenous growth.

酒店改造的一部分也是能源修复。在规划能源使用时,考虑到了高效使用能源的严格规定。根据能源证书的规定,达到了A2级。带地源热泵的热泵作为热源,在公共区域和一些房间有地板辐射采暖或借助于对流装置进行加热和冷却。酒店有中央控制,它也可以调节加热和冷却的数量。
Part of the renovation of the hotel was also energy rehabilitation. When planning energy use, the strict rules on efficient use of energy are taken into account. Class A2 is achieved in accordance with regulations for energy certificates. Heat pumps with geo-sond serve as a heat source, in common areas and some rooms there is radiant floor heating or heating and cooling with the help of convectors. The hotel has central control, which also regulates the quantity of heating and cooling.


所有的照明都是基于节能的LED技术,灯光通过传感器工作,限制照明时间。所有的内置设备在消耗方面都是最低级别的,而且设计得很贴心,特别是符合现代防止光污染的准则。由于酒店位于特里格拉夫国家公园的中心地带,这一点更加重要,因为它保护了生物多样性,使所有夜间动物和生物体能够共存。
All lighting is based on energy-saving LED technology, the lights work through sensors which limits the lighting time. All built-in equipment is in the lowest classes in terms of consumption and is designed intimately, especially in accordance with modern guidelines on prevention of light pollution. As the hotel is located in the heart of the Triglav National Park, this is even more important, as it protects biodiversity and enables the coexistence of all nocturnal animals and organisms.

































Architects: OFIS Architects
Area: 5800 m²
Year: 2021
Photographs: Ziga Intihar, Ales Gregoric, Andras Boros
Design Team:Rok Oman, Špela Videčnik Borut Bernik, Rok Vrenko, Giulia Sgro
Client:Merlak investicije and Alpinia
Kitchen Technology:Gregor Dojer IXA d.o.o.
Structural Physics:Matjaž Zupan
Acoustics:Saša Galonja
Graphic Design:Futro
Carpentry:Permiz d.o.o.
Ceramic Works:pečarstvo Tomaž Štupar s.p.
Fireplace:pečarstvo Hrovat Jurij s.p.
Windows:Gašper trženje d.o.o.
Wallpaper:Hamler d.o.o.
Wellness:Spa2O
Pool Contractor:Remax d.o.o
Club:Drugačno pohištvo d.o.o.
Natural Stone Products:Kamnar d.o.o.
Electrical Installations:Eurolux d.o.o.
Landscape:Rade Oblak
Lighting Contractor:Arcadia d.o.o.
Mechanical Installations:NKM d.o.o.
Interior Contractor:Svea d.o.o
Fire Safety System:Fojkarfire d.o.o.
Electrical Installation:Pro-elekt d.o.o.
HVAC:Bambi d.n.o.
Structural Design:Project PA d.o.o.
Country:Slovenia