这三座围绕着地中海庭院的原有建筑位于科英布拉,在该市的联合国教科文组织世界遗产保护区内。
The three pre-existing buildings around a mediterranean courtyard are located Coimbra, in the city’s UNESCO World Heritage Protection Zone.



在这样微妙的环境中,干预措施寻求一种微妙的设计,在技术上适应当代建筑需求、当代酒店的法律要求和这种类型的干预措施所需的巨大关怀之间取得平衡。换句话说,对新方案的适应和随之而来的深度干预,通过各种手段对建筑物的历史意义及其巨大的建筑和建筑价值给予了深深的尊重。
In such delicate surroundings, the intervention seeks a delicate design balanced between the need for technical adaptations to contemporary building demands, the legal requirements for a contemporary hotel and the huge care that an intervention of this type requires. In other words, the adaption to the new program and the consequent deep intervention by all means paid deep respect for the historical relevance of the buildings and its great architectural and constructive values.

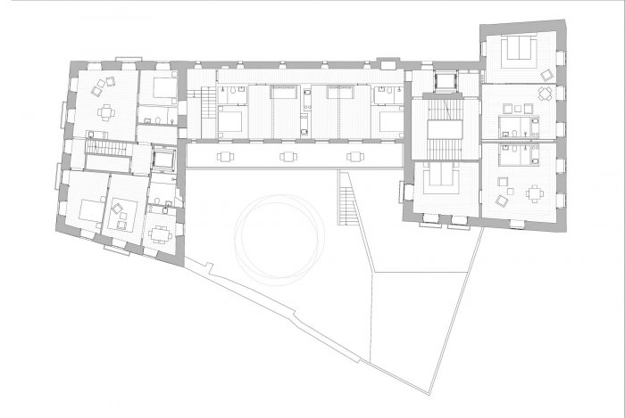
这种平衡的策略同时允许澄清保留的旧元素和所有新元素之间的区别,尤其是三座建筑之间的区别:上层的旧房子,下层的小宫殿,以及介于两者之间的第三座,它更像一幅画。
This balanced strategy allowed, at the same time, to clarify the difference between the preserved old elements and all the new and, above all, the difference between the three buildings: the former house on the upper level, the small palace on the lower level, and the third in-between, which is more picturesque.

聚集这三座建筑的庭院向公众开放,是新酒店的生命核心。传统材料的使用,如石头、木材和铁,不仅用于结构目的,也用于最后的细节和装饰,最终使整个干预措施协调一致,避免了破坏性的气氛或设计。
The courtyard which aggregates the three buildings is open to the public and is the life heart of the new hotel. The use of traditional materials such as stone, wood and iron, not only for for structural purposes but also for final details and finishings made, at the end, the whole intervention coherent and avoids a disruptive atmosphere or design.










































Architects: depA
Area: 23680 ft²
Year: 2017
Photographs: José Campos
City: COIMBRA
Country: Portugal