回到过去,在日本的商店街,一个带着婴儿吊带的女人站在商店柜台前,兼顾商店工作和家务。有一种缘分,它允许别人踏入房子的私人空间。我们认为这就是公众的起源。然而,它已经变成了一个不允许共存的局面。近年来,为了追求便利和效率,一切都被分割开来。我们认真地认为,当社会从单纯地接受生产力向多元化转变时,有必要思考建筑在我们这个时代应该是怎样的。
Go back in time to the past, in the Japanese store arcade, a woman with a baby sling stood in front of a store counter to juggle with store work and housework. There was a kind of margin it allows others to step into private of the house. We think it was the origin of the public. However, it has turned into the situation which doesn’t allow to make coexistence. Everything is segmented in order to pursuit convenience and efficiency in recent years. We seriously believe that it is necessary to think about how architecture should be in our time when the society is changing to diversity from just taking productivity.



东京Koe酒店是一个在涩谷中心建造服装品牌旗舰店的项目,3年前我们就被要求设计包括概念和规划的内容。我们在3年前加入hotel Koe项目,客户要求我们设计空间并提出商店的概念。基本上,这是一个为服装品牌 "Koe "在东京涩谷中心推出旗舰店的项目。
Hotel Koe Tokyo is a project which is constructed the flagship shop of apparel brand in the center of Shibuya, and we were demanded to design included concept and planning of content 3 years ago. We joined hotel Koe project 3 years ago and the client required to us to design the space and propose the shop concept. Basically, it was a project to launch a flagship shop for the apparel brand "Koe" in the center of Shibuya, Tokyo.



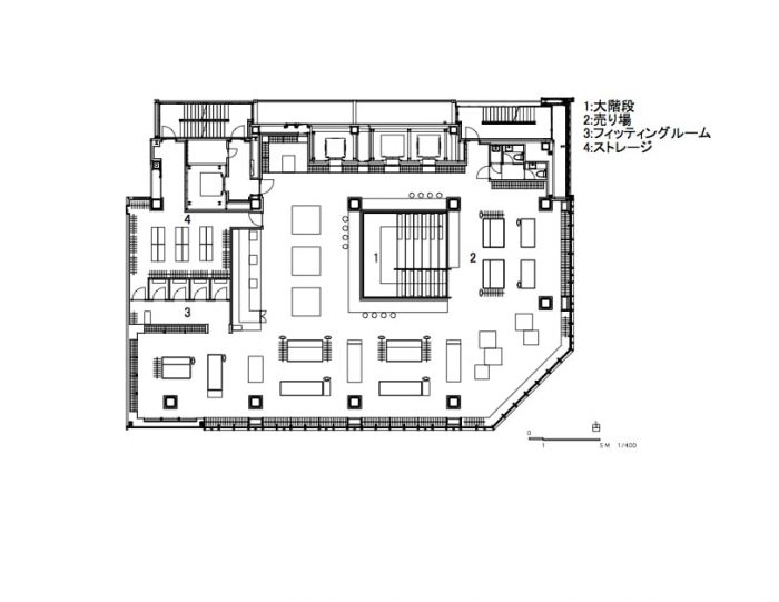
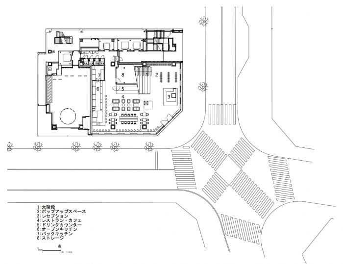
通常情况下,一家服装店的营业时间是上午12点到晚上8点。这意味着我们一天中只有三分之一的时间可以接触他们的衣服。这就是为什么我们建议把店开在酒店里,这样他们就可以用24小时向顾客讲述Koe的品牌概念。考虑到涩谷的文化,这里有大量的音乐文化,有许多音乐俱乐部和唱片店,我们计划在大楼层的餐厅和弹出式空间,在周末作为音乐现场和俱乐部空间。服装店在二楼,酒吧休息室在三楼。
Usually, an apparel shop is open from 12 am to 8 pm. It means we have only one-third of a day to touch their clothes. That is why we proposed to open the shop in a hotel so that they could tell Koe's brand concept to a customer with using 24 hours. Considering about the culture of Shibuya, which has massive music culture, there are many music clubs and record shops, we planed the restaurant and pop-up space on the grand floor where is used as a music live and club space on the weekend. The shop of apparel on the second floor, and the bar lounge on the third floor.

我们把酒店作为一个入口,让人们获得意想不到的各种体验,比如寻找美食的人可以找到时尚,来听音乐的人可以触摸到美食的空间,来观光的人可以意外地与陌生人跳舞。另外,我们强烈希望通过涉谷镇的杂乱和酒店的安静的对比来设计强烈的反差,用酒店空间的不同用途来传达一种时尚,这些东西之间的关系,使我们能够创造出涉谷的新文化。
We made the hotel as an entrance for making an unexpected various experience, such like people who look for a good meal will find a fashion, people who come to listen to the music will touch a space of food, and people who come for sightseeing will dance with stranger unexpectedly. And also, we strongly intended to design strong contrast by using a contrast of the clutter in the town of Shibuya and the silence in the hotel, a different usage for the hotel space to convey a fashion, the relationship between these things, so that we could make a new culture of Shibuya.

东京Koe酒店已经开业两个月了。我们看到人们像在公园里一样坐在大楼梯上聊天,周末时,大楼层变成了音乐现场空间和俱乐部。顾客会得到被称为 "新 "的体验,因为他们在找到一个不同的空间时遇到了与他们的标准相悖的情况,尽管他们期望在入口处有一个餐厅。当我们考虑到建筑应该具有积极的功能,打破由标准化功能设计的建筑,我们相信对入口理论的思考将成为建筑未来的种子。最后,设计一个城市的一部分,也就是设计这个地方的意义,是这个项目的框架。
Hotel Koe Tokyo has been opened for 2 months. We’ve seen people who sat to chat on the grand staircase like in a park and the grand floor turned to music live space and club on the weekend. Customer will get experience called ‘NEW’ by they bump into paradox situation against the standard they have when they find a different space even though they expected there is a restaurant beyond an entrance to it. When we think about how architecture should be with active function, with breaking away from constructing a building designed by standardized function, we believe that thinking about the theory of entrance would be a seed for a future of architecture. In the end, designing a part of town, which means designing the meaning of this place, was the frame of this project.










Architects: Suppose Design Office
Area : 1859 m²
Year : 2018
Photographs :Kenta Hasegawa (OFP.,Ltd)
Manufacturers : COMPLEX UNIVERSAL FURNITURE SUPPLY, L&L, PACIFIC HOUSE TEXTILE, Qusamura, Seventh-code
Lead Architects : Makoto Tanijiri, Ai Yoshida
Client : Stripe International Inc.
Floor Areas : 1F 596.67m2 / 2F 633.05 m2 / 3F 629.60m2
City : Shibuya-ku
Country : Japan