酒店位于通往Guiones海滩的主干道前的一个小地方,这是一个小而受欢迎的冲浪目的地。 业主希望创造一个空间来聚集年轻的冲浪旅行者,客人可以坐在一起,分享他们的经验,享受彼此的陪伴,但在卧室里要提供足够的隐私。它需要结合不同预算的睡眠选择。该项目需要给人以亲切和熟悉的感觉,但一旦你进入其中,你就会有隐私,并与路上发生的事情保持距离。
The hotel is located on a small property in front of a main road to the beach of Guiones, a small but popular surf destiny. The owners wanted to create a space to gather young surfer travelers, where guests would seat together, share their experiences and enjoy of each others company, but would offer enough privacy in the bedrooms. It needed to combine sleeping options for different budgets. The project would need to feel welcoming and familiar, but once you are inside, you’d have privacy and distance from what happens on the road.





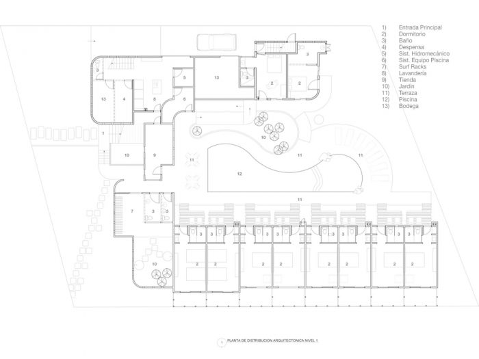
该物业有其狭窄的一面,在那里设计了三个不同的入口,主要的和有吸引力的入口被抬高了一半,这个入口通向位于二楼的接待和生活区,这些区域有最好的景观,并能捕捉到更多的风,因为所有这些空间都向自然空气开放。 从社交区,人们可以看到邻居物业的后面是一个自然保护区,天幕和更高的道路景观。由于是在道路的半平面上,并且有坚固的栏杆,人们从酒店可以向下看道路,但站在道路上的人却不能看酒店的隐私。同样的概念也用于不在一楼的卧室。一个次要的入口比道路低一些,它更隐蔽,用于从海滩来的客户冲洗,储存他们的冲浪板,直接跳入游泳池或直接去位于游泳池边的卧室。而服务入口是建筑的一个不太显眼的入口,位于一条小巷子里,是为服务和私人公寓提供通道的。
The property has its narrow side to the road where three different entrances where designed, the main and attractive entrance is elevated about half level, this entrance leads to reception and living areas that are located on the second floor, the areas have the best views and catch more wind, as all this spaces are open to natural air. From the social area, people have a more open view to the back of the neighbor property that is a natural reserve, the canopy and a higher view over the road. Being half level over the road and with solid railings, people from the hotel can look down to the road but people standing on the road can’t look in the privacy of the hotel. This same concept was used for the bedrooms that where not located on the ground floor.A secondary entrance is some steps lower than the road, it is a lot more discreet and is used for clients coming from beach to rinse, storage their boards and jump straight in the pool or go directly to their bedrooms located along the pool. And the service entrance is the less visible entrance to the building, located on an alley that was kept to give access to service and private apartment.


从社交区,人们可以看到邻居物业的后面是一个自然保护区,有一个树冠和一个更高的道路景观。由于在道路上有半层,并有坚固的栏杆,人们从酒店可以向下看道路,但站在道路上的人不能看酒店的隐私。这个概念也被用于不在一楼的卧室。
From the social area, people have a more open view to the back of the neighbor property that is a natural reserve, the canopy and a higher view over the road. Being half level over the road and with solid railings, people from the hotel can look down to the road but people standing on the road can’t look in the privacy of the hotel. This same concept was used for the bedrooms that where not located on the ground floor.


一个次要的入口比道路低一些,它更隐蔽,用于从海滩来的客户冲洗,储存他们的冲浪板并直接跳入游泳池或直接去他们位于游泳池边的卧室。而服务入口是建筑的一个不太显眼的入口,位于一条小巷子里,是为服务和私人公寓提供通道的。
A secondary entrance is some steps lower than the road, it is a lot more discreet and is used for clients coming from beach to rinse, storage their boards and jump straight in the pool or go directly to their bedrooms located along the pool. And the service entrance is the less visible entrance to the building, located on an alley that was kept to give access to service and private apartment.



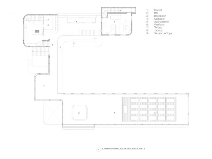
楼层平面图有一个向后方和森林开放的U形,游泳池位于中心,中央的天井有美丽的植物和一个大游泳池,是每个公共空间的肺和主要景观。
The floor plan has a U shape open to the back and forest, and having the pool in the center, the central patio created with beautiful plants and a big pool is the lung and main view of every public space.

砖石结构是该地区最常见的建筑方法,所有的角落和边缘都是圆滑的,对比材料是木材,以非常自然和简单的方式管理,木材也增加了柔和的颜色和自然的纹理,大部分的木材工作是由当地的工匠完成的。其他一些材料,如藤条、瓦片和石头被用来做装饰。
该设计是一个简单的几何形体组成,带有小而有吸引力的开口或木窗,与宽阔的开放空间形成对比,在实体形体的上方和周围创造出循环和生活区,它的美丽和吸引力在于将形体置于平衡之中的艺术,建筑元素的简单性,以及手工制作的木制作品。
It was built in masonry that is the most common construction method in the area, all corners and every edge was rounded and the contrast material is wood managed on a very natural and simple way, the wood adds also a soft color and a natural texture, most of the wood work was done by the local artisans. Some other materials such as cane, tiles and stone where used for accents.
The design is a simple composition of solid geometric forms with small and attractive openings or wood windows, in contrast with wide open spaces that create circulations and living areas over and around the solid forms, its beauty and attractive is in the art of putting the forms in balance, the simplicity of the architectonic elements, and the handcrafted wood work.























Architects : Salagnac Arquitectos
Area : 1200 m²
Year : 2016
Photographs :Andrés García Lachner
Manufacturers : Barn Light Electric, Fireclay, Schoolhouse Electric, Evoke the Spirit, One Forty Three, Popham Design
Lead Architects : Evangelina Quesada, Lucca Spendlingwimmer
Construction : Construction Pros
Country : Costa Rica