Casa 4 Aguas是一栋位于瓦拉斯港农村地区的独栋别墅。该地段有一个明显的山坡,在最高点可以看到卡尔布科火山和兰基湖。该项目适应坡度,抓住了湖和火山的景观。
Casa 4 Aguas is a single-family house located in the rural sector of Puerto Varas. The lot has a pronounced hill, which at its highest point reaches a view of the Calbuco volcano and Lake Llanquihue. The project adapts to the slope and seizes the views of the lake and volcano.




为了达到这个目的,房子的用途是按楼层划分的。在第一层,在地块的较低部分,我们设置了通道和停车场,同时还有一个直接与地块的自然水平相结合的烧烤区。因此,我们实现了一个灵活的游客流通和通道,以防止雨水。
To achieve this, the uses of the house are divided by floors. On the first floor, in the lower part of the lot, we locate the access and parking lots, accompanied by a barbecue area that integrates directly with the natural level of the lot. Thus we achieve a flexible circulation of visitors and access protected from rain.


主层,即第2层,位于通道的顶部,创造了入口处的覆盖空间。这个主楼层的比例相当修长,位于该地块的最高点,这就是为什么它有一个部门位于自然水平,而另一个部门作为1楼的盖子。
The main floor, or floor 2, is located on top of the access, creating the covered space of the entrance. This main level, whose proportions are rather elongated, rests on the highest point of the lot, which is why it has one sector at the natural level, while another sector acts as the cover for floor 1.


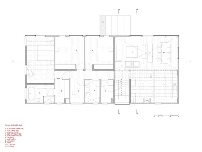
卧室、厨房、客厅、餐厅、洗衣房和浴室都位于这一层。这种层次的游戏,再加上东北面的大窗户,可以在树梢的高度上看到卡尔布科火山的特权。最后,在三楼,有一个开放的夹层,可以俯瞰主空间,供游客使用。
The bedrooms, kitchen, living room, dining room, laundry room, and bathrooms are located on this floor. This play of levels, added to a large northeast window, allows for a privileged view of the Calbuco volcano at the height of the treetops. Finally, on the third floor, there is an open mezzanine that overlooks the main space, intended for visitors.

屋顶的特色形状是由功能决定的。每个屋顶有两个坡屋顶,一个较小的屋顶用于卧室的最私密区域,一个较大较高的屋顶用于容纳公共空间和夹层。
The characteristic shape of the roofs is determined by functionality. With two gabled roofs each, a smaller one for the most intimate area of the bedrooms and a larger and taller one that houses the common spaces and mezzanine.

房子的材料对比了现代钢结构,这是实现有顶停车场和支持大体积的必要结构,与该地区的传统木结构相结合。
The materiality of the house contrasts a contemporary steel structure, a necessary structure to achieve the covered parking and to support the large volume, combined with the traditional wood construction of the area.












Architects: Viento Norte
Area : 265 m²
Year : 2022
Photographs :Matias Riveros
Manufacturers : Casa Mobili, Fuegos del Sur, Galpón 08, Tablao PV, Wasser
Lead Architects : Dulce Elena Sánchez, Valeria Perramont
City : Puerto Varas
Country : Chile