46号院位于高密度城市的老巷子里,周围有各种不同功能和用途的建筑,如补习班、酒店、寺庙、餐馆、零售商、住宅等等。
House no.46 is located on the old alley of a high-density city, surrounded by all kinds of the buildings that have different functions and usages, such as cram school, hotel, temple, restaurant, retailer, residence, and so on.




与附近市中心的城市景观相比,老巷子的景观更有趣,也更有层次感。它显示了时间对它的影响和改变。高密度的城市生活和慢节奏的生活之间的共存将是这个项目的主题。
Compare to nearby cityscape of downtown area, the old alley view is more interesting and gets more levels of sense. It shows that how time affects and changes it. Coexistence between high-density city life and slow paced life would be the topic of this project.

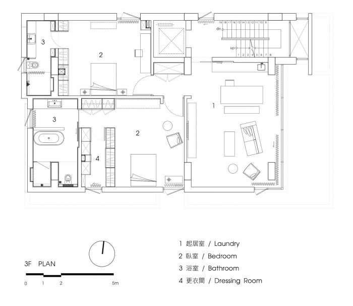
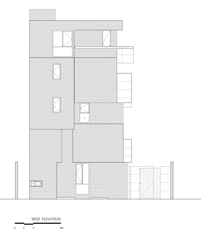
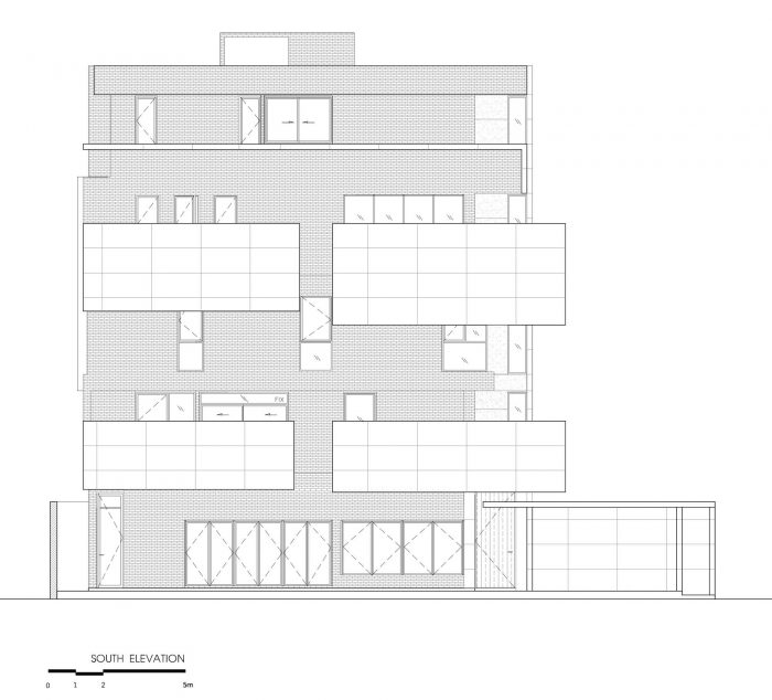
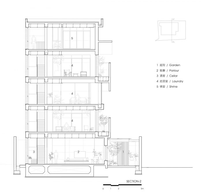
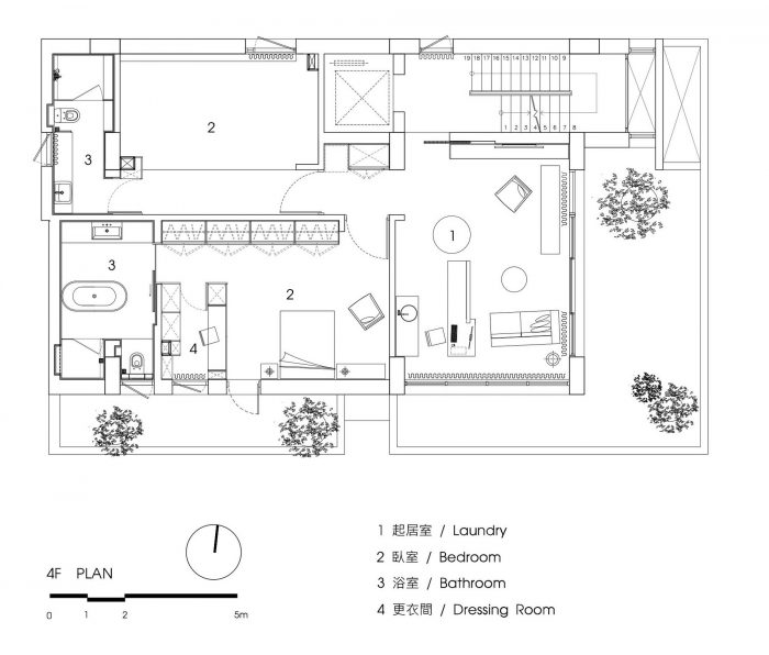
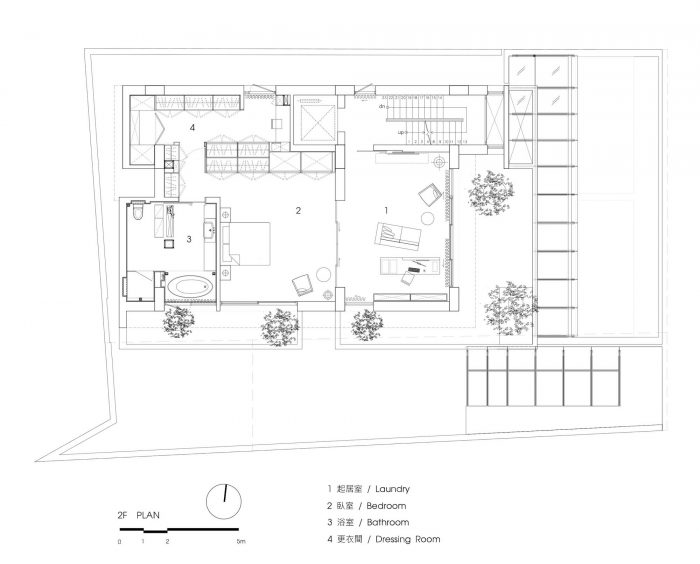
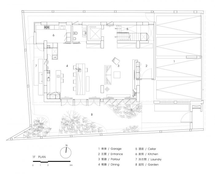
设计的理念是创造一个长方体作为主要体量,然后用几个元素覆盖它,如大阳台、高墙、深顶,使这个项目成为一个半封闭的、紧凑的房子。来自内部的视线将被这些元素部分阻挡,同时,一个新的观点被创造出来:一个内院。这些元素不仅部分地阻挡了视线,而且还使内部空间更加私密。通过开口的安排,城市景观被分割成若干部分,它可以是云、天际线、树梢和低层阳台或底层后院的植被,所有这些场景都成为室内空间的背景。
The idea of design is to create a cuboid as main volume, then covered it with several elements, like big balconies, high walls, deep headers, that makes this project an semi-enclosed, compact house. Vision from inside would be partly blocked by those elements, in the meantime a new view was created: an inner courtyard. Those elements are not only just partly blocking view, but also keeps interior spaces more private. By arrangement of opening, cityscape had been divided into pieces, it could be cloud, skyline, treetop and vegetation on lower balcony or in ground floor backyard, all these scenes became backgrounds of interior spaces.



符合建筑美学的材料调色板响应了纹理之间的高度对比。暖色系花岗岩瓷砖的粗糙表面强调了建筑外部光滑细腻的混凝土表面。室内的主要材料是柚木,这种天然材料的温暖减少了混凝土内院造成的隔离感,而且使用后会产生一种独特的质感。
The palette of materials that conforms the aesthetics of the building responds to the high contrast between textures. The rough surface of warm colors granite tile emphasizes the smooth and fine concrete surface on exterior of building. Major material of interior are teak wood, the warmth of this natural material reduced the sense of isolation that caused by the concrete inner courtyards, and it will produce an unique texture after using it .



在上述的设计思路和方法中,我们提出了一个主题。"高密度城市生活与慢节奏生活的共存 "在实践中得以实现。
Above-mentioned ideas and approach of the design, we made the topic: “coexistence between high-density city life and slow paced life” work in practice.

























Architects: FCHY architect lab
Area : 407 m²
Year : 2017
Photographs :Yi-Hsien Lee Photography
Manufacturers : Rolf Benz, Villeroy & Boch, Chieftain, Dakin, GFC Toshiba, Sankyo
City:Chiayi city
Country:China