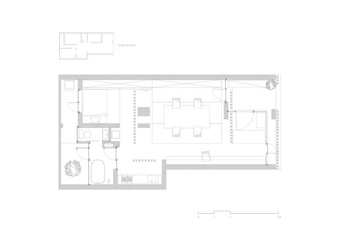
"58号房子 "是一个旧公寓的改造项目。它位于一条小巷的一楼,在一个高密度的住宅区里,具有亲密的规模和复杂的背景。附近有许多小商店、停车场和各种类型的住宅。街道上有组织的--混乱的停车安排,同时还有邻里间的聚会,在街上聊天,把衣服晾在窗外,在日常生活中把东西暂时存放在门前和/或屋里。这是一条可以感知生活的小巷。
"House No.58" is a renovation project of an old apartment. It is located on the first floor of an alley with intimate scale and complex context in a high-density residential area. There are many small shops, parking lots, and various types of residences in the neighborhood. Organized- chaotic parking arrangements on the street along with neighborhood gatherings, chatting on the street, hanging out the laundry outside of the window, and storing stuff in front of the door and/or house temporarily during daily life. It’s an alley where you can sense living.





在过去,街区被用来有强大的社会联系,街屋融合了住宅和商业混合使用。因此,传统街屋的设计往往忽略了沿街的住宅生活隐私。在我们开始参与这个项目后,我们开始重新考虑现代生活方式与街巷之间的暧昧关系和界面。同时,我们也关注街屋中的黑暗和闷热的气流问题,试图找到重新连接内部和外部环境的方法。
The neighborhoods were used to have strong social connections in the past with the street house blends residential and commercial mixed-use. Therefore, the design of traditional street houses is often ignored the residential life privacy along the street. After we’d started to be part of the project, we’d started and reconsidered the ambiguous relationship and the interface in between modern lifestyle versus street alleys.At the same time, we are also concerned about the problem of the darkness and stuffy airflow in the street houses and are trying to find ways to reconnect the interior and external environments.


为了增加空间的灵活性,我们拆除了原来的室内隔墙,改变了前立面,并打开后院的屋顶,使之成为一个庭院。这有助于将空气和光线重新引入室内空间。然后,我们在院子旁边设置了沐浴用的透明玻璃箱,连接到室内空间,使其成为一个更大的生活空间的层次感的院子。
To increase the flexibility of the space, we removed the original interior partition walls, changed the front façade, and opened the roof of the backyard to make it into a courtyard. It helps to bring the air and the light back into the interior space. Then we set up the bathing transparent glass box right beside the courtyard connecting to interior space to make it a larger hierarchical courtyard for living space.



我们试图用我们的手工材料取代传统的墙体,以增强空间的空气和灯光的流动性,以保持我们的核心设计理念。我们提出了几个公式,并开始尝试这个想法。我们工作室的合伙人尝试了那么多的混凝土比例来使空心墙砖尽可能的薄,最后,我们得到了10毫米的薄砖。我们期望我们的手工砖墙成为街道和私人住宅之间的一个模糊的立面。立面砖墙在向外面的街道开放时,将室内的信息分割开来,保留了隐私。
We tried to replace the traditional wall with our handmade materials to enhance the fluidity in terms of the air and the lights of the space to keep our core design concept. We’d proposed several formulas and started to experiment with the idea. The partners of our studio tried so many concrete ratios to make the hollow wall brick as thin as possible, finally, we got 10mm thin brick. We expect our handmade brick wall to be an ambiguous façade between the street and the private house. The façade brick wall fragments the interior messages which preserve the privacy when opening to the outside street.


当主人不在房子里时,有邻居在半室外的入口楼梯上紧紧地坐着聊天。街道和房子开始融合。当主人在书桌前阅读时,他/她可以看到自行车和邻居慢慢地经过,但他/她的思想没有被打断。街道和室内的活动没有过度暴露,但也没有绝对的相互分离。我们试图通过使用我们的手工砖墙应用,使沿街一楼的生活更加细致,与街道共生。
When the owner was not in the house, there were neighbors sitting and chatting closely on the semi-outdoor entrance stairs.Streets and the house began to merge.When the host reads at the desk, he/she can see bicycles and neighbors slowly passing by, but his/her thoughts are not interrupted.The activities of the street and the interior are not overly exposed but not absolutely separated from each other. We attempted to make the life of the first floor along the street more detailed in symbiosis with the street via using our handmade brick wall application.




















Architects: FCHY architect lab
Area : 76 m²
Year : 2021
Photographs :Hsiu-Chung Yang
City : Taichung
Country : China