一个牛棚矗立在荷兰Brandwijk的乡村里。在一个以宁静、宽敞和农业景观为特点的地方。这些空间品质是客户想要精确地居住在这里的原因。
A cow shed stood in the rural village of Brandwijk, the Netherlands. In a place that is characterized by tranquility, spaciousness, and views over the agricultural landscape. These spatial qualities were the reason for the clients to want to live precisely here.



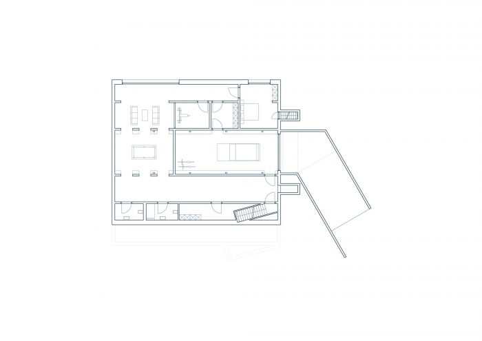
这座房子由两个体量组成。景观的方向决定了这些体量的方向。一个体量容纳了床和浴室,并遵循景观的线条,另一个体量容纳了生活/用餐区,并与乡村道路平行。这种L形的方向的额外好处是,同时创造了一个有遮蔽的户外空间。
The house is composed of two volumes. The directions of the landscape have determined the orientation of these volumes. One volume houses the bed- and bathrooms and follows the lines of the landscape, the other volume houses the living/dining area and runs parallel to the country road. The additional bonus of this L-shaped orientation is that simultaneously a sheltered outdoor space is created.


以前牛棚的粪坑被用作房屋的基础。将粪坑的墙壁延长一米,以一种非常实惠的方式创造了一个额外的生活空间层。由于地基的特殊性,需要一个轻型建筑。出于这个原因,我们选择了一个预制的木材框架来建造房屋。VLOT建筑师与承包商合作,负责订购所有材料,并检查建造所需的所有第三方图纸。
The former manure pit of the cow shed has been used as the foundation for the house. Extending the walls of the pit by one meter creates an extra layer of living space in a highly affordable way. Due to the special foundation, a light building was required. For this reason, a prefab timber frame has been chosen to construct the house. VLOT architecten has been, in collaboration with the contractor, responsible for ordering all materials and checking all third-party drawings necessary for the build.



外墙和屋顶的材料是由锌覆层和木覆层组成的。房子的设计考虑到了400毫米的网格。锌也有400毫米的定制宽度,木板是90毫米,有10毫米的间隙。大窗户的宽度为400毫米,比例为方形。它们被战略性地定位,以框住特定的景观视野。
The materialization of the facade and roof consists of zinc cladding combined with wooden cladding. The house has been designed with a grid of 400 mm in mind. The zinc also has a custom width of 400 mm, the wooden boards are 90 mm with a 10 mm gap. The large windows are a multitude of 400 mm and have a square ratio. They have been strategically positioned to frame specific views of the landscape.


起居室和餐厅空间在框住风景方面有不同的处理。两个相同的6.000毫米宽的水平开口已被定位。从乡间小路,人们可以通过客厅看到外面的风景。从房子里,可以看到与两侧景观的关系。
The living and dining space has a different treatment regarding framing the view. Two identical horizontal openings of 6.000 mm wide have been positioned. From the country road, one can look through the living room to the landscape beyond. From within the house, a relation with both sides of the landscape is given.














Architects: VLOT architecten
Area : 560 m²
Year : 2022
Photographs :VLOT architecten
Manufacturers : Metaglas, NedZink, Velux
Lead Architects : Stefan de Vos & Jeroen Lemans
Structural Engineers : Adviesbureau Docter
Contractor : LRC Aannemersbedrijf
Environmental & Sustainability Consultants : EPOS Energie Prestatie
City : Brandwijk
Country : The Netherlands