在这项改造工作中,几个不同类型的建筑必须被整合成一个单一的住房用途。作为主要的策略,旧谷物磨坊的双高空间被用来连接不同的部分,在其中放置主要的生活区,利用它在建筑群中占据中心位置的事实。最初的不同区域有五个:另一栋房子的隔离部分、磨坊、一些马厩、干草堆和磨坊上方的高楼,以及作为谷仓或阁楼的房子,其形式是一个单一的双层高的中庭。
In this work of transformation, several buildings of different typologies had to be integrated into a single one for housing use. As the main strategy, a double-height space of the old cereal mill has been used to unite the different parts, placing in it the main living area, taking advantage of the fact that it occupies a central position in the complex. The different initial areas were five: a segregated part of another house, the mill, some stables, a haystack, and a high floor above the mill, and the house as a barn or attic, in the form of a single double-height nave.


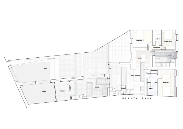
发起人是一对夫妇,他们计划间歇性地使用这所房子来养老。孩子们回家后需要一些独立性,因为他们已经组建了自己的家庭,为此,房子被安排为几个完整单元的总和。其中一个部分,即主单元,由底层的三间卧室和主要的日间使用区组成。另外两个部分在顶层,作为两个独立的公寓,虽然与其他空间有良好的联系。此外,还安排了一系列的开放空间,这些空间可以以灵活的方式居住,如旧谷仓或有顶棚的夹层。一个巨大的双高走廊占据了旧马厩和谷仓的一部分,作为天井的入口和半户外空间--可用作门廊或根据可拆除的玻璃围栏用作温室--用于家庭聚会,与公共底层的客厅-餐厅-厨房相连。
The promoters are a couple who plan to use the house intermittently for retirement. Children need some independence when they go home because they have already formed their own families, for which the house has been arranged as the sum of several complete units. One part, the main one, is made up of the ground floor with three bedrooms and the main day-use areas. Two other parts are on the top floor as two independent apartments, although well connected with the rest of the spaces. In addition, a series of open spaces have been arranged, which are available to be inhabited in a flexible way, such as the old barn or the mezzanines undercover. A large double-height hallway that occupies part of the old stable and the barn, serves as access from the patio and as a semi-outdoor space - with use as a porch or as a greenhouse according to a glass enclosure that can be removed - for family gatherings connected with the common ground floor living-dining room-kitchen.




在主入口处,有一个来自街道的门,与城镇广场相连,一个双层高的大厅已经被重新创造出来,上面有一个楼梯,就像那些在20世纪50年代之前在镇上建造的最高质量的住宅。对于楼梯的锁匠来说,马里奥-里多菲(Mario Ridolfi)设计的奇塔里尼(Casa Chitarrini)建筑的楼梯(1950年)以及罗南和厄万-布鲁莱克(Ronan & Erwan Bouroullec)目前的Palissade家具系列都被作为参考。从这个有代表性的入口空间,房子在一楼必须通过厨房进入,厨房被整合到同一空间的一套房子的主要房间里。空间等级被颠覆了,因此谷仓是一个庆祝的大厅,而厨房则欢迎访客。
For the main entrance, with a door from the street that connects with the town square, a double-height lobby has been recreated with a staircase like those that were built in the town until the 1950s in the highest quality homes. For the locksmiths of the staircase, the staircase of the Casa Chitarrini building (1950) by Mario Ridolfi has been taken as a reference, as well as the current Palissade furniture line by Ronan & Erwan Bouroullec. From that representative entrance space, the house is accessed on the ground floor necessarily through the kitchen, which is integrated into the set of main rooms of the house in the same space. Spatial hierarchies are subverted, so that the barn is a hall for celebrations and the kitchen welcomes visitors.



一些有价值的饰面或装饰元素,在老房子的部分已被扩展到其余的房间,以这样一种方式,它们是一个可识别的主题,有助于有效地整合新的一套。因此,液压地板或吊灯已经殖民了其他区域,为旧的生产空间增加了一种暧昧的高贵感。为了同样的目的,原来地板的颜色已经扩散到新的地板、天花板和墙壁,放大了原有的印记。
Some valuable finishes or decorative elements that were in the part of the old house have been extended to the rest of the rooms, in such a way that they are a recognizable motif that helps to effectively integrate the new set. Thus, hydraulic floors or chandeliers have colonized other areas, adding an ambiguous nobility to the old productive spaces. To the same end, the colors of the original flooring have been diffused into the new floors, ceilings and walls, amplifying the imprint of the pre-existing.













Architects: Funcionable arquitectura
Area : 521 m²
Year : 2021
Photographs :Imagen Subliminal
Manufacturers : AutoDesk, Adobe, Equipe, Hilti
Lead Architect : Julio César Moreno Moreno
Consultants : Jesús Crespo Alcoceba
Collaborators : Mónica Martín, Andreea Taragan, Carme Carrasco, Claudia Troca, Carla Pérez
City : Oropesa
Country : Spain