圣托蒂尔索市的一个成熟的城市住宅区--干预措施不可避免地是对这一复杂和具有挑战性的背景的反射性反应。城市地块,被限制在邻居之间,从景观的角度来看,其可见的对抗几乎没有任何意义。
A well-established urban residential area in the city of Santo Tirso - The intervention is inevitably a reflex response to this complex and challenging context. Urban plot, confined between neighbors and whose visible confrontations had little or nothing significant from the landscape point of view.




以前的存在,严重退化,没有什么建设性的价值,生活在街道和后院之间的典型和无趣的双重性。摆脱这种类型代表了一种既合乎逻辑又具有挑战性的态度,但最重要的是,它是必要的和有效的。
The pre-existence, heavily degraded and with little constructive value, lived in the typical and uninteresting duality between the street and the back courtyard. Moving away from this typology represents an attitude that is both logical and challenging, but above all, necessary and effective.



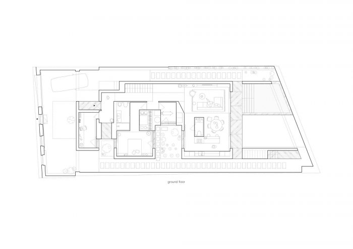
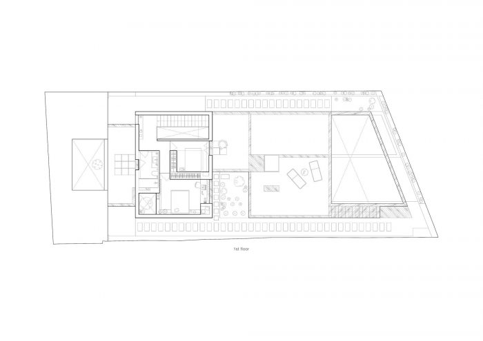
干预从一个巨大的街区开始,它不经意地脱离了限制,模仿了地块的轮廓。从这里开始,通过减法,空隙被定义,程序被直观地容纳在天井之间,不断拒绝与外部周边的直接关系。
The intervention starts from a massive block that, impertinently, detaches from the limits and mimics the land plot outline. From here, by subtraction, the voids are defined, and the program is intuitively accommodated between patios in a constant refusal of a direct relationship with the exterior perimeter.


房子的设计在创造一个密集和封闭的堡垒和重新解释典型的天井房子之间取得了复杂的平衡,寻找一个受保护的绿洲,在它与天空的亲密关系。名字--Forte--谴责了强制性的隐私主题,而体积设计揭示了为空间捕捉光线和通风的基本策略,在一个朴素的和假定的伊斯兰文化的灵感中。
The house is designed in a complex balance between the creation of a dense and closed fortress and the reinterpretation of the typical patio house, looking for a protected oasis, in its intimate relationship with the sky. The name - Forte - denounces the mandatory theme of privacy, while the volumetric design reveals the essential strategy of capturing light and ventilation for the space, in an unpretentious and assumed inspiration in the Islamic culture.

![]()

旧的外墙,是存在前的身份元素,是旧布景中仅存的几个元素之一。通过必要的功能改变,它被恢复和复原为一个与相邻的城市结构相凝聚和框架的元素,减少对街道的干预城市影响。
The old facade, an identity element of the pre-existence, is one of the few remaining elements of the old set. With the necessary functional changes, it was restored and rehabilitated as an element of cohesion and framing with the adjacent urban fabric, reducing the intervention urban impact on the street.
![]()
![]()


客户和朋友们都在寻找,在一个空间和隐私有明显限制的地块上,有一个非常实用和灵活的房子,同时也是敏感和令人惊讶的。答案,以一种强烈的方式成熟,有一个与挑战的解决密切相关的特点,而没有放过它的个性和创造情感空间和时刻的愿望,作为操纵的物质,光是这些时刻的主角。
The clients, and friends, were looking, on a plot with clear limitations of space and privacy, for a house that was at the same time, extremely pragmatic and flexible, but also sensitive and surprising. The answer, matured in an intense way, has a character strongly linked to the resolution of the challenge, without ever letting go of its personality and desire to create emotive spaces and moments, being the light, as manipulated matter, the main protagonist of these moments.




有一些空间是无法用语言解释的,它们是可以感受到的。荒谬的功能主义和简单的时尚,往往一点一点地窒息了建筑中的情感。希望不是在这里,在Forte。
There are spaces that cannot be explained by words, they are felt. Absurd functionalism and easy fashion, tend, little by little, to asphyxiate the sentiment in architecture. Hopefully not here, at Forte.





















Architects: pema studio
Area : 3014 ft²
Year : 2022
Photographs :Ivo Tavares Studio
Manufacturers : FOREST STONE, Sosoares, Tromilux
Builder : Construções Alves e Freitas, Lda.
Engineering : M2 – Gabinete de Estudos
City : Santo Tirso
Country : Portugal