语境
"亲爱的朋友们,我们搬家了,现在位于天堂。当然,这里仍然可以联系到我们,并期待着你们的来电和来访。"
2009年5月,当我收到客户发来的这封通告邮件时,我知道它已经完成了!这是我的第一个项目。经过一年半的规划和施工,我的第一个项目建成了。客户是一对已婚夫妇,他们买下了一块地皮,上面有一座建于1957年的两层独立式 "Siedlungshaus",在德国非常普遍。它位于紧邻市中心的社区,有一棵美丽的老白桦树,以及有机会购买相邻的未建成的地块,这些都是无可比拟的品质。
Context
“Dear friends, we moved and are now located in paradise. Of course we can still be reached here and are looking forward to your calls and visits.”
When I received this circular email from the client in May 2009, I knew it was completed! After 1 1/2 years of planning and construction my first project was built. The client, a married couple, had bought a site with an existing two-story, detached “Siedlungshaus” built in 1957, very common in Germany. Its location in a neighbourhood right next to the city centre, a beautiful old birch tree as well as the opportunity to purchase the adjacent unbuilt plot were unbeatable qualities.



这一切都始于一个愿望清单。对丈夫来说,新房子必须是现代化的。它应该有宽敞的开口和连接到花园的外部空间。他对材料的非凡使用和良好的细节很着迷,这显示了高质量的工艺。妻子渴望舒适和惬意;它应该是一个 "感觉良好的房子"。她设想她的新家首先是一个内部空间,作为对外部世界的保护。这座房子应该看起来很谨慎,有典型的斜屋顶,第一眼就能感受到家庭的温暖。这些都是很矛盾的品质,要在一个统一的建筑作品中解决。
概念
我们看到了 "Siedlungshaus "的潜力,决定对其进行改造,并以此为契机,创造一个创新的对比性建筑。新的110平方米的扩展被设想为一个简单的体量,拥抱旧的。围绕着老建筑,它产生了一个庭院类型,有一个有盖的露台,它慷慨地开放给花园和阳光。
It all started with a wish list. For the husband the new house had to be modern. It should have generous openings and exterior spaces that connect to the garden. He was fascinated by the extraordinary use of materials and good details, which show high quality craftsmanship. The wife aspired for comfort and cosiness; it should be a “feel good-house”. She envisioned her new home fi rst of all as an interior space, as protection from the outside world. The house should look discreet and typical with a pitched roof and radiate domesticity at first glance. These were quite conflicting qualities to resolve in a single cohesive piece of architecture.
Concept
We saw potential in the small rundown “Siedlungshaus”, decided to renovate it and take it as an opportunity to create an innovative contrasting addition. The new 110m2 extension is conceived as a simple volume that embraces the old. Wrapped around the old building, it generates a courtyard typology with a covered terrace, which generously opens up to the garden and towards the sun.

各种各样的空间配置,从内部到外部的流畅过渡和出乎意料的视野,使房子显得开放和有趣,但不透明。
加建的方向将大花园细分为多个领域。老山毛榉树篱与建筑的私人背面一起形成了一个亲密的 "秘密花园",它被巨大的白桦树所支配。在新车库和扩建部分之间的街道上,为园艺工作创造了一个铺设好的开放式庭院。
A variety of spatial configurations, fluent transitions from inside to outside and unexpected vistas make the house appear open and interesting, yet not transparent.
The orientation of the addition subdivides the large garden into manifold domains. Together with the private backside of the building the old beech hedge forms an intimate “Secret Garden”, which is dominated by the giant birch tree. Towards the street between the new garage and the extension a paved open yard is created for gardening work.

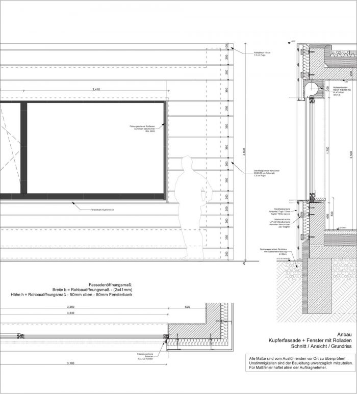
扩建部分的材料对于新旧对比的表达至关重要。
现有房屋的白色简约外观与扩建部分醒目的铜板形成了强烈的对比。几种不同宽度的水平板像一个保护性的线圈一样包围着新增加的房子和它的白色抹灰院子。铜会发出温暖而生动的颜色,随着天气和岁月的变化而不断变化。
改造
改造后,旧的 "Siedlungshaus "几乎无法辨认,但它仍然是周围社区的一个组成部分。缩小了它的比例和简单的体积,它现在以透明的白色闪亮登场,并令人耳目一新,以便与它的现代建筑共存。没有了以前的屋顶悬垂,现有房屋的朴素体量进入了前台。屋顶边缘是由一个折叠的铜条塑造的,它与白色的抹灰墙齐平。这种清晰的感觉被带有细长的黑色木铝框架的平齐安装的窗户进一步强调。
The materiality of the extension is crucial for the contrast of the Old and New to be expressed.
The white simple look of the existing house forms a strong contrast to the striking copper cladding of the extension. Horizontal panels in several different widths enclose the new addition with its white plastered courtyard like a protective coil. The copper glows in warm lively colours, which change continuously with the weather and the years.
Conversion
After the renovation the old “Siedlungshaus” is barely recognizable but still it remains an integrative part of the surrounding neighbourhood. Reduced to its fine proportions and its simple volume it now shines in clear white and refreshingly stands out in order to coexist next to its modern addition. Without its former roof overhang the plain volume of the existing house steps into the foreground. The roof edge is shaped by a folded copper strip, which is flush-mounted with the white plastered walls. This clarity is further emphasized by flush-mounted windows with slim black wood-aluminium frames.

白色灰泥和铜形成了一个对比强烈而又吸引人的联盟,使新旧两类建筑成为整个建筑的不同部分。朝向街道的一面低矮的混凝土墙和一面偏移的天然石墙标志着场地的边缘,并将新旧两处结合成一个整体。
内部空间
现有建筑在地面上的居住面积为75平方米,为了使空间比例更加充裕和清晰,该建筑被完全拆除。
入口位于原来的位置,然而,现在一个裸露的混凝土元素通向大门的四个台阶。入口大厅、客人厕所和书房以及厨房和用餐区都位于老房子的底层。用餐区被改造成一个宽敞的双层空间,通过两个天窗捕捉到阳光。在上层的一个房间里,一整块混凝土天花板被拆除。
The white plaster and the copper form a contrasting yet appealing alliance, that leaves Old and New as distinct equal parts of the whole. Towards the street a low exposed concrete wall and an offset natural stone wall mark the edge of the site and bind Old and New into one unity.
Interior Spaces
The existing building with a living area of 75m2 on ground level was completely gutted in favour of more ample and clear spatial proportions.
The entrance is situated at its original location, however, now an exposed concrete element leads up four steps to the door. The entrance hall, guest toilet and study as well as the kitchen and dining area are located on the ground floor of the old house. The dining area was converted into a generous double-height space that catches the sunlight through two skylights. At the cost of one room on the upper floor a whole concrete ceiling panel was removed.

房子新部分的客厅有一面柜子墙,提供了存储空间,而一个铺着油毡的壁龛则作为窗边的座位。在对面的地方,一扇大推拉门将客厅与内院连接起来。
院子是整个房子中最大的 "房间"。它的布局允许阳光直射,也允许在一天中的任何时候有阴凉。阳台的一部分被覆盖;两个大的开口框住了进入花园的视野,而一个整齐的裸露的混凝土墙提供了保护,防止太多透明。
老房子后面的三个小房间被合并,成为新的书房。从这里你可以到达扩建部分的私人空间,这些空间隐藏在现有房屋的后面。卧室里的一个大窗户通向秘密花园,而更衣室则连接到内院。老房子的上层被完全翻新,现在包含一个带小浴室的客房,以及一个可以通往阁楼的瑜伽室。
The living room in the new part of the house features a cabinet wall that offers storage space, while a linoleum-lined niche serves as a window seat. On the opposite site a large sliding door connects the living room to the inner courtyard.
The courtyard is the biggest “room” of the whole house. Its layout allows for direct sunlight as well as shade at any time of the day. Part of the terrace is covered; two large openings frame the views into the garden, while a neatly positioned exposed concrete wall offers protection against too much transparency.
Three small rooms in the back of the old house were combined and became the new study. From here you can reach the private spaces of the extension, which are hidden behind the existing house. A large window in the bedroom opens up to the Secret Garden, while the dressing room connects to the inner courtyard. The upper floor of the old house was completely refurbished and now contains a guestroom with small bath as well as a yoga room with access to the attic.

翻新后的 "Siedlungshaus "采用了鲜明的黑白对比,作为对20世纪50年代的参考。
地板上铺着大面积的黑色瓷砖,所有的墙壁都是白色的。旧的楼梯被保留下来,并通过一个弯曲的内置栏杆来丰富其内容。所有的窗户都有隐藏的框架和深深的窗台。鲜黄色的推拉门、红色的油毡,以及带有橙色环氧树脂盆和仿古石器瓷砖的客用厕所都是色点,与简单的白色内置家具形成了新鲜的对比。与老房子不同的是,新增加的房子是由温暖的自然色彩组成的;涂油的橡木地板将室内空间与院子和花园连接起来。
走向绿色
由于现有建筑处于1957年的原始状态,我们选择了对建筑围护结构及其服务进行彻底的改造,以使其具有能源效率和可持续性。
The renovated “Siedlungshaus” features a stark black-and-white-contrast as a reference to the 1950s.
The floors are covered with large-format black tiles, all walls are white. The old staircase remains and was enriched by a curved built-up railing. All windows have hidden frames and deep sills. A bright yellow sliding door, red linoleum, as well as the guest toilet with its orange epoxy basin and antique stone ware tiles are colour spots, that form a fresh contrast to the simple white built-in furniture. Unlike the old house the new addition is made up out of warm natural colours; the oiled oak parquet connects the interior spaces to the courtyard and the garden.
Going Green
As the existing building was in its original state of 1957, we opted for a gut renovation of the building envelope and its services, in order to make it energy efficient and sustainable.

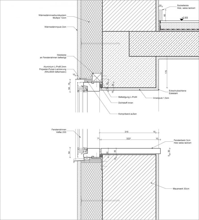
外墙用矿物纤维板制成的复合隔热系统覆盖,所有的开口都安装了新的高标准的木铝窗。旧的屋顶结构被保留下来,但椽子被加倍,以便为厚厚的隔热层获得更多空间。旧的雨棚被一个新的雨棚所取代,它是绝缘的,并且用铜包覆。地窖的天花板随后被装上了绝缘板。扩建部分有一个背风的外墙,有14厘米的矿棉隔热层和高度隔热的铝窗。
这些特点使该项目被列为低能耗房屋,其年采暖能耗要求为74千瓦时/平方米a。整个房子都配备了地板辐射采暖;一个地热泵提供能源。
The exterior walls were covered in a composite heat insulation system out of mineral fibreboards, and all openings were fitted with new high-standard wood-aluminium windows. The old roof structure was saved but the rafters were doubled-up in order to gain more space for a thick insulation layer. The old dormer was replaced by a new one; insulated and clad in copper. The ceiling of the cellar was subsequently outfitted with insulating boards. The extension has a back-ventilated facade with 14cm of mineral wool insulation and highly-insulating aluminium windows.
These features classify the project with annual heating energy requirements of 74 kWh/m2a as a low-energy house. The whole house is equipped with radiant floor heating; a geothermal heat pump supplies the energy.


此外,扩建部分有一个绿色屋顶;雨水被收集在一个蓄水池中并被重新使用。
豪斯+
Haus+在客户相反的建筑愿望之间进行谈判,通过对材料和地方感的轻松敏感而产生的独特而又陌生的形式,形成了新旧之间的有趣对比。
Furthermore the extension has a green roof; the rain water is collected in a cistern and is reused.
Haus +
Haus+ negotiates between the opposite architectural aspirations of the clients by forming an interesting contrast between Old and New with its unique, yet strangely familiar form generated by the light-hearted sensitivity to materiality and sense of place.

























Architects: Anne Menke, Project Architecture Company
Area : 1550 m²
Year : 2009
City:HAMELN
Country:Germany