我们被找去重建一个迷人的建筑。我们发现了一栋遭受重大破坏的房子,这是在共产主义政权下重建的前宅基地,成为一个粮仓。这座房子被洗劫一空,并被重新组织起来用于另一个目的。在第一次实地考察中,我们分析了它的接缝、壁龛和突出部分,发现了原来的形式。尽管之前的重建工作很不周到,但这所房子并没有失去它的宏伟性。相反,它的位置,它升入天空的方式,以及它的原始物质抵抗时间的方式,都被证明是最优质的。
We were approached to reconstruct a fascinating building. We found a house that suffered significant damage, a former homestead rebuilt under the communist regime into a granary. The house was looted and reorganised for another purpose. During the first site visit, we analysed its joints, niches, and protrusions, discovering the original forms. Despite its previous inconsiderate rebuilding, the house has not lost any of its grandeur. On the contrary, the way it is situated, the way it rises to the sky, and the way its raw matter resists time, have proven to be of the highest quality.





它是毁坏到骨子里的。原来的房子只剩下一个带屋顶的砖块围墙。我们和楼主一起问自己,这所房子是否有地方可以返回。任何传统修复的尝试都将意味着失去废墟的原始特征。因此,相对而言,我们很快就拒绝了对原始状态的投机性重建,以及任何其他的模仿行为。我们建议修复浪漫废墟的当前状态,并重新进入房子。房子与房子之间,房子与废墟之间。
It was ruin to the bone. All that was left of the original house was a brick envelope with a roof. Together with the building owners, we asked ourselves whether the house had a place to return to. Any attempt at a traditional repair would mean losing the original character of the ruin. Relatively soon, therefore, we rejected a speculative reconstruction of the original state, as well as any other imitations. We proposed to fix the current state of the romantic ruins and enter the house anew. House to house, house inside a ruin.

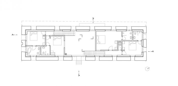
我们建议拆掉建筑的内部部分,恢复其原来的布局,用两层而不是三层,以及原来的规模。与此相关的是恢复原来的外墙划分。在没有感情的情况下,根据布局的需要,我们在需要的地方打开了其他大的开口。我们在现有的阶段性废墟上建造了一个新的、绝缘的房子,一个可以满足所有当前能源标准的房子。我们重新利用了结构良好的木梁作为天花板和桁架替换的元素。大部分材料都留在原地,只是重新排列。
We proposed to tear down the inner parts of the building and return its original layout with two floors instead of three, as well as the original scale. Related to this is a return to the original division of the facade. Without sentiment and depending on the needs of the layout, we opened other large openings where needed. We have built a new, insulated house into the existing staged ruin, a one that can meet all current energy standards. We reused the structurally sound wooden beams as elements of ceilings and truss replacements. Most of the material remained in place, just rearranged.

这座房子结合了低和高。我们插入了一个新的电流层,其目的与之前所有的不同。在新的和原来的结构之间保持了一个通风的间隙,而且这些结构并不接触。新的结构有时会从旧的结构中略微偏移。窗户与旧墙的开口并不完全吻合,在某些地方,旧墙也出现在室内。两个世界在视觉上是交织在一起的。新建筑通过旧墙的开口穿透,相反,旧墙则通过新的窗户进入。
The house combines low and high. We have inserted a new current layer, differing in its purpose from all the previous ones. A ventilated gap is maintained between the new and the original structure, and the structures do not touch. The new structure is sometimes slightly shifted from the old one. The windows do not fit precisely the openings in the old wall, and it some places, the old wall is also present in the interior. There is a visual intertwining of the two worlds. The new building penetrates through openings in the old wall, and on the contrary, the old wall enters through new windows.



这个项目是我们的宣言,说明如何处理老房子是可能的。它没有必要失去旧时代的真实性。它没有必要拆除,也没有必要教条地重建。同时,即使在这种情况下,也有可能使用现代材料进行经济建设,并达到所需的参数。正如房子从一开始就尊重它的历史一样,花园也被设计成景观的一个自然部分。没有物理边界。边界仅由零星的矮墙和一扇皮质门表示,花园与周围环境相连。果园、草地和山楂树只是从附近 "借 "来的。花园成为房子、其景色和周围景观之间的结合元素。
The project is our manifesto of how it is possible to treat old houses. It is not necessary to lose the authenticity of old age. It is not necessary to demolish, neither to reconstruct dogmatically. At the same time, even in such a case, it is possible to build economically using modern materials and achieve the required parameters. Just as the house has respected its history since its inception, the garden has been designed to become a natural part of the landscape. There are no physical boundaries. The boundary is indicated only by fragments of low walls and a corten gate, and the garden is connected to its surroundings. The orchards, meadow lawns, and hawthorns are only "borrowed" from the immediate vicinity. The garden becomes the binding element between the house, its views, and the surrounding landscape.

房子里的客人在一个宽敞的双层生活空间里见面,这里有一个瓷砖炉子和一个厨房。它还提供了现代生活的便利。宽敞的大厅里的楼梯将客人引向带有浴室的各个房间。在那里,他们可以享受空间的宁静,透过巨大的老墙,向外看开阔的风景;或者向这里的静谧投降。大厅里的圆桌与外面的一张巨大的橡木桌相通,在天气允许的情况下,你可以在那里活动,更接近周围的风景。
Guests of the house meet in a generous double-height living space with a tiled stove and a kitchen. It also offers the conveniences of modern living. Stairs in a generous hall lead guests to individual rooms with bathrooms. There, they can enjoy the tranquillity of the space and look out into the open landscape through the massive old walls that frame the views; or surrender to the silence that reigns here. The round table in the hall communicates with a massive oak table outside, where you can move when the weather allows and be even closer to the surrounding landscape.




















Architects: ORA
Area: 249 m²
Year: 2020
Photographs: BoysPlayNice
Manufacturers: Berker, Grohe, HELUZ, Hisbalit, Laufen, TON, Gelco, Marrakesh Cement Tiles
Design Team:Jan Hora, Barbora Hora, Jan Veisser, Tomáš Pospíšil
Clients:Sýpka Arnoštov, Sýpka Arnoštov
Landscape:Štěpánka Černá
City:Jevíčko
Country:Czech Republic