2000年代初,我的家人在法国南部的沃克吕兹省购买了土地。当时,坐落在附近森林中的一座小农舍已经风化了十多年。它站在山上,舒适地消失在风景中。尽管没有地基,但剩下的东西有一个强大的姿态。
My family bought land in South of France’s Vaucluse department in the early 2000s. At the time, a small farmhouse sitting in the forest nearby had been weathering away for more than a decade. It stood on its hill, fading comfortably into the landscape. What was left had a strong posture despite its lack of foundations.




当我的父母找我重建它时,我们正坐在这个破旧结构的视线范围内。它在废墟中仍然很柔软,提醒着我们它周围环境的质量。我们以前曾谈论过这个项目,但时机不对。那年夏天,以及随后的两年里,我努力让它重新焕发生机--为它注入使这个山谷如此特别的修道院品质。
When my parents approached me to rebuild it, we were sitting within eye-sight of the dilapidated structure. It was still soft in its ruinous state, a reminder of the qualities of its surroundings. We had spoken about the project before but the timing had not been right. That summer, and throughout the two years that followed, I worked to bring it back to life – infusing it with the monastic qualities that make this valley so special.



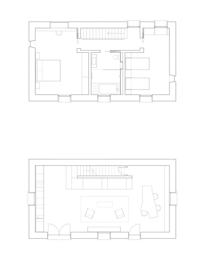
在尊重客户的审美限制和愿望的情况下,房子被设计成一个埋在山里的亲密的避难所--一个尊重场地和该地区建筑历史的地方。现有的结构被仔细地分阶段肢解。
Respectful of the aesthetic constraints and wishes of the clients the house was designed to be a intimate refuge buried in the hills – one that would respect the site and the architectural history of the region. The existing structure was carefully dismembered in phases.



占地面积和围护结构被修改,但与老农舍的比例保持一致。这座房子不仅仅是一个简单的重建,而是被想象成一种更新,强调房子的怪癖,并为精心的工艺提供声音。
The footprint and envelope were revised but stayed very much in keeping with the proportions of the old farmhouse. More than a simple reconstruction, this house was imagined as a renewal, emphasizing the house’s quirks and lending voice to careful craftsmanship.














Architects: Extra Medium
Area : 140 m²
Year : 2019
Photographs :Simone Bossi
Lead Architect : Timothee Mercier
Clients : Edouard Mercier, Eve Mercier
Collaborators : Patrick Coulomb
Interior Design : Insight School of Design
Project Management : Patrick Coulomb
Lighting Design : Vesign
Country : France