这座房子矗立在街道和单独建筑的边缘,因此是帕科夫镇上新旧的门槛。它的体量点燃了街道,延伸了街道,终止了街道。该建筑成为最后一个,如果不是这一排的第一个,也是明确无误的个性。
The house stands on the edge of the street and solitary buildings, therefore the threshold of old and new in the town of Pacov. Its mass nods the street extends the street and terminates it. The building becomes the last, if not the first in the row, of unmistakable individuality.



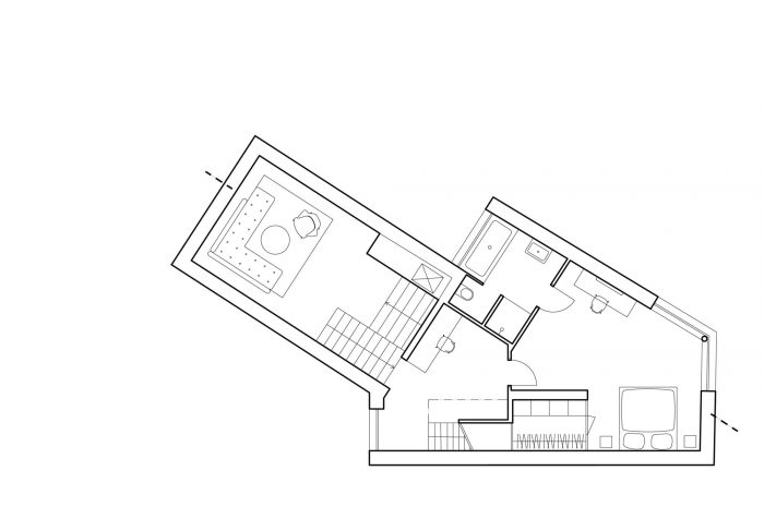
它不寻常的形状是基于地块的不规则布局,以及对万有引力点的定位,特别是基于地块的有限大小与广泛的建筑计划形成对比。这座房子可以直接从街上进入。主要的生活区--一楼的餐厅和厨房,以及可通过六个楼梯进入的高架客厅--通过大的法式窗户通向花园。
Its unusual shape is based on the irregular layout of the plot, and orientation to the cardinal points, and particularly it is based on the limited size of the plot contrasting with the extensive building program. The house is accessed directly from the street. The main living area - dining room with kitchen on the ground floor and elevated living room accessible by six stairs – is opened into the garden through the large French windows.

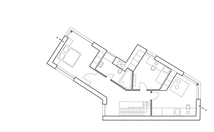
窗户被一堵围墙遮挡住了。二楼和三楼是卧室和儿童房。在客厅下面,大约有半层楼的技术设施,包括一个储藏室和一个地窖。这些空间既可以从外面进入,也可以通过一个单臂楼梯直接从厨房单元进入。
Windows are hidden from the street by a fence wall. The second and the third floors are occupied by bedrooms and children's rooms. Under the living room, there is about a half floor down the floor with technical facilities, including a pantry and a cellar. These spaces can be accessed either from the outside or directly from the kitchen unit by a one-armed staircase.

位于房产对面最边上的车库可以停放三辆车。尽管如此,没有什么会影响到花园的发展。在倾斜的花园中移动的草顶创造了一个朝向房子的独特组织--一个人工土丘。这个土丘成为外部的中心元素,是邻近房屋的远处屋顶的绿色基地;是孩子们喜欢玩耍的地方。
The garage located on the very edge of the opposite side of the property allows parking for up to three vehicles. Still, nothing detracts from the garden. The grass roof moving in the sloping garden creates a unique organization towards the house - an artificial mound. This mound becomes a central element of the exterior, the green base for distant roofs of neighboring houses; a place where children like to play.

"工作场所的生活。维尔卡和大卫到处奔跑。他们在享受自然的混乱,直到有可能。因为这时建筑师控制了局面。他在未来花园的尽头为两辆汽车设计了一个庇护所,在一半的土地上他延伸出一条车道。在其余的地方,他创造了一个人工视觉景观,并将花园隐藏在墙壁后面。一年后。花园活了起来。Verča和David在土堆上奔跑,土堆是由15辆Tatra汽车堆积起来的。他们在玩雪橇。他们不知道他们下面停着三辆车。车库钻进了山丘,山丘在财产线上被切割,所以山丘还没有达到顶峰。敬爱的父母正在山谷中休息,桌上放着一瓶威士忌,正在回忆那段艰难的日子。当年在孩子们和所有访客的帮助下,人工分层的土壤越来越高。所以现在他们可以走出受保护的隐居地,到山上去看看世界上发生了什么。"(花园的作者Zdeněk Marek)。
"The worksite lives. Verča and David are running around. They are enjoying the natural chaos until it is possible. Because then the architect takes control. He projects a shelter for two cars at the end of the future garden and over half of the land he stretches a driveway. On the rest, he creates an artificial visual landscape and hides the garden behind the walls. One year later: The garden is living. Verča and David are running on the mound, which was piled up by 15 Tatra vehicles. They are sledding. They do not have a clue that there are three cars parked below them. The garage is drilled into the hill, which is cut in the property line so the hill has not reached its peak. Beloved parents are resting down in the valley with a bottle of whiskey on the table and are remembering the hard times. When with the help of children and all their visitors manually stratified soil higher and higher. So now they can get out of the protected seclusion onto the hill and see what is happening in the world. "(Author of the garden Zdeněk Marek)













Architects: Atelier 111 Architekti
Area : 101 m²
Year : 2013
City:PACOV
Country:CZECH REPUBLIC