Casa Chouso位于Casal de S. Brás,一个简陋的村庄,是Ansião的一部分,在一块土地上,可以看到村庄和Sicó山丘(Serras da Sicó)的极好景色。
Casa Chouso is located in Casal de S. Brás, a humble village that is part of Ansião, on a piece of land with a superb view over both the village and the hills of Sicó (Serras da Sicó).




在第一次访问该地时,通过初步分析确定了总体思路。这片土地呈现出良好的自然环境,到处都是树木和岩石的簇拥。此外,我们还得到了可以追溯到古老民间传统的历史片段。也就是说,由于这块土地主要用于动物牧场,我们发现了一个打谷场,它不仅用于打谷,也是人们社交的地方。正是从这个第一印象中,我们想到了这个项目的概念:Casa Chouso。
The general idea was defined from the primary analysis when first visiting the site. The land presented great natural surroundings, overflowing with clusters of trees and rocks. Furthermore, we were also bestowed with fragments of history that go back to old folk traditions. Namely, as the land was primarily used for animal pastures, we found a threshing floor that was used not only for threshing but also where people socialized. It is from this first impression that the concept for this project comes to us, Casa Chouso.


"CHOUSO "的意思是一个围栏或封闭的区域;牧羊人种植的篱笆,以容纳牛群。利用土地的特殊性,Casa Chouso的建造是为了与周围的环境相协调,并从笼罩的自然中浮现出来,同时也是对我们的客户所设想的住宅的理想答案。因此,有必要提出一个项目,它不仅能提供远离附近道路的隐私,而且还能让我们充分享受周围的风景。
“CHOUSO” means a fenced or closed area; a hedge grown by shepherds to hold the cattle. Taking advantage of the particularities of the land, Casa Chouso was built to be in tune with its surroundings and emerge from the enveloping nature, as well as coming together as the ideal answer to what our customers had pictured for a home. Thus, it was essential to come up with a project that would not only provide privacy from the nearby road but also spaces that would allow us to fully enjoy the enveloping landscapes.



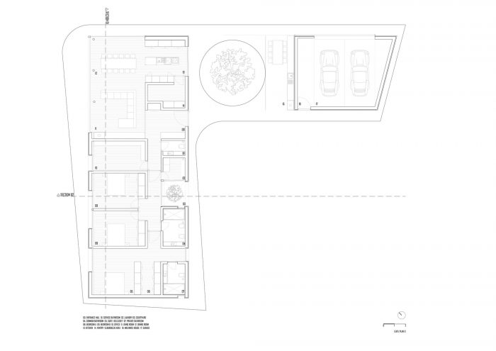
因此,该项目在概念上从一个L型发展而来,社会和技术区域被一个天井所限定。这个过渡区与现有的环境相协调,与土地上的打谷场相呼应。
Therefore, the project conceptually develops from an L-shape, where the social and technical areas are delimited by a patio. This transitional area tunes into the pre-existing surroundings, in analogy to the threshing floor that you can find on the land.


从这个空间开始的平面布局被设定为两个程序性的 "翼",在东边,我们发现技术区域--烧烤和车库,在西边是社会和私人区域--书房、卧室、客厅和用餐区、厨房和储藏室。
The plan layout which starts from this space is set into two programmatic “wings”, to the East, we find the technical areas – barbecue and garage – and to the West the social and private areas – study, bedrooms, living, and dining area, kitchen, and pantry.


室内装饰是基于真正的材料,主要是石头和木材,使空间具有现代和舒适的特点。此外,所有用于装修的元素都是由我们的建筑工作室设计的。
The interior décor is based on genuine materials, mainly stone, and wood, that give the spaces a modern and cozy character. In addition, all the elements used in the finishings were designed by our architectural studio.

















Architects: Bruno Dias Arquitectura
Area : 420 m²
Year : 2022
Photographs :Hugo Santos Silva
Manufacturers : Paumarc, Portave, Systalprof
Project Team : Bruno Lucas Dias, Tânia Matias, Cristiana Henriques
Construction : Pireslar – Construções, lda; Carlos Miguel Constructora
MEP : Canalizações Alvorgense
Coating : Carlos Silva e Miguel Ferreira
Metalworking : Ofimetal
City : Ansião
Country : Portugal