可见或不可见--这是位于爱知县三好市住宅区一角的一对夫妇和他们孩子的房子。房子前面的道路被社区的人们用作邻居们日常聊天的空间和孩子们的游乐场。相邻的地块是邻近公寓楼的停车空间。考虑到房子周围的环境,人们可以不断地感觉到有人存在或被监视,我们通常把自己关在房子里。相反,我们试图创造一个具有钩状开放空间的房子,横向和纵向交叉,形成可见和不可见的表面,在这里我们可以与周围环境保持足够的距离和联系。
Visible or not visible - This is a house for a couple and their children on a corner of a residential zone in Miyoshi City, Aichi. The front road of the house is used by the people of the community as a space where neighbors enjoy their daily chat and children’s playground. The adjacent plot is a parking space for the neighboring apartment building. Considering the environment surrounding the house where one could constantly feel the presence of someone or being watched, we usually close ourselves inside the house. Instead, we tried to create a house with a hook-shaped open space that crosses laterally and vertically to form visible and invisible surfaces, where we could keep an adequate distance and connection with the surroundings.



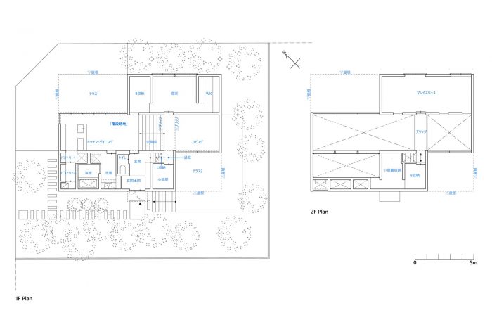
阶梯式小巷和过街天桥--与周围的房屋相比,拐角处的场地大约是其两倍大小,我们决定避免给人以压迫感,避免与邻居的目光相遇。因此,我们将1楼的半层嵌入地下,在一个屋顶下安排两个建筑体和一个开放空间,其高度为地面以上1.5层。
Stepped Alley and Crossing Bridge - The corner site is around twice the size of that compared to the surrounding houses, and we decided to avoid giving an oppressive feel and meeting the eye of our neighbors. Consequently, we embedded a half-story of the 1st floor underground, arranging two building masses and an open space under a single roof, of which the height is 1.5 stories above ground.

开放空间:与前路同层的餐厅厨房空间,大楼梯下的两层中庭生活空间,餐厅空间北侧和生活空间南侧的屋顶露台空间,成为一个钩状(Z形)小巷空间,小巷的一半是室内空间,另一半是室外空间。我们将两个建筑体块斜向排列,西南面的体块是1楼的卫生空间,东北面的体块是主卧室和2楼的游戏室(未来的儿童房),并在两个体块之间建了一座桥,可以进入游戏室。同时,这座桥跨越了开放的小巷。
The open spaces: dining kitchen space on the same level as the front road, a two-story atrium living space below the grand stairs, roofed terrace spaces on the north side of the dining space and on the south side of the living space, become a hook-shaped (Z-shaped) alley space which half of the alley is interior while the other half is outside space. We arranged two building masses diagonally, a southwestern block of sanitary spaces on the 1st floor and a northeastern block of the master bedroom and 2nd-floor playroom (future children’s room), and built a bridge between the two masses that accesses the playroom. At the same time, the bridge crosses over the open alley.


我们认为,厨房和生活空间之间的舒适距离,在桥上的通行,在大楼梯上的放松,以及来自两个露台的自然光和风,通过横向和纵向的分层和钩状循环的交叉,可以将开放空间从过去只是两个体块之间的剩余空间变成一个活跃的 "阶梯小巷"。中央的 "阶梯式小巷 "获得了模糊的可见性和与深度的联系,成为从城市中看不见的 "后街",同时成为房屋内两个建筑体块之间的 “主街"。我们期望它能成为一个中间区域,根据人的站立点显示出双边特征。
We came to think that the comfortable distance between the kitchen and living spaces, passings on the bridge, relaxing on the grand stairs, and natural light and wind coming from the two terraces created by the lateral and vertical layering and crossings of the hook-shaped circulation can change the open space to an active “stepped alley” from what used to be just a leftover space between the two masses. The central “stepped alley” that acquired vague visibility and connection to its depth became an invisible “back street” from the city while becoming a “main street” between the two building masses inside the house. We expected that it would become an intermediate area that shows a bilateral character according to one’s standing point.

















Architects: ihrmk
Area: 104 m²
Year: 2019
Photographs:Takahashi Nao
Manufacturers: IOC, Porcelaingres GmbH
Lead Architects: IHARA Masaki, IHARA Kayo
Contractors: Kikuhara
Structural Engineering: KOMATSU Hirotoshi
City: Miyoshi
Country: Japan