这个项目是安德鲁-特罗特工作室首次摆脱普利亚地区典型的白色拱顶建筑。因此,工作室没有走远寻找灵感:我们把目光投向了海岸边的别墅,它们有宏伟的柱廊,墙壁用当地工匠制作的石灰水涂成泥土色,就像他们在过去几个世纪里做的那样。
This project was the first escape for Studio Andrew Trotter from the white vaulted buildings, so typical of Puglia. Thus said, the Studio didn’t go far for inspiration: we looked to the villas of the coast, with their grand colonnades, and the walls that were painted with an earthy tone using lime wash made by a local artisan, as they would have done in the past centuries.




房子被安置在南部边界,以利用高处的优势,并尽可能地获得最佳的海景,这与大海只有一箭之遥。东西向的位置,可以看到北面和南面的景色,这意味着房子在冬天和夏天一样完美。作为一个家庭的房子,并将被出租,夏季的户外生活和与周围自然的联系是客户的愿望清单上的重点。大阳台上覆盖着厚厚的藤条,让人想起马拉喀什的露天市场,为仲夏的阳光提供了充足的阴凉,是放松、吃午饭或午睡的完美场所。当你进入房子的时候,你会感觉到它就像一栋别墅,高高地矗立在有墙的梯田上,在山上傲然挺立。一个建筑声明,其核心是简约。
The house was placed at the southern border to take advantage of the elevated level and to achieve the best views possible of the sea, which is only a stone’s throw away. Positioned east-west, with views to the north and to the south, meaning the house is perfect for winter as much as in the summer. Being a house for the family, and to be rented, the outdoor summer living and the connection to the surrounding nature were high on the wish list of the client. The large veranda, covered in thick cane, reminiscent of the souks in Marrakech, gives ample shade for the midsummer sun, the perfect place to relax, eat lunch or take an afternoon siesta. As you enter the house, it feels like a villa set high above its walled terraces, proud on a hill. An architectural statement, with simplicity at its core.



在屋内,大面积的开放空间被窗户包围,以捕捉美景,并让冬季的阳光进入并温暖房子,所以只需要最小的空调。温暖的泥土色调在室内延续,内置家具和当地发现的古董混合在一起,装饰了整个空间。一种轻盈和平静的空气弥漫着。
While inside, the large open spaces are surrounded by windows to capture the views and allow the winter sun to enter and warm up the house, so minimal air-conditioning is needed. The warm earthy tone continues inside, and a mix of built in furniture and locally found antiques decorate the spaces. An air of lightness and calmness prevails.


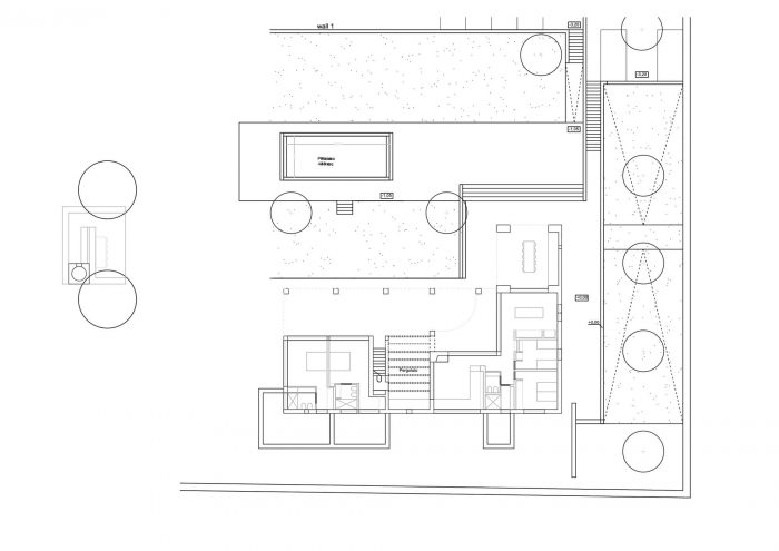
区域和材料描述。厨房被设计成有几个壁龛作为储藏室,还有一个大岛,为它设计了一个由当地工匠制作的定制水磨石面板。浴室配备了由工作室设计的定制和当地制造的水槽。为了覆盖潮湿的地方,使用了cocciopesto。
Areas and material description. The kitchen was designed with several niches to be used as storage, and a large island, for which it was designed a bespoke terrazzo top created by a local artisan. The bathrooms were equipped with bespoke and locally made sinks designed by the Studio. To cover the wet areas, cocciopesto was used.



在材料方面,房子是用当地的砂岩Tufo建造的。一块美丽的石灰石带有不同色调的绿色和黄色被铺设在整个房子的内部,而完全天然的粉红色石灰水被用来涂抹室内和室外的墙壁。
In terms of materials, the house was built out of Tufo, the local sandstone. A beautiful limestone with different shades of green and yellow was laid throughout the whole interior of the house, and a completely natural powdery pink lime wash was used to paint both the interior and exterior walls.


室内的家具和造型采用了来自当地市场、Le Icone、La Mercanteria和Nicola Fasano等商店,以及Frama、DCW éditions、Lumina和Bongio等品牌的复古桌椅、陶瓷和灯具。
The interiors have been furnished and styled with vintage tables, chairs, ceramics, and lamps from local markets, shops like Le Icone, La Mercanteria, and Nicola Fasano, and brands like Frama, DCW éditions, Lumina, and Bongio.









Architects: Studio Andrew Trotter
Year : 2022
Photographs :Salva López
Manufacturers : DCW EDITIONS, Frama
Country : Italy