传统的三代同堂的生活形式已经演变为满足不断变化的家庭结构。一代人或两代人共同生活的形式在今天已经很普遍。现代生活现在优先考虑的是独立。即使是长辈现在也渴望有自己的个人生活空间,而年轻成员则住在附近照顾他们。因此,现代住房正在被重新设计,以满足现代生活方式的这些需求。公共区域在一楼,而二楼是卧室,三楼包括天井和祖先的神龛。联排别墅的长条形布局给建筑中心引入光线带来了不可避免的挑战。业主们还希望有一块土地,这样他们就可以陪着他们的孩子去接触土壤,种植蔬菜,享受四季的变化。哪里有绿色的土地,哪里就有光。
The traditional co-living form of three generations under one roof has evolved to meet changing family structures. The co-living form of one generation or two generations has become common nowadays. Modern living now prioritizes independence. Even the elders now desire their own personal living spaces, while younger members live nearby to care for them. As a result, modern housing is being reimagined to meet these needs of the modern living style. The common area is on the first floor, while the second floor contains the bedrooms, and the third floor includes a patio and ancestor shrine. The long layout of townhouses created an unavoidable challenge in introducing light to the center of the building. The owners also desired a piece of land so that they could accompany their children to get touch the soil, grow vegetables, and enjoy the changing seasons. Where there is a land of green, there is light.




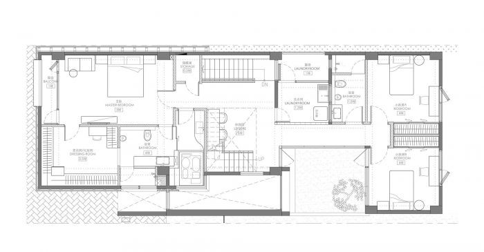
考虑到这一点,我设计了以绿地为中心的布局,在这个狭长的空间里,周围是家庭生活区。这个设计概念类似于三合院中的 "院子"(tiânn)。在早期,"院子 "是晾晒谷物、花束和家庭交流的地方。与过去的开放性相比,这里类似tiânn的土地更加隐蔽,作为一个现代的三合院。大厅、客厅、厨房、餐厅到榻榻米,与传统住宅的主楼和左右两边的 "护龙"(hùlóng,三合院的两翼)相对应,将 "田园 "围起来,专供家人居住。通过不同的窗户风格和退台式的布局,光线被引入房间,自然也就触手可及。
With this in mind, I designed the layout centered on the green land with family living areas around in this narrow and long space. The design concept is akin to the “tiânn” (yard) in Sanheyuan. Tiânn is the place for grain drying, bouquet, and family communication in the early times. Compared to the openness in the past, the tiânn-like land here is more hidden, serving as a modern Sanheyuan. The lobby, living room, kitchen, dining room to tatami room correspond to the main building and “protecting dragons” (hùlóng, the wings of Sanheyuan) on the left and right of the traditional residence, enclosing the “tiânn” exclusively to the family. With various window styles and the retreating layout, the light is led into the rooms and nature is within reach.


在入口处,通过部分抬高的落地窗可以看到tiânn中的一棵树,为回家提供一种仪式感。侧面的气密门是进入绿色土地的入口。楼下,角落里的开放式厨房有一个完整的固定窗口,没有多余的窗框线条。人们可以从窗口看到全景,仿佛在看一幅随时间变化的画。榻榻米房间/客房有一个较低的窗户,让自然光从tiânn过滤进来,创造一个宁静和悠闲的氛围。后院的花园里,木板上的植物让阳光和绿色随处可见。沿着楼梯上到二楼的私人空间,内院从水平面到垂直立面都扩展到整个建筑。从三个不同层面的窗户都可以欣赏到蒂安式庭院中的树木,甚至从主浴室的窗台也可以看到它的青翠枝叶,给人以浪漫的气氛。
At the entrance, a tree in the tiânn can be seen through a partially elevated floor-to-ceiling window, providing a sense of ritual for coming home. The air-tight door on the side is the entrance into the green land. Downstairs, the open kitchen on the corner features a whole fixed window without extra lines of window frames. One can have a panoramic view from the window as if he or she is watching a painting changing with time. The tatami room/guest room has a lower window, allowing natural light from tiânn to filter in, creating a serene and laid-back atmosphere. The backyard garden with plants on the board allows sunshine and greenery everywhere. Ascending the stairs to the private space on the second floor, the inner courtyard expands throughout the entire building, from the horizontal surface to the vertical elevation. The tree in the tiânn-like courtyard can be admired from windows on three different levels, and its verdant foliage is visible even from the master bathroom’s bay window, lending a romantic atmosphere.


楼梯之间的空隙有一个设计目的,允许院子的自然美景连接主卧室和两个儿童房。该空隙也向三楼的顶楼开放,为祖先的神龛提供了一个角落空间,或为未来的使用提供了一个缓冲空间。天井邀请自然光涌入二楼,照亮了这个区域。在最终确定内部布局后,我将注意力从建筑内部转移到建筑外部。为了创造一种清晰的预期感,我设计了前院,将建筑主体缩回,并撤去一条相对隐蔽的走廊,暗示门后的美丽世界。业主对灰色和金属元素的偏爱成为我的灵感来源,从而在房子的外墙上形成了整齐的现代主义线条和个性化的想象形状。除了硬朗的外墙,还加入了一条柔和的曲线,巧妙地传达了三合院的斜屋顶形象。
The open space between the staircases serves a design purpose, allowing the natural beauty of the courtyard to connect the master bedroom and two children's rooms. The void is also open to the penthouse on the third floor, providing a corner space for an ancestor shrine or a buffer space for future use. The patio invites natural light to pour into the second floor, illuminating the area. After finalizing the interior layout, I shifted my focus from the inside to the outside of the building. To create a sense of clear anticipation, I designed the front yard by retracting the body of the building and withdrawing a relatively hidden corridor, suggesting a beautiful world behind the door. The owner’s preference for the color gray and metallic elements served as my inspiration, resulting in neat modernist lines and personalized imaginative shapes on the facade of the house. In addition to the hard facade, a soft curve was added to subtly convey the image of the oblique roof from Sanheyuan.


立面的纹理由原始混凝土效果的石膏和阳极氧化金属波纹板组成。原始混凝土的粗糙,其特点是通过在混凝土表面烧制木纹而形成的仿木纹,与缥缈的银色波纹板的优雅形成了视觉上的强烈对比。楼梯上铺设了生锈的铁质图案瓷砖,这与波纹板上的金属图案的表达方式不同。虽然这些材料本身看起来很普通,但它们被以一种新鲜和创新的方式呈现出来,使它们具有独特和与众不同的外观。房屋的墙壁上涂有污浊的混凝土石膏,地面上铺设了水磨石。
The façade’s texture is comprised of raw concrete-effect plaster and anodized metal corrugated sheets. The roughness of the raw concrete, which features faux wood grain created by searing the wood grain onto the concrete surface, and the elegance of the misty silver corrugated sheets create a visually striking contrast. The stairs are paved with rusted iron pattern tiles, which differ from the expression of the metal pattern on the corrugated sheets. Although the materials themselves seem common, they are presented in a fresh and innovative way, giving them a unique and distinctive appearance. The walls of the house are coated with smudged concrete plaster, and the ground is paved with terrazzo.


在局部装饰方面,颜色鲜艳的窑变瓷砖和带有仿旧木纹的瓷砖为灰色空间增添了生动的色彩搭配。此外,该空间通过降低地板的不同高度差异来区分和交替使用。家具和照明以业主喜欢的金属表现形式为中心,并配以木材和皮革的暖色调,以协调冷暖色调的关系。大厅和起居室之间的隔断是一个由金属工匠定制的复合家具。通过将普通电视墙改造成家具,这个多功能的隔断可以存放电视、视听设备、鞋子和钥匙。回收的柚木餐桌和斑驳的木纹砖与不锈钢厨具和铝制吊灯的银色科技点缀相得益彰,在冷暖色调之间创造了一种平衡。露营用品融合在榻榻米房间里,增加了一种悠闲的感觉。
For partial decoration, kiln-glazed variant tiles in bright colors and tiles with faux old wood grain add a vivid color scheme to the gray space. Additionally, the space is distinguished and alternated by the varying height differences of the lowered floor. The furniture and lighting is centered on metal expressions, which the owners prefer, and are accompanied by the warm tones of wood and leather to harmonize the cold and warm tones. The partition between the lobby and living room is a custom-made piece of compound furniture created by a metalsmith. By transforming the common TV wall into furniture, the multi-functional partition can store a television, visual and audio equipment, shoes, and keys. The recycled teak dining table and mottled wood grain tiles complement the silver touches of technology from the stainless kitchen wares and aluminum pendant light, creating a balance between warm and cool tones. Camping items are blended into the tatami room, adding a leisurely touch.



















Architects: HAO Design
Area : 250 m²
Year : 2021
Photographs :Hey!Cheese
Manufacturers : Ligne Roset, Original BTC, Panum Rover, Sigurd Ressell, d-Bodhi
Designer : Ivan Chen
Video : Min Chen
Interior Styling : HAO's Life
Country:China