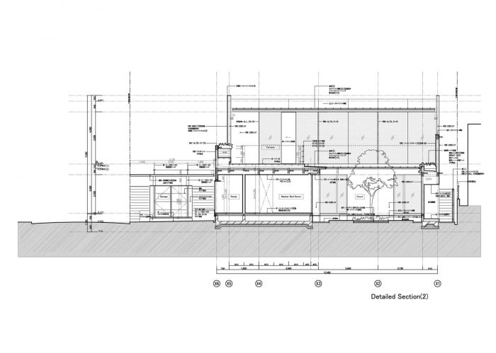
这是一个丈夫+妻子+孩子的小家庭的房子,位于奈良的郊区。前面有一个面向道路的停车位,延伸到前门的整个宽度,以容纳所有日常使用的汽车和主人爱好的摩托车。这就是为什么立面向后退,以便为停车场提供空间。建筑本身是一个封闭的形象,除了一楼的爱好区,它是一个宽阔的开放空间,玻璃开口面向摩托车收藏。
This is a house for a small family of husband+wife+child, located on the outskirts of Nara. A parking space facing the road in front, extends the full width of the front opening, as to accommodate all the cars for daily use and the motorbikes for the owner’s hobby. This is why the façade is set back to give space to the parking area. The building itself projects a closed image, except for the hobby area on the first floor, which is a wide open space with glass openings facing the collection of motorbikes.



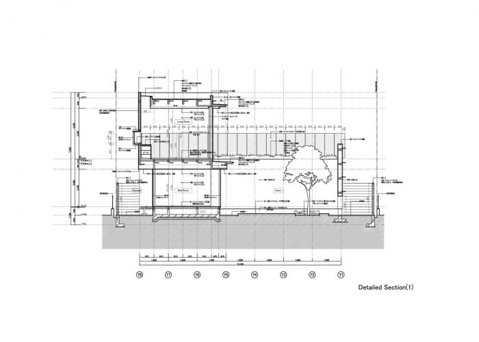
一楼呈L型,西北角有一个院子,是一个高度私密的家庭空间。 东边是主卧室,南边是孩子的房间和一个日式房间:它们都面向西北方向的庭院。但为了避免每个房间朝向院子的景色相互重叠,通往院子的开口被保持得相对较小,以保证独立的院子景色。
The first floor is in L-shape with a courtyard at the northwest corner and is a highly private space for the family. To the east is the master bedroom, and to the south are the child’s room and a Japanese-style room: they all face the courtyard in the northwest. But to avoid the views towards the courtyard from each room, overlapping with each other, the openings to the courtyard have been kept relatively small to secure an independent courtyard view.


与这种布局相反,二楼的居住空间位于南部,有一个大的开口,面向北部的风景。天花板高度为3.2米,这个高度被南面墙壁顶部的天窗所强调。另外,这个起居/用餐区可以俯瞰下面主卧室顶部的木质甲板,稳定的光线从北面的风景中射入。这样一来,起居/用餐空间给人的感觉几乎是生活在一个户外空间。北边的景色是水平延伸的,而南边的天窗的阳光则是垂直倾泻进来的。
In contrast to this layout, the living space on the second floor is located to the south, with a big opening facing the scenery in the north. The ceiling height is 3.2 meters and this height is emphasized by the skylight at the top of the southern wall. Also, this living/dining area overlooks the wooden deck on top of the master bedroom below, with the stable light coming in from the view on the north. This way, the living/dining space gives the feeling of almost living in an outdoor space. The view to the north extends horizontally, whereas the sunlight from the skylight on the southside pours in vertically.



从历史上看,禅宗寺院的生活区在北部有一个绿色的花园,在那里可以全天享受从东到西的阳光运动。南面是一个光影的花园,由石头等抽象材料制成。此外,阳光从南部地面到天花板的反射和扩散,创造了一个室内出现温和亮度的空间。
Historically, the living quarters of a Zen temple have a green garden in the north where the movement of sunlight from east to west can be enjoyed throughout the day. To the south is a garden of light and shadow, made of abstract materials such as stones. In addition, the reflections and diffusions of sunlight from the southern ground to the ceiling, create a space where gentle brightness appears in the interior.


我试图将这种日本历史背景下的空间概念,解释给今天的城市住宅。
I attempted to interpret this space concept of historical Japanese context, to the urban residence of today.
















Architects: Waro Kishi + K.ASSOCIATES/Architects
Area: 154 m²
Year: 2021
Photographs:Shigeo Ogawa
Structural Design: mnd-Yoshiki Mondo
Lighting Design: Ushio Lighting-Sachihiko Harada
Design Team: Waro KISHI, Shumpei TAHARA
City: Nara
Country: Japan