CASA DO PESSOAL位于里斯本的Alto de São João公墓,几十年来一直是火葬场工人的更衣室和维护公墓小部件的车间。现有的建筑处于可怕的保护状态,而且这些空间没有为其用户提供最好的条件。对我们来说,了解如何设计一栋建筑来服务于每天与死亡打交道的活生生的人的日常生活是很有趣的。受这两个空间的气氛启发,并俯瞰塔古斯河,这个新的空间为墓地工人的辛勤工作的日常生活和死亡环境提供了一个逃避的机会。它是一座在死亡中的生命建筑。
Located in Alto de São João cemetery in Lisbon, CASA DO PESSOAL has housed for several decades the crematorium workers’ changing rooms and a workshop for maintaining small elements of the cemetery. The existing building was in a terrible state of conservation and the spaces did not have the best conditions for their users. It was interesting for us to understand how to design a building to serve the daily life of living human beings that work and deal every day with death. Inspired by both spaces’ atmosphere and overlooking the river Tagus, this new space provides an escape for the cemetery workers' hard work daily life and death environment. It is a building for life within death.




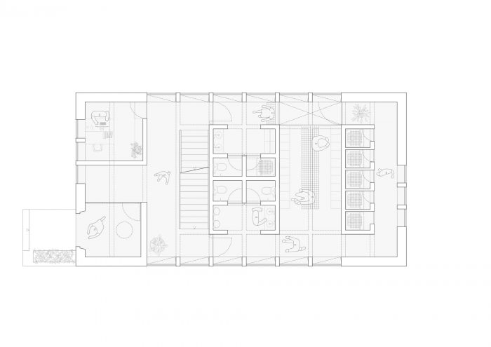
现有建筑清晰的结构节奏,即以外墙窗户为标志的规则尺度,被保持和加强,并定义了内部空间的分布。在这个意义上,现有的外墙和结构尺度被保持,而内部和屋顶被改变。服务区和建筑的入口位于建筑两个顶部的主立面旁边,其余的内部空间正是在其中心位置组织的。原本位于底层的更衣室和工作人员服务区,由于卫生条件差,被移到了一楼,从最高的街道层进入,车间和仓库被移到了底层,从最低的街道层进入。在屋顶层增加了第三层,以容纳员工服务区,有一个小厨房和一个公共空间,该空间延伸到外部,贯穿一个露台,从那里可以看到塔古斯河。更衣室被设计和组织在一个远离现有侧墙的中央矩形 "盒子 "中,以允许周围的流通。这个盒子被移植到三楼的新体量的配置中。
The clear structural rhythm of the existing building, a regular metric marked by the windows in the exterior facades, was maintained and reinforced and defines the distribution of the interior spaces. In this sense, the existing facades and structural metrics are maintained and the interiors and roof are altered. Service areas and the entrances to the building are located next to the main facades on both tops of the building, and it is in its center that the remaining interior spaces are organized. The changing rooms and the staff service area, formerly located on the ground floor, with poor health conditions, were moved to the first floor, with access from the highest street level, and the workshop and warehouse were relocated to the ground floor with access from the lowest street level. A third floor was added at the roof level to house the staff service area with a small kitchen and a common space that extends to the exterior throughout a terrace from where it is possible to see the river Tagus. The changing rooms are designed and organized in a central rectangular "box" away from the existing side facades in order to allow circulation around it. This box is transposed to the configuration of the new volume on the third floor.



新的干预措施在内部和外部都覆盖着白色的瓷砖,以便将其与现有的建筑遗迹区分开来。室内门窗的半透明玻璃再现了浴室空间的蒸汽氛围。其余窗户的透明玻璃允许与外部的视觉接触,以及自然光进入建筑内部。为了标记楼层之间的垂直连接,一个天窗位于两个更衣室之间,横跨整个建筑。这个天窗的蓝色玻璃与公墓中大多数坟墓的彩色玻璃窗相似。
The new intervention both inside and outside is covered with white tiles in order to distinguish it from the existing remains of the building. The translucent glass in the interior doors and windows recreates the steam atmosphere of bath spaces. The transparent glass of the remaining windows allows visual contact with the exterior as well as natural light to enter the interior of the building. In order to mark the vertical connection between floors, a skylight is located between both changing rooms, crossing the entire building. The blue glass of this skylight resembles the stained glass windows in most of the tombs in the cemetery.














Architects: COM/O atelier
Year : 2022
Photographs :Daniel Malhão
Architects : Joana Duarte, Miguel Duarte
City : Lisboa
Country : Portugal