位于阿尔坎塔拉区的一条狭窄的街道上,现有的建筑不具备任何特殊的质量。除了一个严谨和平衡的立面--为周围的城市结构带来特色--其内部所有的东西都即将倒塌。在一个7米宽22米长的地块上建造了当地法律允许的最大体积。
Located on a narrow street of Alcântara district, the existing building didn’t possess any particular quality. Apart from a rigorous and well balanced façade – which brings character to the surrounding urban fabric- all of its interior was in imminent collapse. The maximum volume allowed by local legislation was built within a plot of 7 meters wide by 22 meters long.



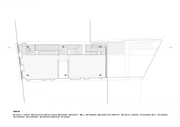
空间是需要的。为了达到最大的高度,主立面被保留下来,如果它被拆除,新的建筑必须更小,这将影响到每一个内部楼层的可用性。我们建造了一个地下室,并将建筑深度扩展到允许的最大值。- 15米加上7米的天井。在屋顶上,没有采用斜面屋顶,而是建造了一个露台。这样一来,在顶部就可以看到天空,以及周围的景色。在内部,空间被纵向划分为两个独立的区域。第一个区域是技术设施、管道、流通、厨房和厕所。第二个区域只是自由空间。
Space was desired. In order to achieve maximum height, the main façade was maintained, Should it had been demolished, the new building had to be smaller which would have affected the available in every interior floor. A storage basement was built and the building depth was extended to maximum allowed. – 15 meters plus 7 meters for the patio. On the roof, instead of a pitched roof, a terrace was built. This way the sky was gained at the top as well as views towards the surrounding. Inside, space is longitudinally divided into two separate areas. The first area houses technical facilities, ducts, circulation, kitchen and toilets. The second area is just free space.



建筑物—有两个相互连接的房子--向外面的天井和露台开放。在上面的房子里,一个大的天窗将日光带入社会区域和卧室。饰面是粗糙的,以强调房子的非正式特征。社交区的储藏室没有门。在阳台上,有一个水箱和一个沐浴区。在夏天,人们赤脚走动,几乎一丝不挂。
The building – with two interconnected houses – opens to the outside towards the patios and terrace. On the upper house a large skylight brings daylight into the soc ial areas and bedrooms. Finishes are crude in order to stress the desired informal character of the house. Storage on the social area have no doors. On the terrace, there’s a water tank and a bathing area. In the summer, people walk around barefooted, almost naked.


















Architects: José Adrião Arquitectos
Year : 2013
Photographs :Fernando Guerra | FG+SG
Stability : Ara – Alves Rodrigues e Associados; Fernando Rodrigues
Services : Acribia; José Andrade, Paulo Rodrigues
Weathering Consultant : WEE – Wide Endogeneous Energy Solutions; Maria João Rodrigues, João Parente
Technical Conditions Consultant : Excepto. Lda; Hélder Neves
Contractor : X-Log
Architecture Phase 01 : Tiago Mota (Project Manager), Carla Gonçalves, Luís Valente, Rui Didier, Tatiana Mourisca
Architecture Phase 02 : Ricardo Aboim Inglez (Project Manager), Margarida Lameiro, Rute Ribeiro, Tiago Mota
City : Lisboa
Country : Portugal