这座房子位于马坦萨斯北部地区的几块公寓旁边的海的前线。这块土地的一部分是由一个小斜坡形成的,通往一个65米的悬崖,终点是海滩。对于房屋的总体设计,在决策过程中考虑了三个主要因素:保护外部区域不受该地区强劲的西南风的影响,保持与南北两侧邻居的隐私,以及充分利用海景的优势。
The house is located at the front line next to the sea of a few lots of condominiums, in the north zone of Matanzas. The land that is part of this lot, is formed by a slight slope that leads to a 65-meter cliff, ending at the beach. For the general design of the house, three main factors were considered that were decisive in the decision-making process: to protect an exterior sector from the strong south-westerly wind that prevails in the area, to maintain privacy from the neighbors on the north and south sides, and to take full advantage of the sea view.



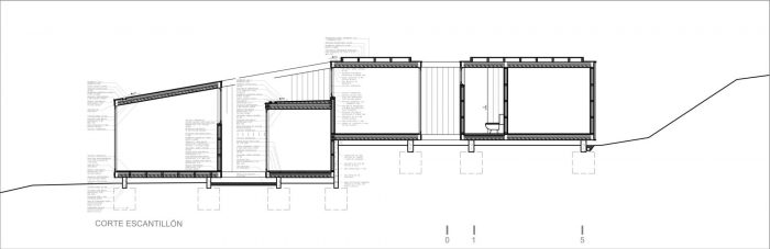
因此,我们提出了一个 "U "形体,它将以这样的方式放置,即有两个平行和密封的体,它们的面朝向邻近的边界,第三个是完全可渗透的,并与海岸边缘平行。由于这种配置,在中心,将有一个户外天井,免受风的影响,这将有一个特殊性,即通过双层玻璃的公共区域在视觉上与海相连。公共区域的空间将是房屋的中轴线,而其余的程序性元素(卧室、浴室、洗衣房和有屋顶的停车场)将分布在与之垂直的两个体量中。由于其南北立面的狭小,建议采用半开放的庭院,为一些房间提供更好的照明和通风。此外,这些庭院在某些情况下可以让我们看到大海的景色。
Therefore, a "U" shaped volume was proposed, which would be placed in such a way that there would be 2 parallel and hermetic volumes on their faces towards the neighboring boundaries, and the third, totally permeable, and parallel to the coastal edge. As a result of this configuration, in the center, there would be an outdoor patio protected from the wind, which would have the particularity of being visually connected to the sea through the double-glazed common area. The space of the common areas would be the central axis of the house, while the rest of the programmatic elements (bedrooms, bathrooms, laundry, and roofed parking area), would be distributed in the 2 volumes perpendicular to it. Due to the tightness of its north and south facades, semi-open courtyards were proposed to provide better lighting and ventilation to some rooms. In addition, these patios would allow us to have a view of the sea in some cases.


房屋的主体结构由金属框架组成,以建造没有支撑的大空间(特别是在公共区域),次要结构由浸渍松木组成。对于外部覆层,设计了一个由2 "x1 “浸渍拉丝松木组成的垂直网格,它在有屋顶的停车区起着格子的作用。
The main structure of the house is composed of metal framing, to build large spaces without support (especially in the common areas), and the secondary structure is composed of impregnated pine. For the exterior cladding, a vertical grid of 2 "x1" impregnated brushed pine was designed, which functions as a lattice in the roofed parking area.












Architects: Raimundo Gutierrez Frías
Area : 240 m²
Year : 2020
Photographs :Nico Saieh
Manufacturers : Alumadi, Duomo, Hunter Douglas, W Store, alfuego.cl
Structural Design : Joaquín Valenzuela
Sanitary Engineers : Catherin Nuñez
City : Matanzas
Country : Chile