这是一座传统的联排别墅,就像马雷斯梅海岸上的许多其他别墅一样。它是一排房子,主立面与街道对齐,有泥土和石头的隔断墙,还有一个后天井。尽管如此,该房屋有两个显著的特点。首先,它在同一块地产上整合了两个类型的单元。也就是说:它没有像通常那样有一个4到5米的单间,而是有两个窗台作为它的一部分。第二,房屋后部天井的地面比主要通道的地面高3米。这两个特点都有很大的潜力,但也有矛盾的限制。在第一种情况下,因为这两个实体之间的关系非常差。
It was a traditional townhouse, like so many others on the Maresme coast. It is a row house, with the main facade aligned to the street, dividing walls of mud and stone, and a back patio. Despite this, the house had two remarkable peculiarities. First, it incorporated two typological units on the same property. That is: instead of having a single bay of between 4 and 5 meters, as usual, it had two bays as part of it. Second, the ground level of the back patio of the house was about 3 meters above the ground level of the main access. Both features had great potential but were paradoxically limiting as well. In the first case because the relationship between the two entities was very poor.




在第二种情况下,房子的高度很低,似乎被嵌入了地面,完全停留在后天井的边缘。以至于房子的第一层与天井没有联系。要到天井去,就必须下到底层,然后再上一个外面的楼梯。同样重要的是要强调一个事实,那就是该房子位于历史中心,那里的规划规则非常严格。
In the second case, the house, which had low height, seemed to be embedded in the ground, remaining completely on the edge of the back patio. So much so that the first floor of the house did not communicate with the patio. To go out to the patio it was necessary to go down to the ground floor and go up an outside staircase again. It is also important to highlight the fact that the house is located in the historic center where the planning rules are extraordinarily strict.



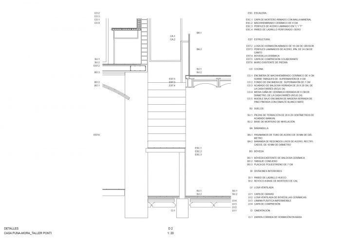
由于大量的内部划分和它与地形的位置关系,原来的房子特别潮湿。湿度和黑暗使它成为木耳的理想场所。在进行结构诊断时,发现有非常多的活性白蚁存在。房子的整个水平结构肯定是没用的。为了改善湿度条件,在底层建造了一个通风室。为了防止木虱的攻击,钢被选为水平结构的材料。
Due to the abundance of interior divisions and its position in relation to the terrain, the original house was extraordinarily humid. Humidity and darkness made it an ideal place for xylophages. When the structural diagnosis was carried out, a very relevant presence of active termites was detected. The entire horizontal structure of the house was definitely useless. In order to improve humidity conditions, a ventilated chamber was built under the ground floor. To prevent the attack of xylophages, steel was chosen as the material for the horizontal structure.


该项目试图将房屋的各个房间结合起来。在底层,新的大门衔接了两个托架,使通道处于中心位置,并伴随着从街道到房子的交通。在上层,楼梯组织了进入天井的流通。底层的天花板是很有特色的。像地板一样,它是用暴露的陶瓷完成的。相比之下,上层楼的天花板有一个相当空灵的存在。与地板不同的是,它和墙壁一样采用了白色装饰。
The project tries to combine the rooms of the house. On the ground floor, the new gate articulates the two bays, giving centrality to the access and accompanying the traffic from the street to the house. On the upper floor, the staircase organizes the circulation into the patio. The ground floor ceiling is very present. Like the floor, it is finished with exposed ceramic. The upper floor ceiling, by contrast, has a rather ethereal presence. Unlike the floor, it is finished in white like the walls.

在路线的尽头,在扩张体积的顶点,厨房向天井开放,新的半圆形阳台也是如此。
At the end of the route, culminating in the expansion volume, the kitchen opens onto the patio, as well as the new semicircular balcony does.







Architects: TALLER PONTI
Area : 270 m²
Year : 2021
Photographs :José Hevia
Manufacturers : Farrés
Lead Architect : Jaume Coscollar
Structure : Jordi Gendrau
Country : Spain