Sawasae Bunisari是一个私人客户的住宅建筑项目,位于万隆的Cijambe。该建筑采用别墅或度假屋的形式,位于客户的家族土地上。
Sawasae Bunisari is a residential building project for a private client, located in Cijambe, Bandung. The building takes the form of a villa or vacation house, located on the client’s family-owned land.



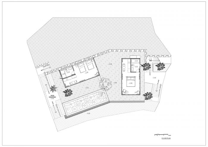
别墅坐落在一个轮廓不平的景观上,周围的环境也很好。为了最大限度地扩大室内区域的视野,建筑被分成两部分,构建成V字形,全高的玻璃墙可以俯瞰周围的稻田,让大量的自然光进入。室内区域的内部是由混凝土和木材制成的。室内设有床、客厅、厨房和浴室。在建筑物之间的室外区域是一个公共空间,有一张桌子,可以在上面聚集。
The villa is situated on a landscape with uneven contour and adapted around it. To maximize the field of view from the indoor areas, the buildings are split into two and constructed in a V-shape, with full height glass walls overlooking the rice fields around the area to allow a good amount of natural light to go in. Interior for the indoor areas are made out of concrete and wood. The interior features a bed, living room, kitchen, and bathrooms. In the outdoor area between the buildings is a communal space, with a table to gather around on.


别墅的屋顶被设计成一个花园,使建筑与周围环境相融合。室外区域的地板由木头制成,周围的墙壁由石头制成,强调了别墅与自然之间的和谐。在上层花园和下层户外区域,还种植了一些树木。
The roof of the villa is designed to be a garden, making the building blend with its surroundings. Flooring for the outdoor area is made from wood and the surrounding walls are made from stones, emphasizing the harmony between the villa and nature. In the upper garden and lower outdoor area, a number of trees are also planted.

别墅还设有一个游泳池,它被放置在边缘,有一个宽阔的平台,增加了私人度假胜地的印象,同时也可以看到大自然的全貌。总的来说,别墅的设计是为了让住户或游客沉浸在他们周围的美景中。
The villa also features a pool, which is placed at the edge with a wide deck, adding the impression of a private resort while also allowing for a full view of nature. Overall, the villa is designed for the residents or visitors to immerse themselves in the beauty of what surrounds them.





















Architects: BASIO
Area : 70 m²
Year : 2022
Photographs :Bayu Ariyanto
Manufacturers : AGROB BUCHTAL, Jotun, Toto, Woodlam Indonesia
Principal Designer : Bayu Ariyanto
Architecture & Interior Design : Rizki Nurkarim, Mirza Annisa, Andi Maulana
Structure Engineer : Handiyanto Dwikarya
Contractor : Concorde Studio
Program / Use / Building Function : Villa
Country : Indonesia