该建筑位于波兰西南部的奥波莱附近的村庄。城市的逐步扩张导致了郊区村庄的密集城市化,这些村庄已经成为奥波莱郊区的一部分。建筑物开发的地块位于原来的草地和牧场上,围绕着紧凑的Malina村。设计的建筑位于一个开放的平坦区域,与现有的村庄建筑明显隔开,这促使人们思考建筑与这种环境的对应关系。
The building is located in southwestern Poland in the village near Opole. The progressive expansion of the city has resulted in the intensive urbanization of suburban villages that have already become part of suburbs of Opole. The plot of land which the building was developed on is located on land that was originally meadows and pastures surrounding the compact village of Malina. The location of the designed building on an open, flat area, clearly sidelined from the existing village buildings, prompted thoughts about the building's correspondence with such an environment.




由于缺乏与计划中的开发项目相互作用的现有明确的环境刺激,决定了用户将注意力集中在场地的中心点,而不是进一步的框架和视角。建议的空间解决方案,而不是对外部因素的反应,因为在这个地方很少有外部因素,而是专注于建筑和它周围的环境。是建筑向外界发出了信号,而不是通过其区块的适当构成向外界发出信号。
The lack of existing clear environmental stimuli interacting with the planned development was decisive for the user to focus on the central point of the site rather than further frames and perspectives. The proposed spatial solution, instead of reacting to external factors which there are few of at this location, focuses on the building and its immediate surroundings. It is the building that sends signals to the outside, not the other way around, through the proper composition of its blocks.

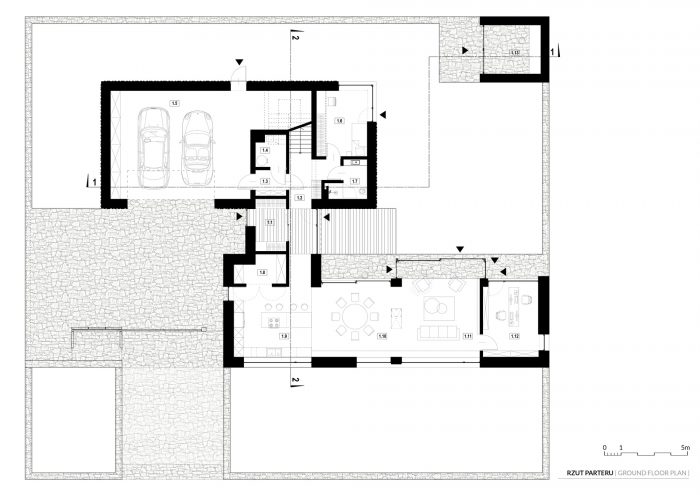
通过为用户明确划分房屋周围最近的相关空间,实现了既定的目标。 通过将地块的一部分抬高到高于周围地形的水平,最重要的位置已经被定义。一个由三个实体组成的房子被设置在所产生的立面上。块状物的高度各不相同,相互交错。因此,得到了两个具有不同功能的独立空间--开放的和封闭的。第一个是建筑入口前的开放空间,它向街道和邻近的地段开放。第二个空间是一个封闭的花园区。在东南部,内部花园的构成被一个杂物间所封闭。增加的构图元素使人们很难从外面自由地观看花园的这一部分。在街道一侧,建筑的位置是由建筑线定义的。在这部分地块中,栅栏线位于立面的正面,释放了建筑前面的区域。
The stated goal was achieved by clearly delineating the closest, relevant space around the house for the user. By elevating a section of the plot above the level of the surrounding terrain, the most important location has been defined. A composition of three solids constituting a house was set on the resulting elevation. The blocks are varied in height and staggered in relation to each other. Thus, two independent spaces with different functions have been obtained - OPEN and CLOSED. The first is the OPEN space in front of the entrance to the building which is open to the street and neighboring lots. The second space is a CLOSED garden area. In the southeastern part, the composition of the inner garden is closed with a utility room. The added element of composition makes it difficult to freely view this part of the garden from the outside. On the street side, the location of the building is defined by the building line. In this part of the plot, the fence line was located in the face of the elevation freeing up the area in front of the building.


该建筑是在西里西亚村建造的。这个地方的主要发展类型是紧凑的农场建筑。设计的房子建在一片草地上。它在物理上位于该地区特有的后德式建筑的历史结构之外。因此,建议的建筑形式和美学解决方案并不是从字面上模仿原始开发,而是借鉴其模式。建筑作为一个前提,体量的分解,倾斜的屋顶和装饰材料都是对传统的谨慎延续。石头和木材被用来装饰外墙。在建筑的外墙上使用石灰石启发的砌体,是因为石灰石是该地区建筑中常用的材料。这就是建筑主体以自然的方式与地形的关系。
The building was constructed in the Silesian village. The predominant type of development in this locality is compact farm buildings. The designed house was built in a meadow. It is physically located outside the historic fabric of post-German buildings characteristic of the area. Therefore, the proposed form and aesthetic solutions of the building do not literally imitate the original development, but draw on its patterns. The building as a premise, the break-up of the massing, the pitched roof and the finishing materials are a discreet continuation of the traditions. Stone and wood were used to finish the facade. The use of limestone-inspired masonry on the building's facade is due to the fact that limestone was a material commonly used in construction in the area. This is how the body of the building relates to the terrain in a natural way.











Architects: Staruń Wanik Architects
Year : 2022
Photographs :Nate Cook
Lead Architects : Szymon Wanik, Paulina Staruń
Structure Engineer : Łukasz Kosecki
HVAC Consultants : Jakub Badura
Lighting Designers : Spectra Lighting
Swimming Pool Contractors : Budmax s.c.
City : Opole
Country : Poland