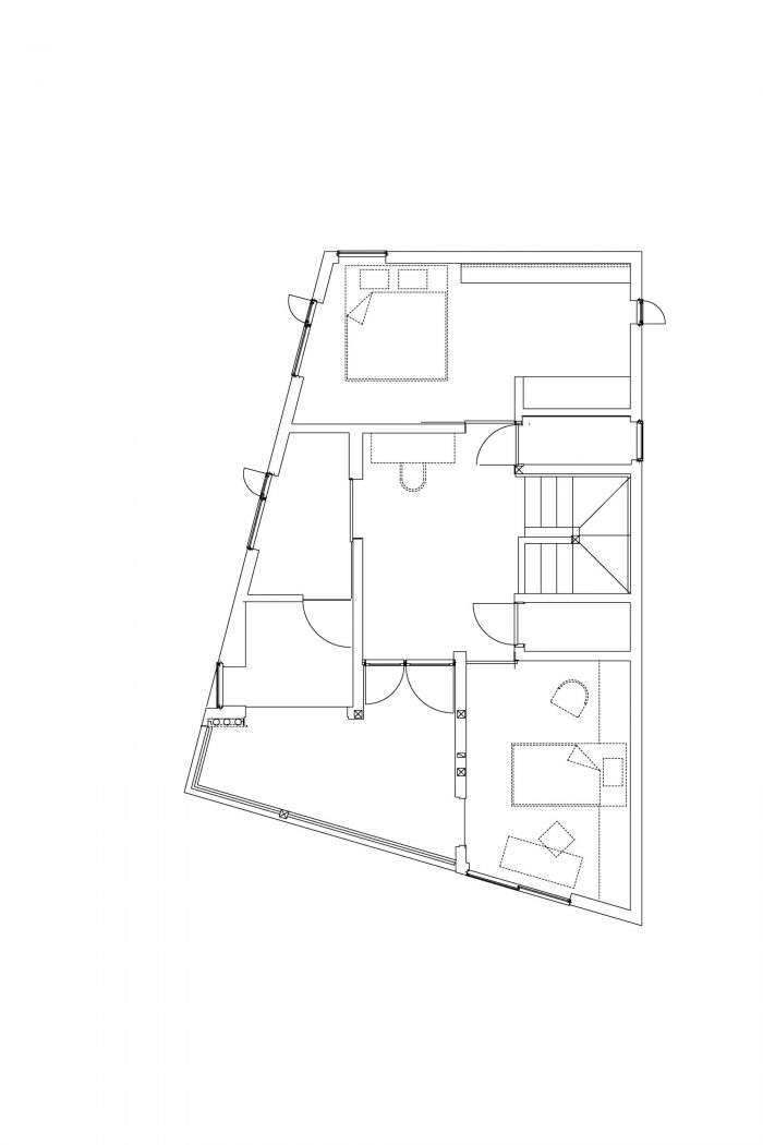
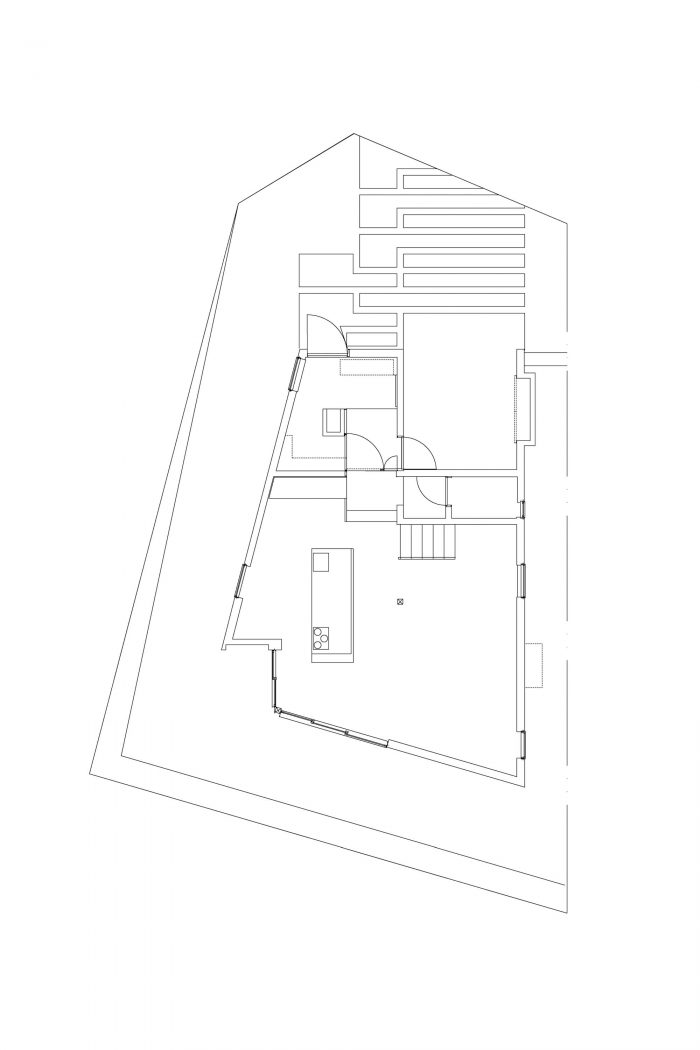
一座位于山上的房子,可以俯瞰坦泽山。受业主--一位木工艺术家的作品启发,这个体量就像一块雕刻好的木头。从体量上刺出的凹凸不平成为高位侧灯、阳台等的开口,并引导不断变化的光线进入房间。
A house located on a hill overlooking the Tanzawa Mountains. Inspired by the work of the owner, a woodworking artist, the volume is like a carved piece of wood. The unevenness pierced from the volume becomes an opening for high side lights, balcony, etc., and guides the ever-changing light into the room.





一楼的客厅、二楼的浴室和屋顶的露台都朝向山区,这样就可以欣赏到壮丽的山景。
The living room on the first floor, the bath on the second floor, and the terrace on the roof are turned toward the mountains so that you can enjoy the view of the magnificent mountains.

外部材料上的随机木结和内部墙壁上的不均匀抹灰起到了连接空间和材料的作用。
Random knots of wood on the exterior material and uneven plastering on the interior walls played a role as an element connecting the space and the material.












Architects: KOMINORU Design
Area: 108 m²
Year: 2019
Photographs: Katsumasa Tanaka
Manufacturers: Takahiro Wood
Architect In Charge:Minoru Ko
Design Team:KOMINORU Design
Structure Engineer:Tomonori Kawata
Country:Japan