该项目是对23年前建造的两层楼住房进行改造。原来的平面图有独立的单元和一个小客厅。由小隔间组成的空间唤起了一种封闭的感觉。
The project was to renovate a two-story housing that was built 23 years ago. The original floor plan had individual cells and a small living room. The space composed of little compartments evoked a cooped-up feeling.




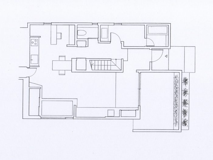
因此,制定了一个计划,通过消除不必要的客房和隔断,使之具有迁移和眼睛/交通的意识。入口处作为一个开放的土层,连接着露台和客厅。
Therefore, a plan was made to have migration and eyes/traffic consciousness by eliminating unnecessary guest rooms and partitions. The entrance serves as an open dirt floor that connects the terrace with the living room.

为了扩大能见度和生活空间,一个柜台和一个高架空间被放在一起,作为一个单元,沿着生活墙建造。
Aiming to expand visibility and living space, a counter and a raised space are put together as a unit that has been built along the living wall.

它被一堵高墙所包围,挡住了周围环境的视线,并配备了植物,以吸引房间内的目光。阳台、入口和客厅就这样有节奏地延续着。
It is surrounded by a high wall that blocks eyes of the surrounding environment, and is provided with planting that catches eyes of inside the rooms. The terrace, the entrance and the living room are thus rhythmically continued.

在二楼,大厅被扩大了,新提供了一个书房来松散地分割空间。
由于适度的天花板高度和柔和的光线射入,这个空间看起来很平静。大厅里裸露的柱子以前隐藏在墙内,现在成为产生空间的一个元素。这个建了很多年的房子,现在已经被改造成了具有空间潜力的房子。
On the second floor, the hall has been expanded and a study room newly provided to loosely segment the space.
The space looks calm because of the moderate ceiling height and subdued light coming in. The exposed column in the hall, which was hidden inside the wall before, now serves as an element to produce the space. The home, which has been built over many years, has been now renovated to be the house with potential of space.















Architects: FORM / Kouichi Kimura Architects
Area : 140 m²
Year : 2018
Photographs :Yoshihiro Asada
Manufacturers : YKK AP, Wicanders
Lead Architects : Kouichi Kimura
Country:Japan