House U项目的历史和过程与我们开发的其他项目有些不同。最初,House U的构思是在一个与目前土地的大小和建筑法规不同的土地配置中进行的。之前注定要用于该项目的土地由地段组成,所以整个设计利用了环境与建筑物体的环境化,这加强了房屋内部视角的景观的持久性。
The House U project has a history and process somewhat unusual to the other projects we have developed. Initially, House U was conceived in a land configuration with different sizing and construction legislation from the current land. The land previously destined for the project consisted of the lots, so the whole design took advantage of the contextualization of the environment with the built object, which strengthened the longevity of the view from the internal perspective of the house.



随着项目进入高级发展阶段,其建筑结构已经完全确立,业主方面产生了改变批次的愿望,随着这种愿望,我们面临的挑战是如何在不失去支持其主要概念和建筑建议的所有要点的情况下保留该项目。
With the project in an advanced stage of development, having its architecture fully established, arose the desire on the part of the owners to change the batch, and with this desire, the challenge for us to preserve the project without losing all the points that supported its primary conception and architectural proposal.



然而,与最初的方案不同的是,该项目将在一个批次中实施,其规模只有主批次的一半,并且在其建筑规范中存在一些分歧。我们的挑战是在新的批次中重新建立项目,而不损失其需求方案,甚至更少的建筑方面。
However, unlike the initial scenario, the project would be implemented in a batch with half the size of the primary batch and some divergences in its construction code. Our challenge was to re-establish the project in its new lot without loss in its needs program, and even less its architectural aspects.


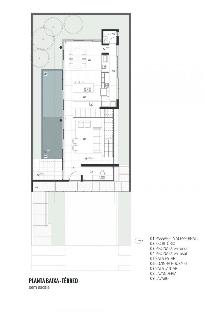
因此,一个新的推理被建立起来,构想了一个重叠的楼层和巩固其建筑的几何形式主义的动态。U型屋,其根源在于一个主要街区和主角的概念。这在它的体量之间创造了交替,中央楼层的体量被压制,这创造了一个与其他街区有关的空隙。
Thus, a new reasoning was established, conceiving a dynamic of overlapping floors and consolidation of the geometric formalism of its architecture. House U, has its roots in the conception of a primary block and protagonist. This creates alternation between its volumes, and the volume of the central floor is suppressed, which creates a void in relation to the other blocks.


U栋有一个位于地下的完整体量,在底层有一个空隙,在上层又有完整的体量。在这个推理的基础上,House U的概念的起源被定义。流通的功能和动态与项目的形式结构一起出现。
House U has a full volume located underground, a void on the ground floor, and again the full volume on the upper floor. On the basis of this line of reasoning, the origin of the conception of House U is defined. The functions and dynamics of circulation emerged in conjunction with the formal structure of the project.


作为一个混合楼层的特征,它拥有车库和住宅的功能。考虑到其与房屋其他环境相关的功能,楼层之间的通道位于房屋的中央区域,因此在进入厨房和房屋的私密区域的需求时,移动的行为是平衡和舒适的。
Characterized as a hybrid floor as it holds the garage function with Home. Taking into account its function in relation to the other environments of the house, the access between floors is located in the central area of the house, so the act of moving around is balanced and comfortable when accessing the needs of the kitchen and intimate areas of the house.


另一方面,在底层,面临的挑战是创造一个提供整合和活力的温馨环境。业主渴望有一个有利于实用性的空间,在日常生活中促进家庭融合的空间关系,以及在其主要提案中确立的建筑方的核心。
On the ground floor, on the other hand, the challenge is to create a welcoming environment that offers integration and dynamism. The owners longed for a space that facilitated practicality, the relationship of spaces for family integration in everyday life, and the core of the architectural party established in their primary proposal.



由于在城市模式中常见和广泛使用的批量尺寸,矩形轮廓创造了设备平行的需要,这就需要对所有这些问题(房舍、方案、批量尺寸、日照、业主的愿望等)进行详细评估和平衡。通过这种方式,我们平衡了社会环境的动态与构成外部区域的设备。
Because of the size of the batch, common and widely used in the urban patterns of the city, the rectangular profile creates the need for parallelism of the devices, which necessitated a detailed assessment and balance of all these issues (premises, programs, batch dimensions, insolation, desires of owners, etc.). In this way, we balance the dynamics of social environments with the devices that comprise the external area.

我们创造了一个内部和外部空间的相互欣赏,将游泳池直接纳入House U的大厅,以及探索其包层的颜色,以解构蓝色的阅读,这是非常具有代表性的游泳池。它的定位与太阳的方向有关,以及对整个房子的日照的决定,这是相当讨论和考虑的事情,以平衡其前提。我们选择将游泳池安置在房子的一侧,这样它就能接受所有早晨的阳光,并且在下午的时候,随着时间的推移逐渐被遮住。简而言之,我们的意图是将游泳池纳入正式和景观状态,将其主要功能转化为空间的最终阅读背景。
We created a mutual appreciation of the interior and exterior space with the incorporation of the swimming pool directly in the hall of House U, as well as exploring the coloring of its cladding to deconstruct the blue perusal, which is very emblematic of swimming pools. Its positioning in relation to the solar orientation, as well as the decision on the insolation of the whole house that was something quite discussed and considered to balance its premises. We opted to position the swimming pool on the side of the house, so that it received all the morning sun and, during the afternoon period gradually overshadowed with the passing of the day. In short, the intention arises to incorporate the swimming pool into the formal and landscape state, translating its primary function into the background in the final reading of the space.


在上层,构成取决于亲密的环境,由三个套房组成。套房从楼层的透明空隙中分布出来,分布在两端,使步行集中在街区上。步行,反过来,考虑到由底层提供的视觉游戏,在每一步,观众有一个独特的观点来享受。
On the upper floor, the composition depends on the intimate environments, being composed of three suites. The suites are distributed from the transparent void of floors and distributed at the ends, making the walk centralized on the block. The walk, in turn, contemplates the game of vision that is offered by the ground floor, and at each step, the spectator has a distinct viewpoint to enjoy.







































Architects: Caio Persighini Arquitetura
Area : 3391 ft²
Year : 2022
Photographs :Favaro Jr.
Manufacturers : Art Final, Breton, Bullvara, CDA Montagens, Concremassa Concreto & Argamassa, Copav, Deca, Esquadrias Jahu, Hunter Douglas, Marcenaria Pichoneri, ND Marmoraria, Pastilhas Atlas, Pormade, Portobello, Projeta Iluminação, Roca, Tarkett
Lead Architect : Caio Persighini
Project Team : Laisi Fassini, Bruna Caires e Felipe Orocini
Engineering : Rodolpho Maia
Landscaping : Angela Bonancin
City : Araraquara
Country : Brazil