来自Monmar工作室的年轻作者Monika和Marek Ivanko的项目试图为如何结合年轻家庭的生活和工作的问题找到一个答案。因此,他们设计了一个房子,除了主要的生活区,还为他们的工作室创造了空间。这个实现也是他们作品的 "陈列室"。作者补充说:"我们不怕把客户带到我们家里,向他展示房子的外观和功能"。一座简单的长方形房屋,屋檐,尊重当地景观和建筑的特点,位于一个小巷的尽头,周围是田野和草地。由于它与周围的绿色植物直接接触,它看起来好像是自然生长出来的。
The project of young authors Monika and Marek Ivanko from the Monmar atelier tries to find an answer to the question of how to combine the life of a young family and work. Therefore, they designed a house that, in addition to the primary living area, also creates space for their atelier. The realization also serves as a "showroom" of their work. "We are not afraid to bring the client to our home and show him how the house could look and have a function" the authors add. A simple rectangular house with a gable roof, respecting the local character of the landscape and buildings, is located at the end of a cul-de-sac, surrounded by fields and meadows. Due to its direct contact with the surrounding greenery, it looks as if it has grown naturally from it.



方案形式的出发点主要是布局和审美要求,基于家庭住宅的传统生活方式的想法。活动的结果是一个合理的家庭住宅,反映了建筑的特点,并尊重了当地的建筑。带有山形屋顶的基本体量由独立的储藏空间和车库停车场补充,通过屋顶连接到入口。房屋外观的主要特点是大面积的落叶松木覆面的通风外墙。
The starting point for the form of the proposal was mainly layout and aesthetic requirements based on the idea of a traditional way of living in a family house. The result of the activity is a rational family house that reflects the character of the building and respects the local architecture. The basic mass with a gable roof is complemented by free-standing storage spaces and garage parking, connected to the entrance by roofing over. The exterior of the house is mainly characterized by large areas of the ventilated facade with larch wood cladding.


作者决定使用未经表面处理的木材,主要是因为其自然老化,这将有助于建筑与周围环境的融合。材料构成由传统的白色石膏和灰色波纹金属制成的屋顶完成。室内的特点是木材、白色石膏和天然材料的结合。该构图由黑色口音的细节来补充。
The authors decided to use wood without surface treatment mainly because of its natural aging, which will contribute to the fusion of the building with its surroundings. The material composition is completed by traditional white plaster and roofing made of gray corrugated metal. The interior is characterized by a combination of wood, white plaster, and natural materials. The composition is complemented by black accents of details.


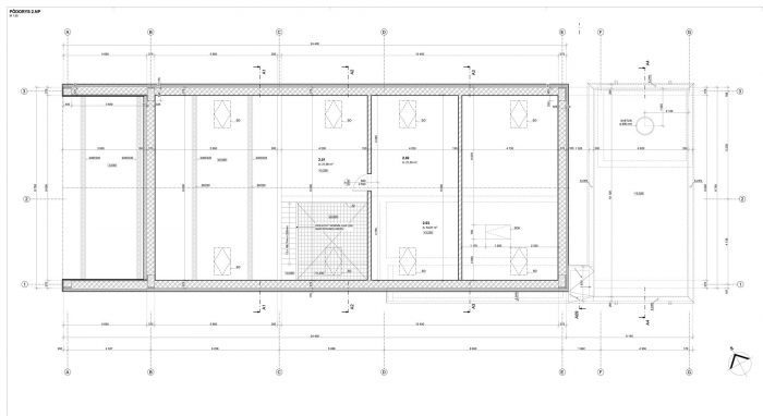
摆放。房子从有盖的背风面沿东南立面进入。前庭提供了通往技术区的通道,并通向一楼的主走廊。在入口处的正对面,有一个工作室,一个独立的厕所,旁边还有一个儿童浴室。建筑师将带有独立卫生间和衣柜的卧室设在平面图的东北部。房子的日间区域是两层楼的开放空间,直到屋檐下的桁架,结构清晰可见。
Disposition. The house is entered from the covered leeward side along the southeast facade. The vestibule gives access to the technological block and leads to the main corridor on the ground floor. Directly opposite the entrance area, there is an atelier, a separate toilet, and next to it a bathroom for children. The architects located the bedroom with its own bathroom and wardrobe in the northeastern part of the floor plan. The day zone of the house is open space over two floors up to the truss of the gable roof with a visible construction.


几乎在屋檐墙的整个宽度上开口,将客厅、餐厅和厨房与一个大的有盖阳台连接起来。一楼和一楼的空间由一个开放的画廊连接。一个单臂楼梯通向可从儿童房进入的阁楼,阁楼的天花板是开放的,里面有一个步行网。它扩大了生活区域,同时保持了儿童房各区域之间的联系。在一楼,有一个画廊和一个独立的房间—儿童的睡眠区。
Opening in almost the entire width of the gable wall, connects the living room, dining room, and kitchen with a large covered terrace. The spaces on the ground floor and first floor are connected by an open gallery. A single-arm staircase leads to the attic accessible from the children's room, the ceiling of which is open and filled with a walking net. It expands the living area while maintaining the connection between the zones of the children's room. On the first floor, there is a gallery and a separate room - a sleeping area for children.




























Architects: Monmar ateliér
Area : 220 m²
Year : 2022
Photographs :Matej Hakár
Manufacturers : Laufen, Dorsis, Jánošík Okna-Dvere s.r.o, KJG, Kludi, Schiedel
Lead Architects : Monika Ivanková, Marek Ivanko, Lukáš Bosák
City : Trenčín
Country : Slovakia