位于乌特勒支Rivierenwijk社区的Merwedekanaal,我们设计了一个外观现代的船屋。船屋最大限度地向水面开放,与岸边的绿色前院有更亲密的关系。现代的外观是由一个大的开口组成的。这艘船的坚固特性来自于深色的铝制基座,以及垂直的木质板条和黑色窗框的结构。在内部,由于镂空的木制天花板与浅色调的墙壁和地板相结合,船屋有一种干净而温暖的气氛。
Located in the Merwedekanaal in the neighborhood Rivierenwijk in Utrecht, we designed a contemporary-looking houseboat. The houseboat opens maximally to the water and has a more intimate relationship with the green front yard on the shore. The contemporary appearance is provided by a composition of large openings. The houseboat's robust character comes from the dark aluminum plinth with the construction of vertical wooden slats and black window frames. Inside, the houseboat has a clean but warm atmosphere due to the openwork wooden ceiling combined with walls and floors in light shades.



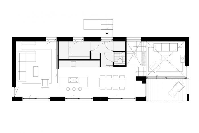
一楼通过大推拉门和水杆露台向水面开放。开放式平面图中的不同空间和功能是由核心和高度差来定义的。这自然而然地在一个交错的空间中创造了一些地方。关闭不同空间的愿望是通过引入滑动门来实现的。
The first floor opens to the water with large sliding doors and a water-lever terrace. The different spaces and functions within the open floor plan are defined by the core and height difference. This naturally creates places in an interlocking space. The desire to close the different spaces is realized by the introduction of a sliding door.

这使得开放空间可以被细分为小区域,并创造出一个具有亲密气氛的客厅。在厨房旁边是一个位于外墙的深色座位龛,加强了内部和外部之间的关系。在内部,由于裸露的木质天花板与浅色调的墙壁和地板相结合,船屋有一种干净但温暖的气氛。屋顶上的太阳能电池板提供了自己的能源需求。屋顶是由白色的屋顶制成的,这使得它不太容易使室内变热。一楼是由地暖加热的。楼下则安装了一些电暖器。
This allows the open space to be subdivided into small areas and creates a living room with an intimate atmosphere. Next to the kitchen is a deep seating niche in de façade, strengthening the relationship between inside and outside. Inside, the houseboat has a clean but warm atmosphere due to the exposed wooden ceiling combined with walls and floors in light tones. Solar panels on the roof provide for their own energy needs. The roof is made of white roofing which makes is less likely to heat up the interior. The first floor is heated by underfloor heating. Downstairs, a number of electric heaters have been installed.

水位以下的楼层通过楼梯旁边的大窗户与空隙提供光线。除了三间卧室外,这一层还提供了两间浴室、一间技术室和一个大储藏室的空间。在室内各处体验绿色的愿望是通过在空隙处整合一个建筑花箱而形成的。自然色调的墙壁和地板提供了一个愉快的生活环境。
The level below the water table is provided with light through the large window next to the stairs with the void. In addition to three bedrooms, this floor also offers space for two bathrooms, a technical room, and a large storage room. The desire to experience greenery in various places in the interior was shaped by the integration of an architectural flower box in the void. Walls and floors in natural tones provide a pleasant living environment.





Architects: EVA architecten
Area : 150 m²
Year : 2022
Photographs :Luuk Kramer
Architect : Maarten Terberg, Jasper van Uitert
Constructional Engineering : ABC Waterwoningen
Country : The Netherlands