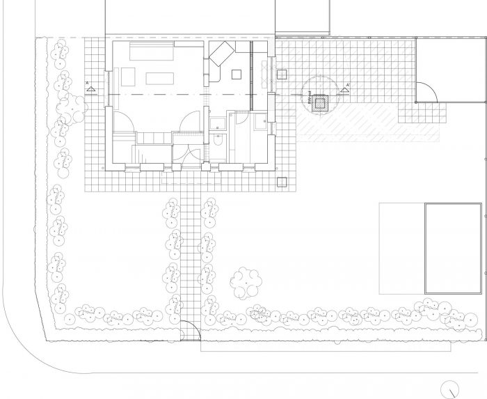
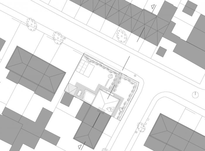
客户住在布鲁塞尔花园城市中少有的维护良好的工人住宅中。 这个房子真的很小,需要与花园有更多的联系。 受郊区许多混凝土围栏和花园房屋的启发,我们为房子建造了一个混凝土扩建部分。
The client is living in one of the rare well-kept laborers houses in the garden city in Brussels. The house was really small and needed more relation with the garden. Inspired by the many concrete fences and garden houses in the suburb, we build a concrete enlargement to the house.





扩建部分为房子带来了一个额外的生活空间,用于用餐、休憩和储存。它将房子与花园相连,并通过降低高度与邻居融为一体。 受现有的白色和深色钢窗的启发,新的窗户和玻璃门也采用了深色的框架,并有小的开口部分。
The extension brings the house an extra living space for dining, sitting, and storage. It opens the house to the garden and is integrating to the neighbour by reducing it’s height. Inspired by the white and dark existing steel windows, the new windows and glazed doors get also a dark frame with small opening parts.

建筑物的联系在室内得到了强调:窗户周围的木框,新旧之间的地板上的黑色瓷砖。
Building connections are accentuated in the interior : wooden frames around windows, black tiles in the floor between old and new.

















Architects: Atelier Tom Vanhee
Year: 2019
Photographs: Stijn Bollaert
Manufacturers: AutoDesk, Reynaers Aluminium, Deutsche FOAMGLAS®, RENSON, Resitrix, Saint-Gobain, Sto, Unilin, Zoontjens, Aquadrain, Classic comfort bakaliet interroptor, plywood birch
Contractor: Dr Construct
Engineering:Lime
City:Brussels
Country:Belgium