HP大厦位于北宁省的一个人口密集区。该项目面积为440平方米(20.9米×21.1米),主立面为西北方向。业主期望有一个与自然紧密相连的生活空间,充分利用自然光,有足够的休息空间。此外,一个独特的、与众不同的立面也是业主的要求之一。
HP Building is located in a densely populated area in Bac Ninh province. The project has an area of 440m2 (20.9m x 21.1m) and the main facade to the northwest. The owner expects a living space that closely connects to nature, makes the most of natural light and has plenty of resting space. Moreover, a unique and distinctive façade is one of the owner’s requirements.






由于房子的外墙朝西,并且靠近主干道,我们需要找到一个解决方案,不仅有助于创造一个独特的外墙,还能确保室内空间不受直接自然光的影响,扩大视野,并将周围车辆的灰尘和噪音降到最低。该房屋的主要功能包括疫苗接种中心(1楼)、水疗中心(2楼)、出租房(3、4、5楼)和咖啡馆(6楼)。外墙由数百个高架花园床组成,以不同的高度排列,形成一个巨大的绿化层。这个解决方案有助于为房子创造独特性,使自然光更好地分布到内部空间,更好地看到,更有效地防止来自外部的灰尘和噪音。
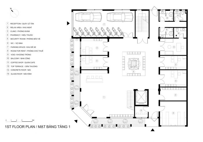
As the house has a west-facing facade and is situated close to the main road, we need to find a solution that not only helps create a unique facade but also ensures that the interior space is not affected by direct natural sunlight, the visibility is expanded and the dust and noise from surrounding vehicles are minimized. The main functions of the house include a vaccination center (1st floor), a spa (2nd floor), rooms for rent (3rd, 4th, 5th floor), and a café (6th floor). The facade is made up of hundreds of raised garden beds arranged at different heights, creating a giant layer of greenery. This solution helps to create uniqueness for the house with better distribution of natural light to the interior space, better visibility and more effective prevention of dust and noise from outside.



主厅中的一个大空洞直接与房屋中间的中庭相连,这有助于在人们踏入室内时带来舒适的感觉。空隙和中庭直接与楼梯和电梯相连,帮助人们轻松观察和移动。此外,这也是帮助房屋中间区域通风和获得更好的自然光的一个解决方案。在楼层之间移动的人可以感受到到处都是绿色和自然光。
A large void in the main lobby is directly linked to the atrium in the middle of the house, which helps bring a comfortable feeling when people step inside. The void and the atrium are directly connected to the stairs and the elevator to help people easily observe and move. In addition, this is also a solution to help ventilate and get better natural light for the middle area of the house. People moving between floors can feel the greenery and natural light everywhere.



6楼被用作室外花园,创造缓冲空间,这有助于提高室内空间的质量。大树在这里被用来冷却室内空间,限制噪音,并让自然通风进入室内。HH建筑是克服西向房屋局限性的实际解决方案的组合,其中我们专注于创造更多的休息空间,增加通风和自然光,改善室内生活空间的质量,激发该地区人们的绿色生活。
The 6th floor is used as an outdoor garden to create buffer spaces, which helps improve the quality of the indoor space. Large trees are used here to cool the indoor space, limit noise and allow natural ventilation into the house.HH Building is a combination of practical solutions to overcome the limitations of the west-facing house, in which we focus on creating more resting spaces, increasing ventilation and natural light, improving the quality of indoor living space and inspiring green living for people in the area.



























Architects: Kien Truc NDT
Area : 440 m²
Year : 2021
Photographs :Hoang Le
Manufacturers : AutoDesk, Lumion, INAX, Toto, Viglacera, 4oranges, Acor, Adobe, Rạng Đông, Trimble Navigation, Xingfa
Design Team : Nguyen Dang Tuong
Engineering : Hoang Tuan Anh
Landscape : Ngo Thi Nga
Clients : Duong Khanh Hai
Country : Vietnam