我们居住的土地是一种不可复制的商品。在许多城市和社区,住房的空间正变得稀缺。这是因为,尽管正确的说法是我们的城市基本上已经建成,即在德国平均有足够的生活和工作空间,但这些现有的空间往往不是在正确的地方。特别是在经济繁荣的住区,生活空间是需要的。由于当地的经济体系,可用的土地受到不断的投机和相关价格的推动。自1962年以来,联邦统计局一直在记录这个国家的建筑土地价格的发展:到2017年,有2308%的增长。土地价格越来越贵,建筑成本也随之越来越高。
The land we live on is a non-replicable commodity. In many cities and communities, space for housing is becoming scarce. This is because, despite the correct statement that our cities are largely built, i.e. on average in Germany there is enough living and working space available, this existing space is often not in the right place. Especially in economically prospering settlements, living space is needed. Due to the local economic system, the available land is subject to constant speculation and the associated price driving. Since 1962, the Federal Statistical Office has been recording the development of building land prices in this country: by 2017, there was an increase of 2,308 percent. Land prices are getting more expensive, and with them construction costs.




觊觎者大流行开始以来的这段时间也表明,我们需要从根本上重新思考我们生活空间的结构配置。毕竟,建筑现代主义曾提议将我们的生活空间划分为生产和再生产,即一方面是工作,另一方面是娱乐。现在越来越明显的是,这种划分既不特别可行,也不可能在任何地方和任何时候都保持这种划分。考虑到正在发展的交通流,这一原则也必须受到质疑。但这需要有允许不同类型居住的平面图。我们的住宅将必须被设计成可以适应居住者各自的需求,根据生活的阶段进行调整,并反复调整。通过这种方式,灵活的平面图可以使人们留在一个地方,即使一个人成了家,家庭变大又变小,或者进入另一种形式的生活和居住社区。
The period since the start of the covid pandemic has also shown that we need to fundamentally rethink the structural configuration of our living spaces. After all, architectural modernism had proposed dividing the spaces of our lives into production and reproduction, that is, work on the one hand and recreation on the other. Now it is becoming apparent that this division is neither particularly practicable nor can it be maintained everywhere and at all times. This principle must also be called into question in view of the traffic flows that are developing. But this requires floor plans that allow for different types of living. Our dwellings would have to be designed in such a way that they can be adapted to the respective needs of their occupants, adapted according to the phase of life and adjusted again and again. In this way, flexible floor plans could make it possible to stay in one place, even if one starts a family, the family grows larger and becomes smaller again, or enters into another form of living and residential community.

在斯图加特南部,在Heslach的一个山坡上,VON M办公室找到了那些仍然开放的地块之一,这些地块在城市中变得如此罕见。由于它的地形,在一个向南急剧上升的斜坡上,长期以来它被认为几乎不可能被建造。建筑师开发了两座几乎相同的房子,每座房子都有一个几乎正方形的平面图。该设计既结合了东边邻居家的屋檐高度,又将其建筑深度作为一个尺度设定的元素。由于场地坡度极大,建筑必须挖到地下三层,所以很快就确定房子的很大一部分必须用混凝土建造。为了保持较低的规划和施工成本,VON M使用预制混凝土构件开发了一个简单的细节和接头的目录,这些构件现在是整个复式建筑的特点。
In Stuttgart South, on one of the Heslach slopes, the VON M office has found one of those still open plots of land that are becoming so rare in the city. Because of its topography, on a slope that rises sharply to the south, it was long considered almost impossible to build on. The architects have developed two almost identical houses, each with an almost square floor plan. The design incorporates both the eaves height of the neighboring house to the east and its building depth as a scale-setting element. Since the building had to dig up to three stories into the ground due to the extreme slope of the site, it was quickly determined that a large part of the house would have to be built in concrete. To keep planning and construction costs low, VON M developed a catalog of simple details and joints using precast concrete elements that now characterize the entire duplex.

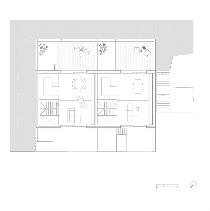
意识到建筑材料在二氧化碳排放方面的困难,建筑师们随后为坚固的混凝土外壳开发了一个灵活的内部结构,目的是在扩建部分实现不同的平面图变体,这也将允许在未来进行转换。为此,他们建立了一个十字形的平面方案,允许用轻质窗帘、木质隔板或橱柜连接不同的室内空间选择。即使平面图中各自的位置没有被墙所占据,嵌在地板上的木条也会显示出该方案,并提供房间的微妙分区。这不仅保证了这两座房子的实际平面图变体对各自的住户来说是足够的,而且住户在将来还可以根据各自生活环境的变化而做出相应的改变。
Aware of the difficulties of the building material with regard to its CO2 emissions, the architects then developed a flexible interior for the robust concrete shell with the aim of enabling different floor plan variants in the extension, which would also allow conversions in the future. To this end, they established a cruciform floor plan scheme that allows for different options of interior space joining with light curtains, wooden partitions or cabinets. Even if the respective places in the floor plan are not occupied by a wall, wooden strips embedded in the floor indicate the scheme and provide subtle zoning of the rooms. This not only ensures that the actual floor plan variants in both houses are adequate for the respective residents, but also that the residents can still make changes in the future that correspond to the changes in their respective living circumstances.

从街上看,半独立式住宅的两个部分都像一对相同的双胞胎:小前庭、落地大窗洞、一楼的入口凉亭凹槽和顶楼的小露台,再加上预制混凝土构件的连接模式。法式窗户和露台前的格子栏杆强调了预制的工业特征。所有这些都是按照街道的坡度进行的,各个建筑构件的接缝都很好地融入了这个系统,见证了精心的详细规划。
From the street, both parts of the semi-detached house appear like identical twins: small front gardens, floor-to-ceiling large window openings, recesses for entrance loggias on the first floor and small terraces on the top floor, plus the joint pattern of the precast concrete elements. The industrial character of the prefabrication is emphasized by the lattice balustrades in front of the French windows and terraces. All of this follows the gradient of the street, the joints of the respective building components blend finely into the system and bear witness to the careful detailed planning.

按照一个逻辑顺序,房间从街道的公共区域发展到房子里,然后依次向上发展。像一个空间门槛,一个小前院被插入到街道和房子之间,它是一个露台,车道,前花园和垃圾桶的围栏。一楼有一个多用途的房间,可以作为两轮车的停车位,也可以作为工作场所或客房,斜坡上有两个储藏室和一个客用厕所。楼梯上有一个几乎与房子一样高的空中空间,如果有必要,可以在以后的阶段加装电梯。外部的美学在这里得到了完整的延续。混凝土和已经熟悉的用于护栏和扶手的工业栅栏。
Following a logical sequence towards more privacy, the rooms develop from the public of the street into the house and there successively upwards. Like a spatial threshold, a small forecourt is inserted between the street and the house, which is a terrace, driveway, front garden and garbage can enclosure in equal measure. On the first floor there is an all-purpose room, which could be a parking space for two-wheelers as well as a workplace or guest room, two storage rooms on the slope side and a guest toilet. The staircase is accompanied by an almost house-high air space, which can be retrofitted with an elevator at a later stage if necessary. The aesthetics of the exterior are continued here unbroken: Concrete and the already familiar industrial grilles for parapets and handrails.


从这里,人们进入一楼的开放式生活区,在斜坡一侧的厨房方向,可以用木墙隔开,但目前是开放的。因此,整个楼层作为一个可渗透的生活空间,包括带用餐区的厨房,两边的沙发和扶手椅,有窗户与外部空间相连。朝着斜坡,两个房子都有小院子,有围墙,挖到斜坡上作为私人户外空间,不允许从外面看到。上面的楼层也可以作为一个完整的区域,但同样可以形成一个在空间上被墙围起来的隔间和一个在视觉上被窗帘隔开的隔间--或者用两个古典的房间来执行。此外,还有一个浴室,在西边的双胞胎中配备了一个大圆窗,看起来像是对OMA的Maison à Bordeaux的致敬。顶层在结构上是一样的:在这里,面向街道的空间目前是一个开放的工作室,辅以一个房间和另一个浴室。此外,还有一个小的屋顶平台,从那里可以看到赫斯拉赫的屋顶和哈森伯格的远景。事实上,这里的景色令人惊叹。大面积的落地窗一次又一次地将山坡上的绿色景观或城市的景色框住。
From here, one enters an open living area on the 1st floor, which can be separated by a wooden wall in the direction of the kitchen on the slope side, but is currently open. Thus, the entire floor as a permeable living space including kitchen with dining area, couch and armchairs on both sides with windows connected to the outside space. Towards the slope, both houses have small courtyards with enclosures that dig into the slope as private outdoor spaces and do not allow views from the outside. The floor above could also be used as a complete area, but could just as well result in a compartment spatially enclosed by a wall and one optically separated by a curtain - or be executed with two classical rooms. In addition, there is a bathroom, which in the western twin is equipped with a large round window that looks like a tongue-in-cheek homage to OMA's Maison à Bordeaux. The top floor is structurally the same: Here, the street-facing space is currently an open studiolo, supplemented by a room and another bathroom. In addition, there is a small roof terrace from which the view extends far over the roofs of Heslach to the Hasenberg. The views, in fact, are amazing: Again and again, the large, floor-to-ceiling windows frame the views into the greenery of the mountainside or out to the city.

灵活多变的平面图在坚固的建筑中创造了一种流动的核心,它像一个保护壳一样包裹着房子的内部。可以想象,这些四层楼的房子,目前每个都有一个家庭居住,有一天会被用于退休社区,或者个别楼层会被分离出来作为祖母级公寓。生活在这里被设想为我们活动的全部,房子的空间,作为城市空间的逻辑延续,提供了一个适当的选择和变化。通过这种方式,这两座房子不仅激活了城市中一块难以使用的土地,而且使居民在今天尚未确定的星座中使用这块土地成为可能,在一个未写的未来。
The versatile, flexible floor plan variations create a kind of fluid core within the robust construction, which wraps itself around the interior of the house like a protective shell. It is conceivable that the four-story houses, each currently occupied by a family, will one day be used by retirement communities or that individual floors will be separated off as granny apartments. Living is conceived here as the totality of our activities, to which the spaces of the house, as a logical continuation of the spaces of the city, grant an appropriate option of appropriation and variation. In this way, the two houses not only activate a plot of land in the city that is otherwise difficult to use, but also make its use by the inhabitants possible in a constellation not yet defined today in an unwritten future.










Architects: VON M
Area : 476 m²
Year : 2022
Photographs :Zooey Braun
Lead Architect : Márcia Nunes
City : Stuttgart
Country : Germany