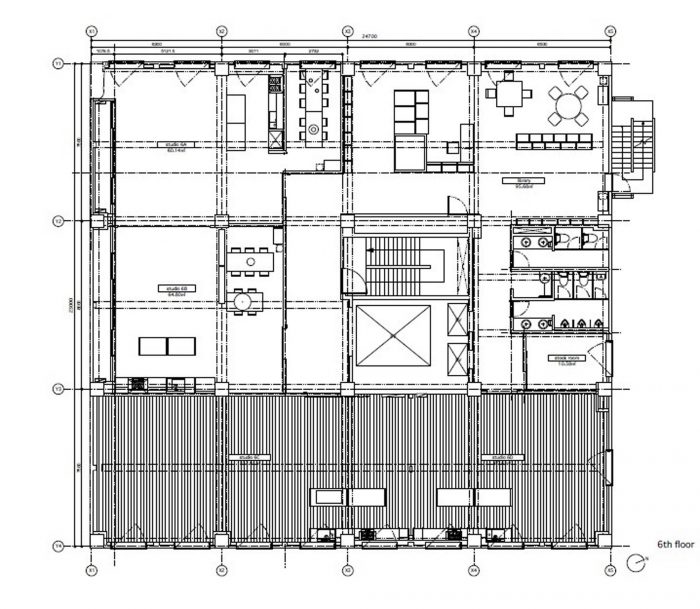
另类空间Hue+是一系列与照相馆无缝结合的设施,其中 "吃 "的视觉表达是摄影探索的特殊主题。与普通的照相馆不同的是,照相馆是一个封闭的盒子,仅仅作为拍摄设备使用,而Hue+是一个办公空间,一个咖啡馆,一个图书馆和一个厨房,用户可以控制它,使他们感觉到为了它而停留更长时间,享受这种体验。
The alternative space Hue+ is a series of facilities seamlessly integrated into the photo studio, where the visual expression of ‘eating’ is the particular subject of photographic exploration. Unlike an ordinary photo studio that is a closed box to be used merely as a shooting equipment, Hue+ is an office space, a cafe, a library and a kitchen that the users have control over, making them feel like staying longer for its own sake and enjoy the experience.



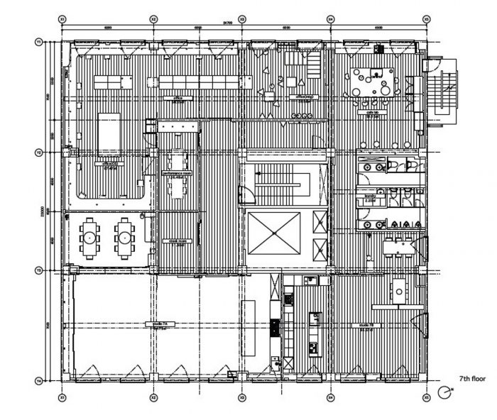
Hue+拥抱它的用户,使他们能够在他们认为合适的时候改变它。轻松的氛围为开放和充满活力的交流提供了进一步的可能性,以激起用户的创造性思维和关于 "吃 "的新鲜想法。
Hue+ embraces its users by enabling them to change it as they feel fit. The relaxed atmosphere offers further possibilities of open and vibrant communications to stir up the users’ creative minds and fresh ideas about ‘eating’.










































Architects: Schemata Architects
Area: 1704 m²
Year: 2012
photographs: Takumi Ota
City:TOKYO
Country:Japan