猎人家庭休闲的住所位于立陶宛森林深处的一座小山上。所选择的位置是隐蔽的,被树木所包围,以便有机会听到大自然的真实声音。这个概念的主要灵感来自于客户的爱好--打猎。
A shelter for a hunter's family leisure time is located on a small hill in the deep Lithuanian forest. The chosen location is retreated and surrounded by trees in order to give a chance to hear the real sound of the nature. A main inspiration of the concept was a client's hobby - hunting.



我们的想法是为家庭的生活方式注入一个古老的概念--吃大自然提供的东西,并与邻近农场的产品交换。它应该成为一个环境容纳人类但保持对人类的重要性的地方。
The idea was to infuse a lifestyle of the family with an archaic conception - to eat what the nature provides and exchange it to products from neighbouring farms. It suppose to become a place where an environment accommodates human but keeps the importance over him.
出于这个原因,他们决定使用所有的当地资源。 来自当地森林的木材被用作建筑的主要材料。此外,所有在现场工作的木匠和工匠都来自邻近的村庄。
For this reason, there were decided to use all local resources. Timber from local forests was used as a main material in construction. Also all carpenters and artisans who worked on the site were from neighbouring villages.

建筑物的结构设计拒绝了所有困难的设计方案,这些方案需要专业的施工人员在过程中进行干预。
The architecture of the building was design refusing all difficult design solutions that would require an interference of professional constructors in the process.

周边土地的主要特征反映在设计上,并被用于外部和内部,以反映当地村庄的想法。
The main features of the surrounding land are reflected on the design and used for both exterior and interior to reflect athe idea of a local village.

出于这个原因,狩猎屋用立陶宛艺术的传统元素--动物、鸟和太阳的旋律来装饰,这象征着幸福和家庭的一致性。
For this reason The Hunting house was decorated with traditional elements of Lithuanian art - animals, birds and sun tunes which symbolise bliss and coherence for home.





















Architects: Devyni Architektai
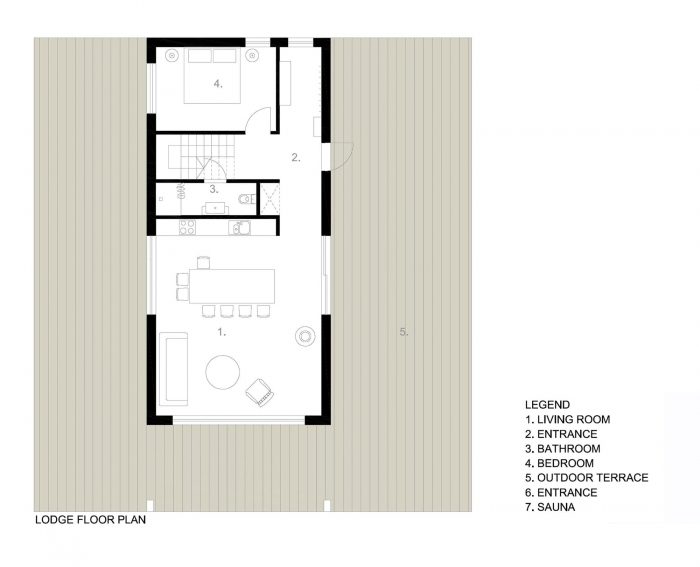
Area : 100 m²
Year : 2015
Photographs :Augis Narmontas
City:SARIAI
Country:Lithuania