该建筑是一个商店和公寓综合体,位于感光寺西北的奥-浅草地区,那里的人口正在老化。通过在不使用容积率的情况下建造一个4层的建筑,电梯的费用被分配到私人区域。其目的是通过吸引年轻人居住和购物,在该地区创造一个新的活动中心。
This building is a store and apartment complex in the Oku-Asakusa area, northwest of Sensoji Temple, where the population is aging.By building a 4-floor building without using up the floor-area ratio, the cost of the elevators was allocated to the private areas. The aim was to create a new hub of activity in the area by attracting young people to live and store.





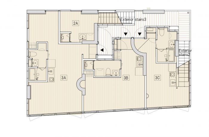
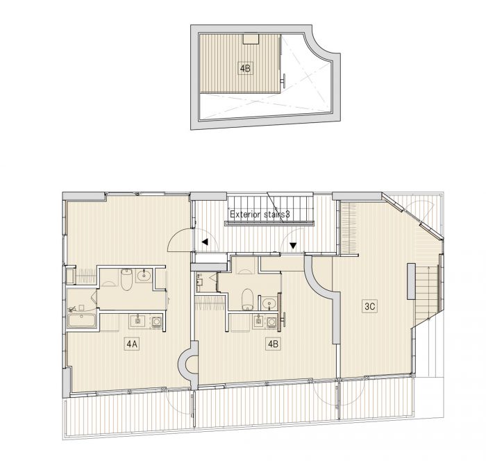
我们想到了一个设计,从Okuasakusa典型的小屋檐演变而来,以及一个允许改变隔间的结构。因此,我们决定采用一个墙体框架的RC结构,两个楼梯垂直重叠在一起。通过减少混凝土框架的数量,该建筑更轻,并且有一个直接的地基,没有任何桩基,这成功地降低了成本。室内设计中,偶有弯曲的混凝土墙来承担东西向的墙体体积,以及由干燥的ALC和雪松组成的垂直原木墙,创造了一种有墙的生活体验,而不是传统公寓楼中墙与墙之间的生活空间体验。
We thought of a design that evolved from the small eaves typical of Okuasakusa, and a structure that would allow changes to the compartments. As a result, we decided on a wall-framed RC structure with two staircases vertically overlapping each other. By reducing the amount of the concrete frame, the building is lighter and has a direct foundation without any piles, which has succeeded in reducing the cost. The interior design, with occasional curved concrete walls to bear the east-west wall volume, and vertical log walls of dry ALC and cedar, creates a living experience of living with walls, rather than the conventional spatial experience of living between walls in apartment buildings.



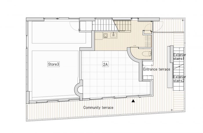
面向十字路口的楼梯和商业与住宅空间相交的公共区域显示在街道上,楼梯的坡度在中间被改变,这样人们就可以在缓坡部分轻松坐下。延伸楼梯坡度的红柏椽子横跨私人和公共区域,柔化了阳光,在夜晚照亮城市。作为这些努力的结果,我们旨在创造一个混合建筑,模糊共享商店和私人住宅之间的界限。
The staircase facing the intersection and the common area where commercial and residential spaces intersect are shown on the street, and the slope of the staircase is changed in the middle so that people can sit down easily on the gently sloping part.The cedar rafters that extend the slope of the stairs cross over the private and common areas, soften the sunlight and light up the city at night. As a result of these efforts, we aimed to create a hybrid building that blurs the boundary between shared stores and private residences.




















Architects: tatta architects
Area: 449 m²
Year: 2020
Photographs: Hiroyasu Nakayama
Manufacturers: IOC Flooring, LIXIL , Okikura Sawmill, Sanwa Company, TOKYOKOEI
Structure Engineer: KAWATA Tomonori Structural Engineers Co.Ltd
Mechanical Engineering: Tomoaki Masukawa
Electrical Engineering: Tsugihisa Narita
Architects:Hiroki Tominaga, Yae Fujima
Country:Japan