Hygrometern位于Ystad的Västra Sjöstaden新区。该地块的地势高差刚刚超过两米,南面向海倾斜,西面是开阔的耕地。
Hygrometern is located in the new district of Västra Sjöstaden in Ystad. The site, with a level difference of just over two meters, slopes towards the sea in the south with open arable land extending out to the west.



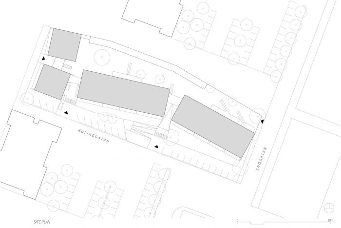
该项目包括四栋两层楼的建筑,总共有20套公寓,平均分为两室和三室公寓。将该项目划分为若干较小的建筑体量,而不是将所有的公寓集中在一个体量中,有许多好处;这种分离行为创造了间隙,使公共庭院有了各种入口,建筑体量也有了相称的规模。独立的建筑体量也能够利用场地的不同轮廓来发挥其优势。
The project comprises four two-story buildings which house a total of 20 apartments, split evenly between two-room and three-room apartments. Dividing the project into a number of smaller built volumes, as opposed to gathering all the apartments into one volume, entails a number of advantages; this act of separation creates interstices that endow the common courtyard with a variety of entrances and the built volumes with a sympathetic scale. The separate built volumes are also able to exploit the site's varying contours to their advantage.


这些建筑有一个共同的材料语言,阳台栏杆和楼梯是镀锌钢,金属制品的细节,窗户是漆铝,外墙是落叶松。这种材料的统一性通过楼层规划、窗户位置和中间的户外空间的变化得到了加强。其目的是创造一个具有现代设计语言的和谐的整体,在材料和细节方面的关怀得到明显的体现。
The buildings share a common material language, with balcony railings and stairs in galvanized steel, metalwork details, windows in lacquered aluminum, and facades clad in larch. This material uniformity is augmented through variations in floor plan, window placement, and interstitial outdoor spaces. The intention was to create a harmonious whole with a contemporary design language, where care at the level of materiality and detail is clearly manifested.


所有的公寓都是双面的,并与室外环境保持紧密联系。一楼的公寓有宽敞的天井,而二楼的公寓则有大阳台,由于全高的玻璃隔断,这两个阳台全年都能保持舒适的温度。内部庭院由一个细长的储藏室构成,为居民提供公共和私人空间。朝着街道,场地的水平差异被用来将停车位和废物处理设施与私人庭院分开。
All apartments are double-sided and maintain strong contact with the outdoor environment. Ground-floor apartments have generous patios, while second-floor apartments enjoy large balconies, both of which maintain a pleasant temperature year-round thanks to full-height glass partitions. The internal courtyard, which is framed by an elongated storage building, offers both common and private spaces for the residents. Towards the street, the site’s level differences are used to separate parking spaces and waste facilities from the private patios.

















Architects: Johan Sundberg arkitektur
Year : 2021
Photographs :Markus Linderoth
Lead Architect : Johan Sundberg
Landscape Architects : MARELD Landskapsarkitekter
Main Contractor : Serneke
Builder : Simon Björk
Associate Architects : Max Germundsson, Gudmund Bladh
Project Architects : Alex Johansson, Miruna Gusoaia
Structural Engineers : Emma Persson, Lucas Alsén, WSP
City : Ystad
Country : Sweden