这所房子是试验我不习惯的材料组合的机会。金属 "w "型梁和混凝土砖的排列给了我准确的质朴性和精确性来实现这种和谐。
This house was the opportunity to experiment with materials that I was not accustomed to combining. The arrangement of the metal "w" beams and concrete bricks gave me the exact rusticity and precision to achieve this type of harmony.



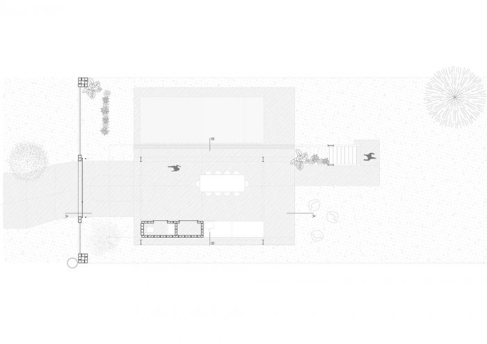
房子下面55平方米的多功能开放空间没有任何限制,但同时又包含了一个可以在游泳池旁边乘凉的阴影空间。
The versatile open space under the house of 55m2 has no limits, but at the same time contains a shaded space to cool off next to the pool.


此外,"透明 "的阳台为冬季的烧烤活动过滤了准确的光线。
In addition, the "transparent" balcony filters the exact amount of light for barbecues during the winter.

在室内,房子非常明亮,没有内墙。它只被家具分割,将几乎透明的阳台和树梢与主要空间的内部衔接起来。
Inside, the house is very bright and does not have interior walls. It is only divided by furniture, articulating the almost transparent balcony and the treetops with the interior of the main space.


房子的整体策略提出了一种通过通道移动的方式,确保建筑对象的旅程可以在隐私和渗透性方面从少到多,以及在空间的整合方面。
The overall strategy of the house proposes a way to move through the access that ensures that the architectural object's journey can go from less to more in both privacy and permeability, as well as in the consolidation of spaces.

因此,虽然建筑作为一个具有精确边界的物体出现,但它并不妨碍生活,允许单独识别这些空间,但也作为一个整体的一部分。
So, while the construction appears as an object with precise boundaries, it is not in the way of living, allowing the individual identification of these spaces but also as parts of a whole.







Architects: Estudio Ferrazini
Area: 144 m²
Year: 2021
Photographs:Javier Agustin Rojas
Manufacturers: ALUMINIOS Y VIDRIOS GROUP, IVANAR
Lead Architect: Pedro Ferrazini
Design Team: Victoria Ferrazini, Martina Ferrazini
Construction: LT Desarrollos, Estudio Santiago
City: Ibarlucea
Country: Argentina