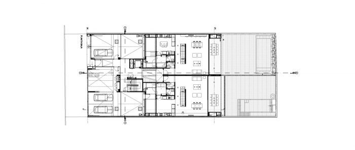
该建筑位于阿根廷布宜诺斯艾利斯的一个低密度社区的双倍城市地段,受侧墙限制。
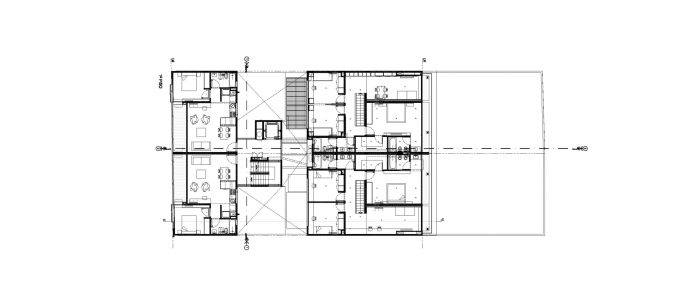
它由两个体量组成,被一个院子隔开。前面的体量包含一个卧室单位,另一个在后面,比较安静,有四个房子,其中两个在一楼和二楼,有私人花园,其他的在二楼和三楼,有自己的露台。
It is a building is located in a double urban lot limited by side party walls, in a low density neighborhood in Buenos Aires, Argentina.
It is composed of two volumes separated by a yard. The volumen in the front containing one bedroom units, and the other , in the back and quieter, with four houses, two of them on the ground and first floor with private gardens, and the others on the second, and third floor with their own terraces.



这些体量通过位于院子里的一个开放的循环系统进行衔接和连接,并有一座小桥与后面的体量相连。
The volumes are articulated and connected through an open circulatory sistem located in the yard, and a small bridge connecting with the back volumen.

混凝土结构显示在外墙和这个循环系统中,完全由暴露的混凝土制成。
The concrete structure is shown in the facades and also in this circulatory sistem , entirely made of exposed concrete.
















Architects: KLM Arquitectos
Area : 15069 ft²
Year : 2017
Photographs :Albano Garcia
Lead Architect : Federico Kelly, Paula Lestard, Hernán Maldonado
Collaborator : Natalia Cavalieri
Structure : Sebastián Berdichevsky
Builder : Cy0 Construcciones
City : Núñez
Country : Argentina