Foster + Partners已经完成了ICÔNE,一个位于卢森堡Belval的新办公综合体。这座18800平方米的办公大楼充满了光线和绿色,鼓励共同创造和合作的精神。它的布局解决了未来将出现的对灵活和安全的工作环境的需求。它还参考了贝尔瓦尔丰富的工业遗产,通过对场地和周围环境的积极贡献,振兴了该地区。该方案的目标是达到英国建筑性能评估体系的优秀等级。
Foster + Partners has completed ICÔNE, a new office complex in Belval, Luxembourg. The 18,800-square-metre office building, filled with light and greenery, encourages a spirit of co-creation and collaboration. Its layout addresses the need for flexible and safe working environments that will emerge in the future. It also references the rich industrial heritage of Belval, revitalizing the area by making a positive contribution to the site and its surroundings. The scheme is targeted to achieve a BREEAM Excellent rating.



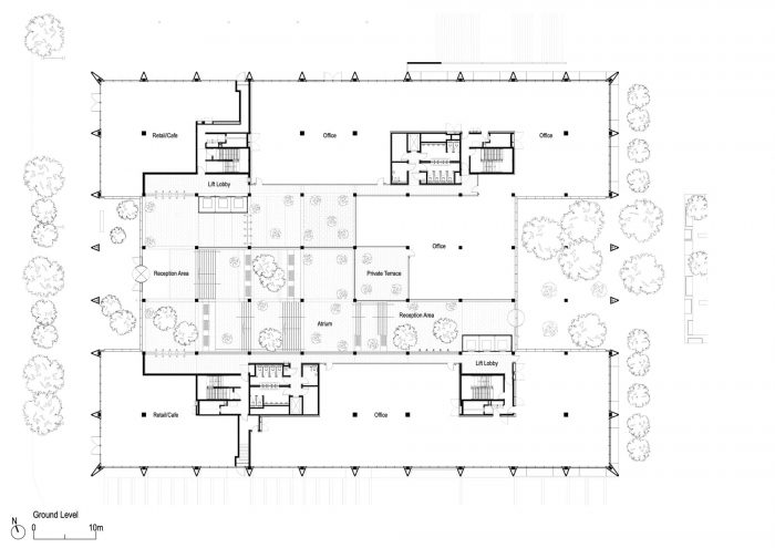
ICÔNE位于Belval,一个结合了研究、教育、休闲和商业的新城市区。该方案与邻近建筑的规模有关,并解决了周围街道的不同特点。它的入口处以不同的方式衔接,以回应西边的主要城市街道法兰西门和东边的学院广场。新的商店、咖啡馆和餐馆将为这些入口立面的行人层面带来活力。
ICÔNE is located in Belval, a new city quarter combining research, education, leisure, and commerce. The scheme relates to the scale of neighboring buildings and addresses the different characteristics of the surrounding streets. Its entrances are articulated differently in response to Porte de France, the main urban street to the west, and the Place de l'Académie to the East. New shops, cafés, and restaurants will bring life to these entrance elevations at pedestrian level.



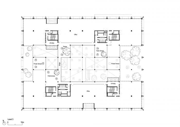
该建筑与当地的BFF建筑事务所合作设计,被安排为两翼,包围着中央中庭,由独特的正交外墙和屋顶包裹,强调了结构网格,使建筑适合其工业环境。历史上具有象征意义的贝尔瓦尔高炉构成了从中庭眺望的中心焦点。
Designed in collaboration with local practice BFF architectes, the building is arranged as two wings enclosing the central atrium, wrapped by a distinctive orthogonal façade and roof which emphasizes the structural grid and gives the building appropriate to its industrial setting. The historic and symbolic Belval blast furnace forms the central focus of the dramatic vista from the atrium.




内部空间的流动性与建筑的正式外观形成对比。中庭通过一系列的阶梯式露台解决了街道和广场之间的水平变化,创造了一个壮观的到达顺序。开放式的流线型设计增加了内部空间的活力,公共绿色景观平台用于非正式会议,而较高楼层的休息空间则是一个丰富多样的整体的一部分。
The fluidity of the internal space contrasts with the building’s formal exterior. The atrium resolves the level changes between the street and the plaza through a series of stepped terraces which create a spectacular arrival sequence. The open circulation adds to the vibrancy of the internal spaces, with communal green landscaped terraces for informal meetings and break-out spaces at higher levels as part of a rich and varied whole.

外墙既是结构性的,也是对环境的响应,提供了一个综合的解决方案,允许内部无柱的办公空间,以及遮阳和最大限度的内部日光。外立面得益于一系列的外部绿色木栅,从建筑的内部和外部都可以看到。
The façade is both structural and environmentally responsive, providing an integrated solution that allows for internal column-free office spaces as well as solar shading and maximized internal daylight. The external façade benefits from a series of external green loggias, visible from both the inside and outside of the building.













Architects: Foster + Partners
Area : 18800 m²
Year : 2023
Photographs :Nigel Young
Associate Architects : BFF Architectes
Country : Luxembourg