佐佐木龙一建筑事务所是一家屡获殊荣的国际知名建筑设计公司,专注于文化体验,很荣幸地揭开了Ideareve-Ikegami的面纱。该项目于2021年与八木隆之和八木小天合作完成,为客户Yasunori Kamata / K-M-T设计的钢筋混凝土结构,可容纳一个音乐厅、练习室、隔音的住宅出租单元和一个顶楼。
Ryuichi Sasaki Architecture, an award-winning, internationally acclaimed architectural design firm specializing in cultural experiences, is proud to unveil the Ideareve-Ikegami. Completed in 2021 in collaboration with Takayuki Yagi and Yagi Komuten, for the client Yasunori Kamata / K-M-T, the reinforced concrete structure was designed to accommodate a music hall, practice rooms, soundproofed residential rental units, and a penthouse.




Ideareve-Ikegami位于池上本门寺脚下,该寺院因17世纪初建造的巨大五层佛塔而闻名,它位于东京南部的池上镇,是由小型寺院、咖啡馆、商店和住宅区组成的文化中心。佐佐木龙一建筑事务所的任务是为该镇设计一个设施,让居民可以在各种混合空间中聚集,表达他们的创造力,并学习音乐。事务所接受了这一任务,并以惊人的几何方式作出回应。
At the foot of the Ikegami Honmonji Buddhist temple, renowned for its massive five-story pagoda erected in the early 17th century, the Ideareve-Ikegami is located in the south Tokyo town of Ikegami, a cultural hub comprised of smaller temples, cafes, stores, and residential zones. The mandate for Ryuichi Sasaki Architecture was to design a facility for the town where residents can gather, express their creativity, and study music in a variety of hybrid spaces. The firm embraced the mandate and responded in a stunning geometrical fashion.



"池上本门寺是日莲宗最重要的精神场所,其辉煌的历史可以追溯到13世纪,"首席执行官兼首席建筑师Ryuichi Sasaki解释。"我们面临的挑战是在它的阴影下设计一个体验式的综合体,它将拥抱社区的精神和文化精髓,同时也尊重通常保护此类遗产区的严格执行的建筑规范类型。"
“The Ikegami Honmonji temple is the most important spiritual site of the Nichiren Buddhist sect, with an illustrious history dating back to the 13th century,” explains Ryuichi Sasaki, CEO and Principal Architect. “The challenge for us was to design an experiential complex in its shadow that would embrace the spiritual and cultural essence of the community, while also respecting the types of strictly-enforced building codes that typically protect such heritage areas.”



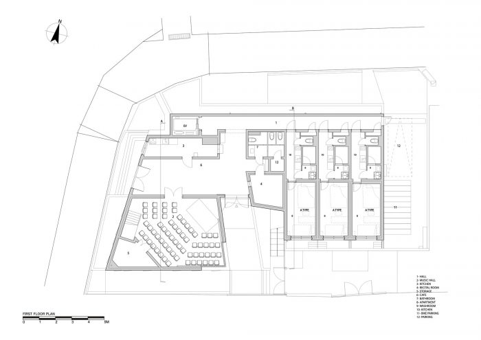
与环境的无缝融合--在池上最大的住宅群的西北部,该建筑群坐落在一个梯形的场地上,就在该镇的寺庙和咖啡馆的东面,主要是为了满足前往寺庙的朝圣者的移民潮。两层楼的音乐厅及其80个座位的剧院礼堂在结构的西南角占据了一个战略性的位置,通过前庭和门厅进入,形成一个循环区,模糊了外部景观的鼓舞人心的起伏的山丘和内部等待的创造力的氛围之间的界限。门厅被三面黄铜色的不锈钢对角线墙包围着,大厅的内部被声学反射器包裹着,大墙共同形成一个抽象的对角线形状。玻璃表面和多个入口进一步加强了音乐厅和周围景观之间的联系,后者由石笼网墙点缀,勾勒出一个由各种植物组成的花园。
A seamless blend with the environment - To the northwest of Ikegami’s largest cluster of residences, the complex sits on a trapezoidal site, just east of the town’s temples and cafes that cater largely to migrant waves of pilgrims en route to the temple. The two-story music hall and its 80-seat theatrical auditorium occupy a strategic place in the southwest corner of the structure, entered via a vestibule and foyer that combine to form a circulation zone that blurs the lines between the inspiring, undulating hills of the external landscape and the vibe of creativity that awaits inside. The foyer is embraced by three brass-colored, stainless steel diagonal walls, and the interior of the hall is encased in acoustic reflectors, with large walls that collectively form an abstract diagonal shape. Glass surfaces and multiple entranceways further embolden connections between the music hall and the surrounding landscape, with the latter embellished by gabion walls that delineate a garden of various species of plants.



空间的重新配置--在建筑的中心,住宅区与音乐厅共用入口,并通过一个楼梯进入,楼梯上的建筑元素象征性地向池上本门寺致敬。在楼梯的顶端,走廊上有一系列隔音的出租屋,每间都由厨房、浴室、隔音的客厅和睡眠区组成。住宅体量还包括一个顶层单元,由三层区域组成,具有滑动墙,可以最大限度地实现空间配置。通过重新配置滑动墙,客厅和餐厅区域可以被扩大,以适应各种后勤情况。睡眠区也可以从一间主卧室重新配置成多间卧室,以容纳其他家庭成员或房客。
Spatial reconfigurations - Towards the center of the building, the residential zone shares its entranceway with the music hall, and is accessed via a staircase marked by architectural elements symbolically paying tribute to the climb to the Ikegami Honmonji temple. At the top of the staircase, a series of sound-proofed rental homes line the corridor, each comprised of a kitchen, bathroom, soundproofed living room, and sleeping quarters. The residential volume also houses a penthouse unit comprising three-volume areas featuring sliding walls that enable maximum spatial configurations of its spaces. By reconfiguring the sliding walls, the living room and dining room areas can be enlarged to accommodate a variety of logistical situations. The sleeping quarters can also be reconfigured from a master bedroom into multiple bedrooms to accommodate other family members or houseguests.
最后,在音乐厅上方,一个大型露台进一步融合了建筑内部和外部的无缝边界,纳入了雄伟景观的鼓舞人心的观点,使Ideareve-Ikegami的顾客受益。
Finally, above the music hall, a large terrace further fuses the seamless border between the building’s interior and exterior, incorporating inspirational views of the majestic landscape for the benefit Ideareve-Ikegami patrons.



“佐佐木龙一总结说:"从住宅区以及音乐厅的流通区域看到的风景,被设计为激发有利于音乐创作和旋律节奏的情感。"该项目有助于文化和接待的融合,这也是该镇的特点,我们很自豪能够为池上的居民提供这个综合体的快乐使用。"
“Views from the residential area, as well as the music hall circulation areas, were designed to inspire emotions conducive to musical creativity and melodic rhythms,” concludes Ryuichi Sasaki. “The project contributes to the blending of culture and hospitality that characterizes the town, and we are proud to provide this complex for the joyful use of residents of Ikegami.”










































Architects: Ryuichi Sasaki / Sasaki Architecture
Area : 794 m²
Year : 2021
Photographs :Takumi Ota
Structure Engineering : Tatsumi Terado Structural Studio
Acoustics : Nagata Acoustics, Akira Ono
Landscape Desgin : Plat Design
Light Design : Lighting Sou, Natsuha Kameoka
Architect : Ryuichi Sasaki
Design Team : Ryuichi Sasaki, Gen Sakaguchi, Yuriko Ogura
Structure Engineer : Tatsumi Terado
Landscape Designer : Takeshi Matsuo
Metalworks : Shinko Stainless Polishing, Tatsunori Horiyama
Collaboration Architect : Takayuki Yagi
Client : Yasunori Kamata, K-M-T
Collaboration Architecture : Yagi Komuten
City : Ota City
Country : Japan