***我们介绍的工程是全球项目的第一阶段。这第一阶段由10间教室和厨房空间、设施和储存空间组成。第二阶段将容纳入口和行政空间、教师和会议室。
***The work we present is the first phase of the global project.This first phase is made up of 10 classrooms and kitchen spaces, facilities and storage spaces.The second phase will host the entrance and administration spaces, teachers and meeting rooms.***




建筑物及其周围环境。如何到达那里。该建筑位于帕泰尔纳市(瓦伦西亚)Valterna住宅区的边界线上,位于住宅楼和En Dolça峡谷之间的公共服务建筑和设施的地带,该峡谷将Valterna与名为La Pinada的城市扩张区分开,与学院的所有者相同。
THE BUILDING AND ITS SURROUNDINGS. HOW TO GET THERE. The building is located on the borderline of the Valterna residential area, in the municipality of Paterna (Valencia), on a strip intended for public service buildings and facilities located between the residential buildings and the En Dolça ravine, which separates Valterna from the urban expansion areacalled La Pinada, owned by the same owners as the College.



该项目的首要决定之一是将主入口放在河边,而不是从城市一侧。必须考虑到,考虑到教育的类型,学生最初将来自巴伦西亚的整个都市地区,所以他们中的大多数人将乘坐私人交通工具,直到新的社区La Pinada被开发,学校的大多数用户将来自那里。将学生的入口面向道路,并向城市看去,将导致这条已经很拥挤的街道的交通崩溃。该提案的基础是在河床的另一侧开发一个停车场,这样入口就可以远离这条路,等待新社区的发展。
One of the first decision of the projectwasplacing the main entrance on the riverside and not from the city side. It must be taken into account that, given the type of education, the students will initially be arriving from all over the metropolitan area of Valencia, so most of them will be coming by private transport, until such a time the new neighbourhood La Pinada will be developed and most of the users of the school wouldbe coming from there. Placing the student entrance facing the road andlooking out onto the city would cause the collapse of traffic on this street that is already congested. The proposal is based on the development of a parking lot on the other side of the riverbed so that the entrance is away from this road and awaiting the development of the new neighbourhood.



峡谷被纳入该项目,承认其作为自然元素的作用,是该地区的支柱,并克服了峡谷作为消极和危险的东西在我们虚构的文化中的印象。
The ravine is incorporated into the project, recognising its role as a natural element that is the backbone of the territory and overcoming the vision of ravines as something negative and dangerous that weighs in our make-believe culture.


孩子们通过升高的木质人行道穿过松树林进入学校,透过树梢偷看学校。家长在接送孩子时,可以利用这条路线的背水一战,作为会面和休息的场所。
Children enter the school crossing a pine forest by raised wooden walkways, peeking at the school through the treetops.Parents will be able to take advantage of the backwaters of this route as a meeting and rest place when they take or pick up their children.Children do not disappear behind a wrought iron gate, there is a transition and a preparatory journey to get to school ... and the city vanishes behind


而城市则消失在内部空间的后面。建筑物已经变形,采用了 "S "的形状,从而配置了两个外部空间:西边的通道广场和东边的操场,其前提是两个不同方向的外部空间比单一空间提供更大的灵活性。
THE INTERIOR SPACES. The building has been deformed to adopt the shape of an "S" thus configuring two exterior spaces: an access plaza to the west and a playground to the east, based on the premise that two exterior spaces with two different orientations provide greater flexibility than a single space.


所有教室都可以俯瞰峡谷和松树林。从所有的房间来看,与自然的视觉联系是主角,是注意力的中心,现在没有黑板或教师的桌子。教室分布在五个区域,学生可以根据自己的兴趣和需要自由进出:感官区、实践生活区、语言区、数学区和文化研究区。
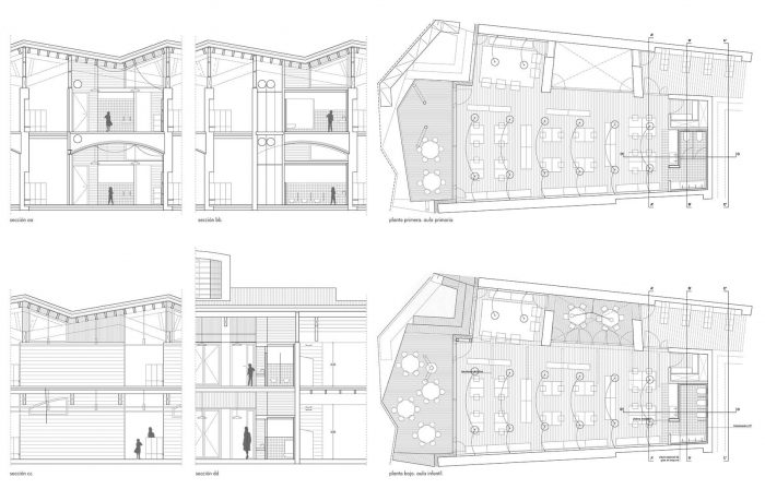
All classrooms overlook the ravine and the pine forest. From all the rooms the visual connection with nature is the protagonist and the center of attention, now that there is no blackboard or teacher's table. The classrooms are distributed in five areas to which students have free access according to their interests and needs: sensory area, practical life area, language area, maths area and cultural studies area.

每个教室的入口是通过一个大厅,里面有储物柜和长椅,孩子们在这里脱鞋和脱外套。墙上的低矮拱门表明,我们进入的是为孩子的体型设计的空间。
The entrance to each classroom is through a lobby with lockers and benches where the children take off their shoes and remove their coats. The low-rise arch in the wall indicates that we are entering spaces designed for the size of a child.

为了更好地采光和通风,我们设计了三层高度的垂直空间,我们称之为太阳能收集器,它被放置在中心位置,提供了额外的空间,以及教室之间的交叉视觉连接。
For better lighting and ventilation, we have designed triple height vertical spaces which we call solar collectors, that are placed in a central position and provide additional space, as well as a cross visual connection between classrooms.

每间教室的外部都有一个有顶的露台、一个小的露天剧场、一个喷泉和一棵落叶树作为补充。在天气允许的情况下,教室会向外开放,而这棵树随着季节的变化,也会成为一个额外的同学。
Each classroom is complemented externally by a covered terrace, a small amphitheater, a fountain and a deciduous tree. When the weather permits, the classroom is opened to the outside and the tree, with its seasonal changes, becomes an additional classmate.

这个项目像一个有机体一样成长,每个细胞根据自己的需要形成自己的形状,然后与其他细胞重新结合并相互影响。现在,教室被安排成扇形,连接它们的相关空间不仅是一个功能性的通道场所,而且,由于它的延伸部分、它的犄角旮旯以及它在室外庭院上的阳台和走道,它成为一个会议、工作和游戏空间。一个面向外部的agora完成了这个关系空间之旅。
The project grows like an organism, as each cell takes on its own shape according to its needs and then rejoins and interacts with the other cells. Now that the classrooms were arranged in a fan-like shape, the relating space that connects them is not only a functional place of passage, but, with its extensions, its nooks and crannies and its balconies and walkways over the outdoor courtyard, it becomes a meeting, work and play space. An agora facing the exterior completes this tour of spaces for relationship.

在每一个空间里,你都会发现为儿童缩小尺寸而设计的角落:利用教室里厕所上方的阁楼,在楼梯的地台下,在地板上的窗户旁。由于高度降低,成人无法进入的空间,成为我们称之为童年的存在状态的堡垒和避难所。
In every space you’ll find corners designed for the scaled-down size of children: taking advantage of lofts above the toilets in the classrooms, beneath the landings of the stairs, next to windows at floor level. Spaces that are not accessible to adults due to their reduced height, become a redoubt and a sanctuary for the state of being we call childhood.

户外空间。操场和花园区域(东边的院子、西边的梯田和峡谷另一边的松树林)被设计或维护为自然空间:树根、树干、树枝、干树叶、松果、春天的芦笋和秋天的野生蘑菇是它们的组成部分。这些都不是无菌空间。没有草坪,更没有人工草皮。我们的想法是让学生与自然互动,而不是创造一个绿色的装饰。也没有运动场或足球场;它是关于创造关系的空间,平静和性别之间的平等主义。斜坡被用来生成坡道、滑梯、楼梯和爬墙、阳台和走道、庇护所和洞穴......。当下雨的时候,当真正下雨的时候,人们可以看到流经峡谷的滔滔洪水。
THE OUTDOOR SPACES. The playgrounds and garden areas (the eastern courtyard, the terraces to the west and the pine forest on the other side of the ravine) are designed or maintained as nature spaces: roots, trunks, branches, dry leaves, pine cones, asparagus in spring and wild mushrooms in autumn are their components. These are not aseptic spaces. There is no lawn, much less artificial turf. The idea is for the students to interact with nature, not to create a green decor. Nor are there sport grounds or soccer fields; it is about creating spaces for relationships, calm and egalitarian between genders. The slopes are used for generating ramps, slides, stairs and climbing walls, balconies and walkways, shelters and caves... And when it rains, when it really rains, one can watch the torrential water flowing through the ravine.

材料。大量使用对生态环境影响较小的材料:赤土和木材。赤土用于2英尺厚的承重墙,由穿孔砖制成,传统上不适合暴露在外面,赤土用于三线实心砖拱顶,也是结构性的,用于铺面。天花板、内墙和外墙的结构和覆盖板以及门窗的木工都使用木材。
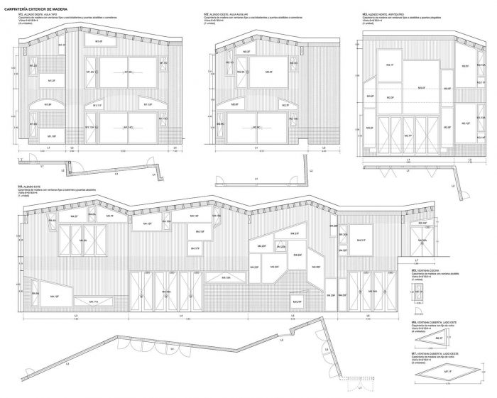
THE MATERIALS. Massive use of materials with a smaller ecological footprint: terracotta and wood. The terracotta in the 2-foot-thick load-bearing walls made with perforated brick, conventionally not suitable to be left exposed, in the three-threaded solid brick vaults, also structural, in the pavements. There is wood in the structure and covering panels on ceilings, the interior and exterior walls and the carpentry of doors and windows.

混凝土只用在地基上,钢则用在奇特的支柱和栏杆上。没有抹灰工程,没有假天花板或假地板,没有镶板。一切都是显而易见的,砖墙是结构,是隔断,是包层,有其纹理,有其缺陷。固定装置是可见的,你可以跟随它们在整个建筑中的布局,你可以了解一切是如何工作的,它是如何安装的,它是如何建造的。这座建筑是学校的第一个教学材料。
Concrete is only used in foundations and steel in singular pillars and railings. There is no plastering work, no false ceilings or false floors, no panelling. Everything is visible, the brick wall is structure, partition and cladding, with its texture, with its defects. The fixtures are visible, you can follow their layout throughout the building, you can understand how everything works, how it is mounted, how it was built. The building is the first didactic material of the school.


而在绿色屋顶起伏的幔子下的一切,是一片草地,当第二阶段完成后,将下降到靠在周边的围栏上,围栏覆盖、绝缘并提供热惯性,保护整个建筑免受阳光和雨水的影响。建筑想要消失,在绿色的幔子下不被注意,当我们从城市,从远处,从我们的电脑上,当我们用谷歌地球飞行时,绿色幔子是真正的外墙。
And everything under the undulating mantle of the green roof, a meadow that will descend, when the second phase is completed, to lean against the perimeter fence, which covers, insulates and provides thermal inertia, protecting the entire building from the sun and the rain. The construction wants to disappear, to go unnoticed under the green mantle which is the real facade when we look from the city, from a distance, from our computers when we fly with Google Earth.


























Architects: Gradolí & Sanz
Area: 19827 ft²
Year: 2019
Photographs:Mariela Apollonio, Bruno Almela
Manufacturers: Cerámica La Esperanza, Cooperativa Ladrillera, Cristalería Crevillente, GRUPO VALSECO, Junckers, Manolo García, Marti Cots, Morata, SOCYR 99, Salvador Gomis, Serpa
Architects: Carmel Gradolí, Arturo Sanz
Collaborating Architects: Fran López, José Luis Vilar, María Navarro
Clients: Zubi Real State S.L.
Quantity Surveyors: Francisco Vallet
Engineering / Breeam Consultants: Zero Consulting
Green Advisor: Alfons Ventura
Acoustic Advice: Silens servicios y tecnología acústica S.L.
Landscaping: Gustavo Marina
City: Paterna
Country: Spain