Impress在西班牙的第一家牙科诊所位于巴塞罗那中心的一个小空间内,包括底层、夹层和地下室的通道。
Impress's first dental clinic in Spain is located in a small space in the center of Barcelona, comprehending access on the ground floor, mezzanine and basement.




Impress牙科诊所的概念是针对年轻的受众,他们随着新技术的发展而成长,因为其提供的服务是基于在线治疗,减少面对面的访问。从一开始,Impress就在寻找一个新鲜的设计,代表品牌及其价值,摆脱牙科诊所的主题(白色颜色,无菌环境)。
The concept of Impress dental clinic is aimed at a young audience, which has grown with new technologies, since its offer is based on online treatments that reduce face-to-face visits. From the first moment Impress looked for a fresh design, which represented the brand and its values, which moved away from the topics of a dental clinic (white colors, aseptic environment).



该设计增强了场所的几何特征,虽然深度减少了,但高度却很宽敞。通过这种方式,我们建议重新诠释Impress的标志,即一条类似微笑的曲线,以产生一组相互连接的隔断,形成一个满足功能需求的大型家具组合:两个书房,一个在底层,一个在夹层,以及一个厕所。
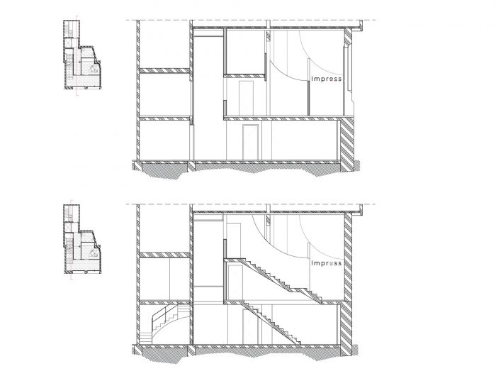
The design enhances the geometric characteristics of the premises, which, although reduced in depth, has a generous height. In this way, we propose to reinterpret the Impress logo, a smile-like curve, to generate a set of interconnected partitions to form a large furniture assembly that meets functional needs: two studies, one on the ground floor and one in the mezzanine, and a toilet.

这套家具从立面移开两米,建立一个与街道紧密接触的接待区,使室内从外面就能欣赏到;同样,它也移开了一个边界墙,以允许通往夹层和地下室的楼梯的通道。这些隔断的几何形状是基于圆周曲线,向上延伸到上层楼的高度,通过在空间中创造不同的 "窗帘 "来增加深度和空间的感觉。虽然整个室内几乎是一个单一的开放空间,但通过控制每个空间的高度和视野,必要的视觉隐私得到了尊重,这也为每面墙的另一面创造了期望和惊喜。
This set moves two meters away from the façade to establish a reception area in close contact with the street, allowing the interior to be appreciable from the outside; and likewise it moves away of one of the boundary walls to allow access to staircase to mezzanine and basement. The geometry of these partitions is based on circumference curves that go up to take the height of the upper floor, increasing the sense of depth and space by creating different ‘curtains’ in space. While virtually the entire interior is a single open space, the necessary visual privacy is respected by controlling the heights and views from each space, what also creates expectation and surprise about what is on the other side of each wall.

在后面,一个三层高的空隙将自然光引入地下室,专门用于存储、储物柜、办公室和小厨房。在空隙的另一侧,X光室通过玻璃走道进入。
At the rear, a triple-height void introduces natural light into the basement, dedicated to storage, locker, office and kitchenette. On the other side of the void, the X-ray room is accessed through a glass walkway.



外围墙,两个大型不锈钢窗,遵循其自身的秩序,不与内部的几何形状竞争,也不与外墙的轴向配置竞争。因此,窗框被放置在墙的内侧,给人以单一窗户的感觉,两个对角线的横杆引入了新的方向和视觉轴线,创造了一套透明和不透明的环境,增加了人们对里面的期待。
The outer enclosure, two large stainless steel windows, follows its own order, not competing with the interior geometry, nor with the axial configuration of the facade. Thus, the frames are placed on the inside of the walls, giving the feeling of being a single window, and two diagonal crossbars introduce new directions and visual axes, creating a set of transparencies and opacities to increase the expectation of what is inside.

材料调色板以室内隔断的松木为主,在牙科诊所中增加了不寻常的温暖;现有的结构元素以Impress的企业灰色脱颖而出;一个大型的企业红色金属板包层伴随着夹层的上升,并将室内染成红色的亮点;一个霓虹灯为instagram照片创造了一个必要的角落,在上面,企业蓝色的星星在入口曲线的墙壁上;陶瓷地板具有与金属墙相同的红色接头。总的来说,室内的所有元素都接受了颜色和纹理处理,服从于Impress的身份标志。
The material palette is dominated by the pine wood of the interior partitions, which adds an unusual warmth in a dental clinic; the existing structural elements stand out with the corporate gray color of Impress; a large corporate red-colored sheet metal cladding accompanies the ascent to the mezzanine and stains the interior with red highlights; a neon sign creates a required corner for instagram pics, and above, the corporate blue color stars the wall over the entrance curve; the ceramic flooring has the same red color joints of the metal wall. And in general, all the elements of the interior receive a color and texture treatment that obeys the Impress identity mark.

















建筑师:Raúl Sánchez
面积:861平方英尺
年份:2019年
照片:José Hevia
制造商:41zero42, Duravit, Finsa, ICONICO, Living ceramics, Menu
建筑:Valentina Barberio, Albert Montilla
结构:Diagonal Arquitectura
工程:Marés ingenieros
客户 : Smile2Impress
城市 : 巴塞罗那
国家 : 西班牙
Architects: Raúl Sánchez
Area: 861 ft²
Year: 2019
Photographs: José Hevia
Manufacturers: 41zero42, Duravit, Finsa, ICONICO, Living ceramics, Menu
Architecture:Valentina Barberio, Albert Montilla
Structure:Diagonal Arquitectura
Engineering:Marés ingenieros
Client:Smile2Impress
City:Barcelona
Country:Spain