如何将房子作为建筑细胞与城市的内部关系是设计这个项目的主要意图。建筑物的位置是从业主的旧楼中获得的土地,尺寸为10×20米,位于哈麦丹市拥挤的Ostadan街道和8米长的后巷中。主要问题是寻求对房屋生活空间与这两个外部通道/城市的直接/间接关系问题的回应。在哈麦丹市的老房子里,门廊被认为是连接室内和室外的一个活跃的生活空间。
HOW the internal relationship of the house as an architectural cell with the city was the main intention behind designing this project. The location of the building is the land obtained from the owner’s old building with the dimensions of 10×20 meters, placed in the crowded street of Ostadan and the 8-meter back alley, in Hamedan City. The main problem is seeking a response to the issue of the direct/indirect relations in the house living space with these two external passageways/cities. In the old houses of Hamedan City, the porch is considered an active living space connecting the indoors to the outdoors.




现在,在传统的房屋中,室内和室外的界限是由墙壁和门窗等门槛设置的,允许人们进入和出去。在本项目中,由于在房子的两边使用了两块砖的空间围合,边界变成了两个可居住的空旷空间。两个半开放/半封闭的门廊,是家庭与街道/小巷的中间生活空间。这两个空旷的空间揭示了室内和室外、天空和地平线之间的关系,同时,也连接了各楼层。
Nowadays, in conventional houses, the boundary between the indoors and outdoors is set by the walls and the thresholds such as the doors and the windows allow for penetration in and out. In the present project, due to the use of two brick spatial envelopes on the two sides of the house, the boundary has changed into two livable empty spaces: Two half-open/half-closed porches, the intermediate Living spaces of the family with the street/alley. These two empty spaces have revealed the relation between the indoor and the outdoor and the sky and the horizon, and at the same time, have connected the floors.



空旷的空间与砖的温暖的颜色纹理,与户外和天空的景色以及中间的白色生活空间的辩证关系,创造了一种特殊的吸引力。在这些空旷的空间里使用玻璃露台,除了强调空旷的空间外,还让住户体验到身处地面和天空中间的感觉。
The dialectic of the empty spaces with the warmth of the brick’s color texture alongside the view to the outdoors and the sky and intermediate white living space has created a special attraction. The use of glass terraces in these empty spaces, in addition to emphasizing the empty spaces, has allowed for the experience of being in the middle of the ground and the sky for the residents.


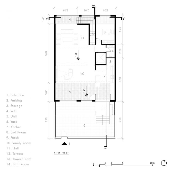
该建筑包括底层:由室内和连接空间、停车场、一个小套房和一个储藏室组成。一楼是复式楼,有餐厅和客厅、主厨房、一个卫生间和一个客房,二楼是孩子的两间卧室、父母的一间卧室、一个餐厅、一个小厨房和一个卫生间,供一个四口之家使用。
This building includes the ground floor: which consists of the indoors and the connecting spaces, parking, a small suite, and a storeroom. a duplex with dining and living rooms, the main kitchen, a bathroom, and a guest room on the first floor, and two bedrooms for the children, one bedroom for the parents, a dining room, a small kitchen, and a bathroom, for a family of four in the second floor.
















Architects: MA Office
Area : 404 m²
Year : 2021
Photographs :Mohammad Hassan Ettefagh
Manufacturers : KWC, Ghazvin Glass
Lead Architect : Seyed Jalil Mousavi
Architects : Seyed Jalil Mousavi, Sepehr Edalati Morafah, Seyed Akam Katoorani, Ali Moradi Meshkin, Atefeh Safakish
Structure : Seyed Hashem Bathaiee
Electrical Engineer : Seyed Reza Iranpour
Mechanical Engineer : Mohammad Mirzaie
City : Hamedan
Country : Iran