这座位于德黑兰的1400平方米的高端独立式别墅靠山而建,花园高出街面17米。外墙用天然洞石覆盖:这是当地著名的高质量产品,从伊朗山区采集。业主希望将他们的汽车停在地下,因此在花园下面有一条20米长的隧道,通向别墅下面的停车场。
This 1400 m2 high-end freestanding villa in Tehran is built against a mountainside, with a garden that is raised 17 meters above street level. The facade is clad with natural travertine stone: a famous high-quality local product collected from the Iranian mountains. The wish of the owners to park their cars underground, resulted in a 20-meter-long tunnel below the garden, leading towards the parking underneath the villa.



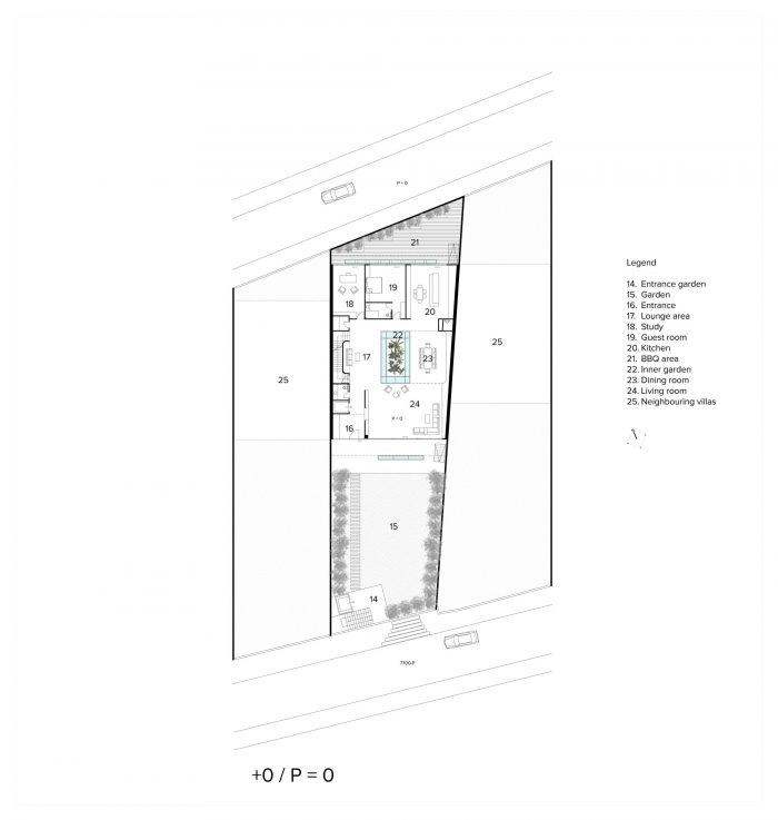
别墅有两个地下楼层和两个地上楼层。最低层位于南部街道,有一条隧道通向停车场。游客通过楼梯或电梯进入别墅,并在花园中散步。
The villa has 2 underground floors and 2 floors above ground. The lowest floor is at the southern street level, with a tunnel leading to the parking garage. Visitors enter the villa via stairs or elevator and a walk through the garden.


受传统波斯建筑的启发--主要是庭院式房屋的配置及其微气候效应--一个带有可伸缩屋顶的玻璃内花园被安置在别墅的核心区域,为建筑的每一层提供足够的日光和新鲜空气。内花园周围的玻璃板保证了足够的光线被带入位于-1层的游泳池区域。
Inspired by the traditional Persian architecture - mainly the configuration of the courtyard houses and their microclimatic effect - a glazing inner garden with a retractable roof is positioned in the core of the villa, providing the building with enough daylight and fresh air on every floor. The glass panes around the inner garden guarantee that sufficient light is brought into the swimming pool area located at level -1.

第二个绝缘的滑动屋顶可以保护房屋不受炎热夏季的影响,因为夏季的温度可以达到40摄氏度以上。与庭院式住宅类似,内部花园作为一个私密的私人空间,具有舒适的微气候。
A second insulated sliding roof protects the house from hot summers when temperatures can reach over 40 degrees Celsius. Similar to the courtyard houses, the inner garden functions as an intimate private space with a pleasant micro-climate.


纯净和卫生是设计发展过程中非常重要的主题,在设计的细节中已经考虑到了这一点,以方便清洁,并确保在进入游泳池之前,健康区的连续空间有固定的顺序(进入走廊,然后是更衣室,然后进入淋浴间)。特殊的照明使游泳池上方的天花板看起来像一个闪烁的星空。
Purity and hygiene were very important themes during the design development, which have been considered in the detailing of the design, to facilitate cleaning and to ensure a fixed sequence of successive spaces in the wellness area (entering a corridor, then a changing room, then entering the showers) before entering the swimming pool. The special lighting makes the ceiling above the pool look like a twinkling starry sky.























Architects: 123DV
Area : 1100 m²
Year : 2019
Photographs :Parham Taghioff
Manufacturers : Schuco
Architect : Liong Lie
Project Architect : Samaneh Rezvani
Engineering Consulting : Martijn Huits
Tendering : M. Haeri
City : Tehran
Country : Iran