总部位于韩国的国际广告公司INNOCEAN已经迁入位于美因河畔法兰克福的新欧洲总部。为这家年轻的、具有设计意识的公司创造了一个灵活和现代的工作世界,它适合该机构内不同的工作区域。
The internationally operating advertising agency INNOCEAN with headquarters in Korea has moved into new European headquarters in Frankfurt am Main. A flexible and modern work world was created for the young, design-conscious company, which fits the different work zones within the agency.



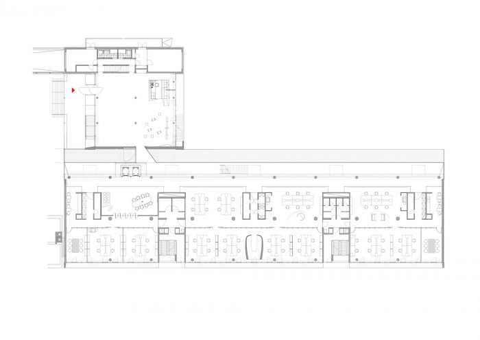
动感和运动是设计的主要特点,员工和访客一进入宽敞的接待大厅就被同化了。这些设计元素引导你穿过开放的工作区和专门创建的员工图书馆,一直到五楼的内部健身房,那里可以看到法兰克福的迷人景色。
Dynamism and movement are key features of the design, which assimilates employees and visitors the second they enter the spacious reception hall. These design elements guide you through the open work zones and the specially created employee library right up to the in-house gym on the fifth floor, which offers an amazing view over Frankfurt.

多边形的空间元素和广泛的材料代表了该机构本身的高设计标准。开放和透明的工作区,与半公开和完全隐蔽的会议区相搭配,促进了创造性和沟通性的工作氛围。
Polygonal spatial elements and a wide range of materials represent the high design standards of the agency itself. Open and transparent work areas, paired with semi-public and completely discreet conference zones promote a creative and communicative working atmosphere.
















Interior Designers: Ippolito Fleitz Group
Area : 2800 m²
Year : 2013
Photographs :Robert Hoernig
Manufacturers : Delta Light, Flos, Interface, Object Carpet, Steelcase, Vescom, Vitra, XAL, Interfloor, Kvadrat, Methis
City:FRANKFURT
Country:Germany